
Oakwood Glade, Holbeach, PE12 7JS

- PROPERTY TYPE
Detached
- BEDROOMS
4
- SIZE
Ask developer
Key features
- Shared ownership*
- Turfed front and rear garden, 1.8m fencing and an outside tap included as standard
- Detached
- Utility room
- En-suite to master bedroom
- High-quality specifications included as standard from well-known brands
- Personalise your home with our optional extras (subject to build stage)
- 10-Year Warranty (first 2 years with Gleeson and a further 8 years with NHBC)
Description
Price shown based on a 50% share of £324,995 (full purchase price). T&Cs apply. Eligibility Criteria applies, speak to our Sales Executive for more information.
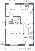
Plot 15, The Dalkey boasts a large living room leading from a separate entrance hall, which leads to a contemporary kitchen-dining area with French doors opening onto the rear garden. There is also a useful utility room and WC. Upstairs you'll benefit from four good-sized bedrooms and a family bathroom, with the main bedroom featuring a private en-suite bathroom.
Images, dimensions, and layouts are indicative only and may include optional upgrades, subject to availability and at additional cost. Please check with our sales team for more information.
Council Tax Band: TBC
Tenure: Leasehold
EPC Potential Energy Efficiency: B
Room Dimensions
- Kitchen / Dining - 19'8" x 14'2" (6.00m x 4.31m)
- Living Room - 14'8" x 12'11" (4.48m x 3.94m)
- Utility - 7'0" x 5'3" (2.14m x 1.61m)
- WC - 5'3" x 2'11" (1.61m x 0.90m)
- Bedroom 1 - 13'8" x 9'3" (4.18m x 2.82m)
- En-suite - 7'4" x 3'10" (2.24m x 1.16m)
- Bedroom 2 - 10'7" x 11'1" (3.22m x 3.37m)
- Bedroom 3 - 11'2" x 7'3" (3.40m x 2.20m)
- Bedroom 4 - 10'1" x 9'8" (3.09m x 2.95m)
- Bathroom - 8'1" x 5'7" (2.47m x 1.71m)
- COUNCIL TAXA payment made to your local authority in order to pay for local services like schools, libraries, and refuse collection. The amount you pay depends on the value of the property.Read more about council Tax in our glossary page.
- Band: TBC
- PARKINGDetails of how and where vehicles can be parked, and any associated costs.Read more about parking in our glossary page.
- Ask developer
- GARDENA property has access to an outdoor space, which could be private or shared.
- Yes
- ACCESSIBILITYHow a property has been adapted to meet the needs of vulnerable or disabled individuals.Read more about accessibility in our glossary page.
- Ask developer
Energy performance certificate - ask developer
- Located in the quaint Lincolnshire town of Holbeach
- 2, 3 and 4 bedroom homes
- Benefitting from excellent amenities
- Within easy reach of both the A16 and A17
Oakwood Glade, Holbeach, PE12 7JS
Add an important place to see how long it'd take to get there from our property listings.
__mins driving to your place
Get an instant, personalised result:
- Show sellers you’re serious
- Secure viewings faster with agents
- No impact on your credit score
About Gleeson Homes (Midlands)
You're invited to our Second Stepper event, 16 - 18 January
Home to sell? Come along from 10am - 5pm, to find out how we can help get you moving with Smooth Move or Part Exchange!
Located in the quaint Lincolnshire town of Holbeach, Tulip Fields is a stunning development of 2, 3 and 4 bedroom homes. Benefitting from excellent amenities, including good schools, a wide selection of shops, pubs and restaurants. Holbeach is within easy reach of both the A16 and A17, ideal for those working in larger towns, such as Boston, Spalding and Kings Lynn.
Your mortgage
Notes
Staying secure when looking for property
Ensure you're up to date with our latest advice on how to avoid fraud or scams when looking for property online.
Visit our security centre to find out moreDisclaimer - Property reference 4_015-h. The information displayed about this property comprises a property advertisement. Rightmove.co.uk makes no warranty as to the accuracy or completeness of the advertisement or any linked or associated information, and Rightmove has no control over the content. This property advertisement does not constitute property particulars. The information is provided and maintained by Gleeson Homes (Midlands). Please contact the selling agent or developer directly to obtain any information which may be available under the terms of The Energy Performance of Buildings (Certificates and Inspections) (England and Wales) Regulations 2007 or the Home Report if in relation to a residential property in Scotland.
*This is the average speed from the provider with the fastest broadband package available at this postcode. The average speed displayed is based on the download speeds of at least 50% of customers at peak time (8pm to 10pm). Fibre/cable services at the postcode are subject to availability and may differ between properties within a postcode. Speeds can be affected by a range of technical and environmental factors. The speed at the property may be lower than that listed above. You can check the estimated speed and confirm availability to a property prior to purchasing on the broadband provider's website. Providers may increase charges. The information is provided and maintained by Decision Technologies Limited. **This is indicative only and based on a 2-person household with multiple devices and simultaneous usage. Broadband performance is affected by multiple factors including number of occupants and devices, simultaneous usage, router range etc. For more information speak to your broadband provider.
Map data ©OpenStreetMap contributors.






