Glastonbury Close, Belmont, Hereford, HR2

- PROPERTY TYPE
Terraced
- BEDROOMS
2
- BATHROOMS
1
- SIZE
Ask agent
- TENUREDescribes how you own a property. There are different types of tenure - freehold, leasehold, and commonhold.Read more about tenure in our glossary page.
Freehold
Key features
- **NO ONWARD CHAIN**
- Two Double Bedrooms
- Two Receptions (Lounge/ Diner & Conservatory)
- Family Sized Bathroom
- Nicely Fitted Kitchen
- Private Rear Garden
- Conservatory Extension
- Parking Two Cars
- Outstanding Local Amenities
- 1 Mile to Hereford Centre
Description
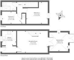
**NO ONWARD CHAIN** A very nice TWO DOUBLE BEDROOM - TWO RECEPTION mid terraced property situated on a quiet cul-de-sac - comprising modern fitted kitchen - spacious sitting / dining room - large conservatory extension - family bathroom - private rear garden - parking for TWO CARS - Gas & Electrical safety certification EPC: C
Entrance Hallway - Stylishly Fitted Modern Kitchen - Spacious Sitting / Dining Roo - Rear Conservatory Extension - Stairs and Landing to Upper Floor - Two Double Bedrooms - Family Bathroom - Private Rear Garden - Parking for Two Cars - GCH - Double Glazed Throughout - EPC: C
Agents Comment
A well-presented three bedroom family home, situated within a popular residential cul-de-sac in the highly sought-after Belmont area of Hereford, offering convenient access to local schools, amenities, and the city centre.
The accommodation is arranged over two floors and offers well-balanced living space throughout. The ground floor comprises an entrance hallway, a spacious sitting room providing comfortable everyday living, and a fitted kitchen/dining room offering ample storage, workspace and direct access to the rear garden, ideal for family life and entertaining.
To the first floor, there are three well-proportioned bedrooms, including two doubles and a good-sized single, all served by a modern family bathroom.
Externally, the property benefits from front and rear gardens, with the rear garden offering a pleasant and private outdoor space, ideal for relaxing or entertaining. The property also benefits from driveway parking and, subject to confirmation, may include a garage or allocated parking.
Located in a quiet residential setting, Glastonbury Close is ideally placed for access to Belmont Abbey Primary School, local shops, supermarkets, leisure facilities and excellent transport links, making this an ideal home for families, couples and professionals alike.
Key Features:
• Popular Belmont location
• Three bedrooms
• Spacious sitting room
• Kitchen/dining room with garden access
• Family bathroom
• Private rear garden
• Driveway parking
• Quiet cul-de-sac position
SELLING? WE OFFER FREE MARKET APPRAISALS OR SALES ADVICE MEETINGS WITHOUT OBLIGATION. CONTACT NORTHWOOD ON TO FIND OUT HOW OUR AWARD-WINNING SERVICE CAN GUIDE YOU ON THE BEST WAY TO SELL YOUR PROPERTY.
Stamp Duty: Ensure you understand your Stamp Duty and Land Tax (SDLT) obligations before making an offer.
Residential Properties: Stamp Duty applies to purchases over £125,000 (standard threshold). First-time buyers benefit from an increased threshold of £300,000, provided the property costs £500,000 or less.
Additional Properties: If you’re purchasing a second home or buy-to-let property, a 5% surcharge applies on top of standard rates.
We give notice that these particulars, although believed to be correct, do not constitute any part of an offer of contract, that all statements contained in these particulars as to this property are made without responsibility and are not to be relied upon as statements or representations of fact and that they do not make or give any representation or warranty whatsoever in relation to this property. Any intending purchaser must satisfy himself by inspection or otherwise as to the correctness of each of the statements contained in these particulars. The agent has not tested any apparatus, equipment, fixture, fittings or services and so cannot verify that they are in working order or fit for their purpose, neither has the agent checked the legal documents to verify the freehold/leasehold status of the property. The buyer is advised to obtain verification from their solicitor or surveyor.
AML REGULATIONS To ensure compliance with the latest Anti Money Laundering Regulations all intending purchasers must produce identification documents prior to the issue of sale confirmation. To avoid delays in the buying process please provide the required documents as soon as possible. We may use an online service provider to also confirm your identity. A list of acceptable ID documents is available upon request.
EPC rating: C. Tenure: Freehold,
- COUNCIL TAXA payment made to your local authority in order to pay for local services like schools, libraries, and refuse collection. The amount you pay depends on the value of the property.Read more about council Tax in our glossary page.
- Band: B
- PARKINGDetails of how and where vehicles can be parked, and any associated costs.Read more about parking in our glossary page.
- Driveway
- GARDENA property has access to an outdoor space, which could be private or shared.
- Private garden
- ACCESSIBILITYHow a property has been adapted to meet the needs of vulnerable or disabled individuals.Read more about accessibility in our glossary page.
- Ask agent
Glastonbury Close, Belmont, Hereford, HR2
Add an important place to see how long it'd take to get there from our property listings.
__mins driving to your place
Get an instant, personalised result:
- Show sellers you’re serious
- Secure viewings faster with agents
- No impact on your credit score
Your mortgage
Notes
Staying secure when looking for property
Ensure you're up to date with our latest advice on how to avoid fraud or scams when looking for property online.
Visit our security centre to find out moreDisclaimer - Property reference P3041. The information displayed about this property comprises a property advertisement. Rightmove.co.uk makes no warranty as to the accuracy or completeness of the advertisement or any linked or associated information, and Rightmove has no control over the content. This property advertisement does not constitute property particulars. The information is provided and maintained by Northwood, Hereford. Please contact the selling agent or developer directly to obtain any information which may be available under the terms of The Energy Performance of Buildings (Certificates and Inspections) (England and Wales) Regulations 2007 or the Home Report if in relation to a residential property in Scotland.
*This is the average speed from the provider with the fastest broadband package available at this postcode. The average speed displayed is based on the download speeds of at least 50% of customers at peak time (8pm to 10pm). Fibre/cable services at the postcode are subject to availability and may differ between properties within a postcode. Speeds can be affected by a range of technical and environmental factors. The speed at the property may be lower than that listed above. You can check the estimated speed and confirm availability to a property prior to purchasing on the broadband provider's website. Providers may increase charges. The information is provided and maintained by Decision Technologies Limited. **This is indicative only and based on a 2-person household with multiple devices and simultaneous usage. Broadband performance is affected by multiple factors including number of occupants and devices, simultaneous usage, router range etc. For more information speak to your broadband provider.
Map data ©OpenStreetMap contributors.




