
Thakeham - affordable units
- PROPERTY TYPE
Land
- SIZE
Ask agent
Description
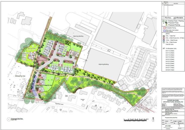
DETAILS Affordable Mix:
Type Shared ownership Affordable Rent Total
1 Bed 0 2 2
2 Bed 0 4 4
3 Bed 3 1 4
Total 3 7 10
The Section 106 agreement is available by request.
Brochures
BrochureThakeham - affordable units
NEAREST STATIONS
Distances are straight line measurements from the centre of the postcode- Pulborough Station3.7 miles
- Amberley Station5.5 miles
Notes
Disclaimer - Property reference 100074007309. The information displayed about this property comprises a property advertisement. Rightmove.co.uk makes no warranty as to the accuracy or completeness of the advertisement or any linked or associated information, and Rightmove has no control over the content. This property advertisement does not constitute property particulars. The information is provided and maintained by Fowlers, Storrington. Please contact the selling agent or developer directly to obtain any information which may be available under the terms of The Energy Performance of Buildings (Certificates and Inspections) (England and Wales) Regulations 2007 or the Home Report if in relation to a residential property in Scotland.
Map data ©OpenStreetMap contributors.








