Deryneia, Cyprus
- PROPERTY TYPE
Apartment
- BEDROOMS
1
- SIZE
Ask agent
Key features
- New Build
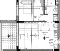
- Covered area 50m2
- Covered verandas 9.5m2
- Storage room
- Contact us for a virtual viewing
- Covered parking for 1 car
- Fabulous location with unspoiled views of Famagusta
- Minutes from the Deryneia cross point
- Village amenities within walking distance
- 10 minutes drive to the coastline of Kapparis
Description
This is a fantastic opportunity to acquire a residential property in an extremely desirable location, set on the outskirts of the village of Deryneia and just a short drive from the bustling town of Paralimni, as well as the beaches and amenities of Kapparis.
Situated on the second floor of a modern three-storey complex, this attractive apartment will feature a well designed open-plan layout incorporating the kitchen, living and dining areas, creating a comfortable and practical living space. The living area will benefit from patio door access to a 9.5m2 covered veranda, an ideal spot for enjoying a morning coffee. The bedroom is generously proportioned and will include fitted wardrobes, while the contemporary bathroom will be finished with stylish ceramics and fittings.
Finished to an excellent standard throughout, the apartment will benefit from quality materials and modern design features. The development itself offers lift access, allocated covered parking and a personal storage room, along with tasteful communal lighting that enhances the exterior spaces.
With Paralimni town and the coastal area of Kapparis just a short distance away, the property also enjoys the convenience of a supermarket, a variety of local shops within walking distance, and easy access to a main bus route. This apartment presents an excellent choice for a holiday home, permanent residence, or a strong rental investment opportunity in a well-connected location.
Site visit by appointment. Photos used are artist impressions.
Price excludes VAT.
DERYNEIA
Deryneia is the second largest town in Famagusta, now linked with the main town of Paralimni. Although very close to Paralimni it has a very different identity and unique charm. Typically residents work in agriculture, crafts and farming or in the hospitality industry. Deryneia is probably most famous for Strawberries, and produces over 60% of the total production on the Island. The strawberry festival, held every 2 years, is probably the most well known and brings thousands of visitors from the surrounding areas to sample the local delights and join in with the traditional dancing.
The Cultural Centre is a must see for tourists and locals alike as it tells the story of the history of the area and overlooks the Ghost town of Famagusta in Northern Cyprus. Deryneia is also a gateway to the occupied areas in the North and just a 10 minute drive to Famagusta town.
ABOUT THE FAMAGUSTA REGION
Whether you are planning to visit the Famagusta region of the Republic of Cyprus for the first time or you are already in love with the area, there is something here for everyone.
The area is not known as the Jewel of the Eastern Mediterranean` for nothing! From the stunning cliffs of Cavo Greko (the most Easterly point of Europe) to quaint inland villages, to the 44 (yes 44!) white sandy Blue Flag beaches, the area holds something for every palette. We have beautiful nature trails, water sports galore, amazing fresh cuisine, nightlife, one of the top waterparks in Europe, fishing harbours, a world class Marina and the list goes on and on! You are never far from anywhere in Famagusta, a maximum 15 minute drive to the nearest beach from even the most inland villages.
Thousands of expats of all nationalities have made Cyprus their home over the years due to the warm local welcome, fantastic climate and host of things to do. The bustling cities of Limassol, Larnaca and Nicosia are just over an hour away but here you can enjoy a more relaxed pace of life. Crime rates are amongst the lowest in Europe, English and Russian are widely spoken and there is always time for a chat, a coffee or a glass of wine in the sunshine. We look forward to introducing you to hidden gems of the area on your next visit.
ISLAND HOMES ESTATE AGENTS
Island Homes have been working with both local and overseas buyers and sellers for over 20 years. We specialise in property sales in the Famagusta region with seaside properties from Protaras to Ayia Napa; major towns including Paralimni and Deryneia and also covering all of the beautiful red soil villages` including Xylofagou, Vrysoulles, Frenaros, Avgorou, Dasaki Achna and Sotira.
All of our team live locally and have worked together for many, many years. We are also all immigrants to Cyprus and property owners ourselves so can guarantee that we have lived through the same experiences as that of our clients. We have in-depth knowledge of the area, the facilities, the amenities and, of course, every one of the properties that we advertise for sale.
Prior to advertising we undertake a full due diligence on every home to ensure that we can fully inform our clients about the legal status of each house or apartment.
Our reputation is hugely important to us so, for a truly personal experience, contact us and we will work together to find your dream home!
what3words /// chugging.drone.frequencies
Notice
Please note we have not tested any apparatus, fixtures, fittings, or services. Interested parties must undertake their own investigation into the working order of these items. All measurements are approximate and photographs provided for guidance only.
Deryneia, Cyprus
NEAREST AIRPORTS
Distances are straight line measurements- Larnaka(International)23.2 miles
- Ercan(Local)27.0 miles
- Pafos(International)87.3 miles
Advice on buying Cypriot property
Learn everything you need to know to successfully find and buy a property in Cyprus.
Notes
This is a property advertisement provided and maintained by Island Homes, Paralimni (reference 92858_6628) and does not constitute property particulars. Whilst we require advertisers to act with best practice and provide accurate information, we can only publish advertisements in good faith and have not verified any claims or statements or inspected any of the properties, locations or opportunities promoted. Rightmove does not own or control and is not responsible for the properties, opportunities, website content, products or services provided or promoted by third parties and makes no warranties or representations as to the accuracy, completeness, legality, performance or suitability of any of the foregoing. We therefore accept no liability arising from any reliance made by any reader or person to whom this information is made available to. You must perform your own research and seek independent professional advice before making any decision to purchase or invest in overseas property.





