
Site A and Site B, 91 Cuckoo Hall Lane, Enfield, London, N9 8DP
- PROPERTY TYPE
Plot
- SIZE
Ask agent
Key features
- To be offered on Tuesday 24 February
- Two sites totalling approximately 4,370 sq ft
- Planning permission granted for a commercial office and two self-contained flats (2 x One Bedroom) on Site A
- Planning permission granted for Six self-contained flats (1x Three Bedroom, 2 x Two Bedroom and 3 x One Bedroom) on Site B
- Vacant possession
- Conveniently located for the amenities of Enfield
Description
StrapLine
Auction Sale - 24/02/2026 - To book viewings, view the legal pack and register to bid please refer to the full sales particulars on the Savills Auctions websiteOf interest to builders and developers
Two sites totalling approximately 4,370 sq ft with planning permission granted for a Commercial office and Two Self-contained flats (2 x One Bedroom) on Site A and Six Self-contained flats (1 x Three Bedroom, 2 x Two Bedroom and 3 x One Bedroom) on Site B, well located for the Shopping and Recreational amenities of Enfield and Tottenham- Vacant
Description
Two sites totalling approximately 4,370 sq ft
Location
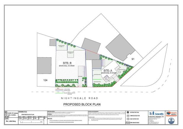
Located near to the junction of Cuckoo Hall Lane and Nightingale Road.
Shopping facilities are easily accessible in the centres of Enfield and Tottenham.
Recreational amenities of Jubilee Park and Ponders End Park are within close distance.
Transport
National Rail- Ponders End
Planning
Permission (ref: 25/03769/FUL) was granted by Enfield Council on 31st December 2025 for "Construction of 2 x three storey buildings comprising: Site A:- 2 x residential flats and 1 x commercial office and Site B- 6 x residential flats."
Proposed Accommodation:
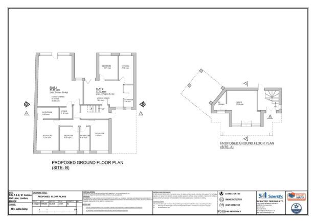
Site A:
Ground Floor- Office
First Floor:
Flat A (approximately 565 sq ft)- Reception Room, Kitchen, Bedroom, bathroom/WC, Store
Second Floor:
Flat B (approximately 521 sq ft)- Reception Room, Kitchen, Bedroom, bathroom/WC, Store
Site B
Ground Floor:
Flat 1 (approximately 913 sq ft)- Living/Dining/Kitchen, Three Bedrooms (one with en-suite), Bathroom, Store
Flat 2 (approximately 399 sq ft)- Living/Dining, Kitchen, Bedroom, Bathroom
First Floor-
Flat 3 (approximately 717 sq ft)- Living/Dining, Kitchen, Two Bedrooms (one with en-suite), Bathroom, Store
Flat 4 (approximately 466 sq ft)- Living/Dining, Kitchen, Bedroom, Bathroom
Second Floor-
Flat 5 (approximately 699 sq ft)- Living/Dining, Kitchen, Two Bedrooms (one with en-suite), Bathroom, Store
Flat 6 (approximately 454 sq ft)- Living/Dining, Kitchen, Bedroom, Bathroom
Site A and Site B, 91 Cuckoo Hall Lane, Enfield, London, N9 8DP
NEAREST STATIONS
Distances are straight line measurements from the centre of the postcode- Ponders End Station0.7 miles
- Southbury Station0.9 miles
- Edmonton Green Station1.0 miles
Notes
Disclaimer - Property reference 218-21229. The information displayed about this property comprises a property advertisement. Rightmove.co.uk makes no warranty as to the accuracy or completeness of the advertisement or any linked or associated information, and Rightmove has no control over the content. This property advertisement does not constitute property particulars. The information is provided and maintained by Savills Auctions, London. Please contact the selling agent or developer directly to obtain any information which may be available under the terms of The Energy Performance of Buildings (Certificates and Inspections) (England and Wales) Regulations 2007 or the Home Report if in relation to a residential property in Scotland.
Auction Fees: The purchase of this property may include associated fees not listed here, as it is to be sold via auction. To find out more about the fees associated with this property please call Savills Auctions, London on 020 3909 6715.
*Guide Price: An indication of a seller's minimum expectation at auction and given as a Guide Price or a range of Guide Prices. This is not necessarily the figure a property will sell for and is subject to change prior to the auction.
Reserve Price: Each auction property will be subject to a Reserve Price below which the property cannot be sold at auction. Normally the Reserve Price will be set within the range of Guide Prices or no more than 10% above a single Guide Price.
Map data ©OpenStreetMap contributors.





