
The Picturehouse, Bridge Avenue, Maidenhead, Berkshire, SL6

Letting details
- Let available date:
- 16/03/2026
- Deposit:
- £2,307A deposit provides security for a landlord against damage, or unpaid rent by a tenant.Read more about deposit in our glossary page.
- Min. Tenancy:
- Ask agent How long the landlord offers to let the property for.Read more about tenancy length in our glossary page.
- Let type:
- Long term
- Furnish type:
- Furnished or unfurnished, landlord is flexible
- Council Tax:
- Ask agent
- PROPERTY TYPE
Apartment
- BEDROOMS
2
- BATHROOMS
2
- SIZE
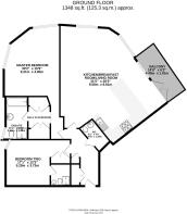
1,348 sq ft
125 sq m
Key features
- Available March
- Two Bedroom Apartment
- Private Balcony
- Underfloor Heating
- Two Bathrooms
- Allocated Parking
- Modern Apartment
- Council Tax Band C
Description
At the centre of the home is a striking open-plan kitchen, living and breakfast room extending over 30ft, creating a true focal point for both everyday living and entertaining. The space comfortably accommodates lounge and dining areas, while large windows and access to a private balcony allow natural light to pour in, enhancing the bright and airy feel. The balcony itself provides a pleasant outdoor retreat, ideal for morning coffee or unwinding in the evening.
The principal bedroom is exceptionally generous, complete with a walk-in wardrobe and a well-appointed en-suite bathroom, offering both comfort and practicality. The second bedroom is also a spacious double, served by a separate family bathroom, making the layout ideal for guests or sharers. A further W/C adds extra convenience.
The property is offered furnished, including two sofas, a coffee table, three kitchen table stools and a double bed with mattress. However, there is flexibility for the apartment to be provided unfurnished if preferred, allowing incoming tenants to tailor the space to their own style.
Additional benefits include allocated parking for one vehicle and a prime location within walking distance of Maidenhead town centre and the Elizabeth Line, providing fast and direct connections into London and surrounding areas.
This property is available mid-March.
Brochures
Particulars- COUNCIL TAXA payment made to your local authority in order to pay for local services like schools, libraries, and refuse collection. The amount you pay depends on the value of the property.Read more about council Tax in our glossary page.
- Band: C
- PARKINGDetails of how and where vehicles can be parked, and any associated costs.Read more about parking in our glossary page.
- Yes
- GARDENA property has access to an outdoor space, which could be private or shared.
- Ask agent
- ACCESSIBILITYHow a property has been adapted to meet the needs of vulnerable or disabled individuals.Read more about accessibility in our glossary page.
- No wheelchair access
The Picturehouse, Bridge Avenue, Maidenhead, Berkshire, SL6
Add an important place to see how long it'd take to get there from our property listings.
__mins driving to your place
Notes
Staying secure when looking for property
Ensure you're up to date with our latest advice on how to avoid fraud or scams when looking for property online.
Visit our security centre to find out moreDisclaimer - Property reference MAS200728_L. The information displayed about this property comprises a property advertisement. Rightmove.co.uk makes no warranty as to the accuracy or completeness of the advertisement or any linked or associated information, and Rightmove has no control over the content. This property advertisement does not constitute property particulars. The information is provided and maintained by Prospect, Maidenhead. Please contact the selling agent or developer directly to obtain any information which may be available under the terms of The Energy Performance of Buildings (Certificates and Inspections) (England and Wales) Regulations 2007 or the Home Report if in relation to a residential property in Scotland.
*This is the average speed from the provider with the fastest broadband package available at this postcode. The average speed displayed is based on the download speeds of at least 50% of customers at peak time (8pm to 10pm). Fibre/cable services at the postcode are subject to availability and may differ between properties within a postcode. Speeds can be affected by a range of technical and environmental factors. The speed at the property may be lower than that listed above. You can check the estimated speed and confirm availability to a property prior to purchasing on the broadband provider's website. Providers may increase charges. The information is provided and maintained by Decision Technologies Limited. **This is indicative only and based on a 2-person household with multiple devices and simultaneous usage. Broadband performance is affected by multiple factors including number of occupants and devices, simultaneous usage, router range etc. For more information speak to your broadband provider.
Map data ©OpenStreetMap contributors.





