
34, Cronk View Crescent, Port Erin

- PROPERTY TYPE
End of Terrace
- BEDROOMS
3
- BATHROOMS
1
- SIZE
Ask agent
- TENUREDescribes how you own a property. There are different types of tenure - freehold, leasehold, and commonhold.Read more about tenure in our glossary page.
Ask agent
Key features
- Stylish modern end of terrace home
- Offered for sale with no onward chain
- Highly desirable and modern development of Ballakilley
- Located within a short distance to arguably one of the Islands bests beaches
- Situated within a short distance to centre of Port Erin & Port St Mary
- High quality luxury fixtures and fittings throughout
- Living room and modern dining kitchen with french doors to the rear garden
- 3 Bedrooms and a luxury family bathroom
- Driveway with off street parking for 2 cars to the front of the property
- Attractive lawned rear garden with hard standing seating area
Description
This stylish modern end of terrace home is offered for sale with no onward chain and is located within the highly desirable and contemporary development of Ballakilley. The property is perfectly positioned within a short distance of arguably one of the Island’s best beaches, and is also conveniently situated close to the centres of Port Erin and Port St Mary, with their excellent range of amenities.
Finished to a high standard throughout, the accommodation benefits from quality luxury fixtures and fittings, creating a modern and comfortable home ideal for a range of buyers.
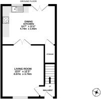
The ground floor comprises a welcoming living room and a modern dining kitchen with French doors opening onto the rear garden, providing an ideal layout for both everyday living and entertaining.
To the first floor are three bedrooms and a beautifully appointed luxury family bathroom.
Externally, the property benefits from a driveway to the front providing off-street parking for two cars. The attractive rear garden is mainly laid to lawn and features a hard-standing seating area, perfect for outdoor dining and relaxation.
This superb home offers contemporary living in a sought-after location and would be ideal for families or first-time buyers.
Inclusions All fitted floor coverings, blinds, curtains and light fittings
Appliances Oven and 4 ring hob, fridge/freezer and washing machine
Tenure Freehold
Rates Treasury tel - and Douglas Borough tel -
Heating Gas
Windows uPVC double glazing
- COUNCIL TAXA payment made to your local authority in order to pay for local services like schools, libraries, and refuse collection. The amount you pay depends on the value of the property.Read more about council Tax in our glossary page.
- Ask agent
- PARKINGDetails of how and where vehicles can be parked, and any associated costs.Read more about parking in our glossary page.
- Yes
- GARDENA property has access to an outdoor space, which could be private or shared.
- Yes
- ACCESSIBILITYHow a property has been adapted to meet the needs of vulnerable or disabled individuals.Read more about accessibility in our glossary page.
- Ask agent
Energy performance certificate - ask agent
34, Cronk View Crescent, Port Erin
Add an important place to see how long it'd take to get there from our property listings.
__mins driving to your place
Get an instant, personalised result:
- Show sellers you’re serious
- Secure viewings faster with agents
- No impact on your credit score
Your mortgage
Notes
Staying secure when looking for property
Ensure you're up to date with our latest advice on how to avoid fraud or scams when looking for property online.
Visit our security centre to find out moreDisclaimer - Property reference 7134. The information displayed about this property comprises a property advertisement. Rightmove.co.uk makes no warranty as to the accuracy or completeness of the advertisement or any linked or associated information, and Rightmove has no control over the content. This property advertisement does not constitute property particulars. The information is provided and maintained by Garforth Gray, Isle of Man. Please contact the selling agent or developer directly to obtain any information which may be available under the terms of The Energy Performance of Buildings (Certificates and Inspections) (England and Wales) Regulations 2007 or the Home Report if in relation to a residential property in Scotland.
*This is the average speed from the provider with the fastest broadband package available at this postcode. The average speed displayed is based on the download speeds of at least 50% of customers at peak time (8pm to 10pm). Fibre/cable services at the postcode are subject to availability and may differ between properties within a postcode. Speeds can be affected by a range of technical and environmental factors. The speed at the property may be lower than that listed above. You can check the estimated speed and confirm availability to a property prior to purchasing on the broadband provider's website. Providers may increase charges. The information is provided and maintained by Decision Technologies Limited. **This is indicative only and based on a 2-person household with multiple devices and simultaneous usage. Broadband performance is affected by multiple factors including number of occupants and devices, simultaneous usage, router range etc. For more information speak to your broadband provider.
Map data ©OpenStreetMap contributors.






