
The Heath, Glossop, Derbyshire, SK13 7QF

- PROPERTY TYPE
Detached
- BEDROOMS
4
- BATHROOMS
2
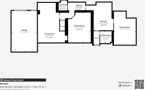
- SIZE
Ask agent
- TENUREDescribes how you own a property. There are different types of tenure - freehold, leasehold, and commonhold.Read more about tenure in our glossary page.
Freehold
Key features
- Beautiful barn conversion full of charm and character
- Exclusive location at the end of a quiet leafy lane
- Four double bedrooms
- Spacious lounge with stone fireplace, multi-fuel stove, and exposed beams
- Elegant dining room ideal for entertaining family and friends
- Solid oak kitchen diner with Rangemaster cooker, Belfast sink and integrated appliances.
- Large master bedroom with exposed stone wall, walk-in wardrobe, and en-suite bathroom
- Four piece family bathroom suite
- Gated driveway with ample parking and spacious garage (conversion potential, subject to consent)
Description
Nestled at the end of a leafy lane, Country Holmes are delighted to present this exceptional, sympathetically restored barn conversion. This beautiful home is brimming with character and offers a tranquil retreat in a truly picturesque setting.
The property welcomes you through a delightful front garden patio into a characterful hallway featuring quarry tiled flooring. From here, the home unfolds into a series of warm, inviting spaces. The lounge, full of rustic charm, centres around a magnificent stone-built fireplace with a multi-fuel stove and stone mantel, complemented by exposed beams and generous natural light streaming through multiple windows, including a distinctive circular feature window.
The elegant dining room is perfect for entertaining, with a traditional wood-surround fireplace, exposed beams, and ample space for hosting family and friends. The solid oak country kitchen, beautifully crafted with a comprehensive range of cabinets and display units, integrated appliances, a Belfast sink, and a Rangemaster cooker. A Welsh dresser and quarry tiled floors complete the country aesthetic, while large windows and a connecting conservatory flood the space with light, creating a warm and inviting atmosphere for family gatherings.
Adjoining the kitchen, the utility room offers practicality and convenience, complete with a work surface, plumbing for laundry appliances, a WC, and stable-style door leading to the rear of the property. The conservatory, a charming addition, enjoys an elevated position with stone flooring, feature stone wall, and bright views over the garden—a peaceful spot to relax and unwind.
Upstairs, the spacious master bedroom boasts an abundance of natural light from three windows, a beautiful exposed stone wall, and a walk-in wardrobe, leading to a en-suite bathroom with a classic white suite. Two further double bedrooms provide excellent accommodation; bedroom two features a large storage cupboard with potential for conversion into an additional en-suite, while bedroom three currently serves as a charming guest room with fitted wardrobes and garden views. The Fourth bedroom currently serves as a useful hobby/crafts room. The main bathroom offers a four-piece suite including a corner bath, shower, bidet, and airing cupboard.
Outside, wrought iron gates onto a stone-flagged driveway providing ample parking and access to a spacious garage, offering potential for conversion to an annexe (subject to planning permission/building regulations). The delightful two-tiered garden is a true highlight, featuring a generous patio for outdoor dining, stone steps leading to a well-maintained lawn, mature planting, a garden shed and a charming pergola.
This unique property perfectly blends period charm with modern comfort, in an idyllic and highly sought-after location. Rarely do homes of this quality and character come to the market—early viewing is strongly recommended.
Important Information
We take every care in preparing our sales details. They are checked and verified by the Vendor. We do not guarantee appliances, alarms, electrical fittings, plumbing, showers, etc, you must satisfy yourself that they operate correctly. Room sizes are approximate, they are taken in imperial and converted to metric, do not use them to buy carpets or furniture. We cannot verify the tenure, as we do not have access to the legal title, we cannot guarantee boundaries or rights of way, and you must take the advice of your legal representative. If there is any point that is of particular importance to you, please contact the office and we will be pleased to check the information. Do so, particularly if contemplating travelling some distance to view.
Brochures
Brochure 1- COUNCIL TAXA payment made to your local authority in order to pay for local services like schools, libraries, and refuse collection. The amount you pay depends on the value of the property.Read more about council Tax in our glossary page.
- Band: G
- PARKINGDetails of how and where vehicles can be parked, and any associated costs.Read more about parking in our glossary page.
- Yes
- GARDENA property has access to an outdoor space, which could be private or shared.
- Yes
- ACCESSIBILITYHow a property has been adapted to meet the needs of vulnerable or disabled individuals.Read more about accessibility in our glossary page.
- Ask agent
The Heath, Glossop, Derbyshire, SK13 7QF
Add an important place to see how long it'd take to get there from our property listings.
__mins driving to your place
Get an instant, personalised result:
- Show sellers you’re serious
- Secure viewings faster with agents
- No impact on your credit score
Your mortgage
Notes
Staying secure when looking for property
Ensure you're up to date with our latest advice on how to avoid fraud or scams when looking for property online.
Visit our security centre to find out moreDisclaimer - Property reference S1603821. The information displayed about this property comprises a property advertisement. Rightmove.co.uk makes no warranty as to the accuracy or completeness of the advertisement or any linked or associated information, and Rightmove has no control over the content. This property advertisement does not constitute property particulars. The information is provided and maintained by Country Holmes, Glossop. Please contact the selling agent or developer directly to obtain any information which may be available under the terms of The Energy Performance of Buildings (Certificates and Inspections) (England and Wales) Regulations 2007 or the Home Report if in relation to a residential property in Scotland.
*This is the average speed from the provider with the fastest broadband package available at this postcode. The average speed displayed is based on the download speeds of at least 50% of customers at peak time (8pm to 10pm). Fibre/cable services at the postcode are subject to availability and may differ between properties within a postcode. Speeds can be affected by a range of technical and environmental factors. The speed at the property may be lower than that listed above. You can check the estimated speed and confirm availability to a property prior to purchasing on the broadband provider's website. Providers may increase charges. The information is provided and maintained by Decision Technologies Limited. **This is indicative only and based on a 2-person household with multiple devices and simultaneous usage. Broadband performance is affected by multiple factors including number of occupants and devices, simultaneous usage, router range etc. For more information speak to your broadband provider.
Map data ©OpenStreetMap contributors.






