
Westdown Cottage, Cheriton Bishop, EX6
- PROPERTY TYPE
Plot
- BEDROOMS
5
- BATHROOMS
3
- SIZE
Ask agent
Key features
- Building plot of 0.5 acre
- Backing onto fields
- Approx. 1 mile to village
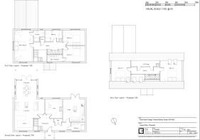
- Planning for large 5 bedroom house
- 288sqm (3098 sqft)
- Level and good access
- Existing house to demolish
Description
Cheriton Bishop is a popular village due to its community and great links onto the A30 opening up easy access to Exeter and beyond. There’s a pub, shop and primary school with a school bus to secondary school and there’s a very well thought of medical centre. The town of Crediton is about 15 minutes away and in the nearby village of Yeoford, there are rail links to Exeter and Barnstaple on the Tarka line.
This is a rare opportunity for a brand new house in a countryside setting, just a mile from Cheriton Bishop. In its own 0.50 acre plot, the planning permission was granted by Mid Devon District Council on 3rd September 2023 under their reference 23/01001/FULL. The planning is to demolish the existing house and build a new larger property in the plot. The new house will be set back a little further than the existing to make the most of the gardens of which are south facing. The plans show a large, 3 storey (rooms in the roof) detached family home of approx. 288sqm (3098 sqft) so it’s a very good size. Of course, the planning could be changed to suit but this would depend on the council’s decision following consultation. The new house will be very energy efficient and have some lovely views.
Please do not access the site or the field without an appointment with the agents.
Please see the floorplan for room sizes.
Current Council Tax: TBC
Approx Age: Not built
Construction Notes: TBC
Utilities: Mains electric, water, telephone & broadband
Broadband within this postcode: Standard broadband available (Ofcom) or Starlink option
Mobile Coverage: Ofcom – outside likely, inside depending on provider.
Drainage: Private Drainage (to be installed)
Heating: TBC
Listed: No
Conservation Area: No
Tenure: Freehold
Buyers’ Compliance Fee Notice - Please note that a compliance check fee of £25 (inc. VAT) per person is payable once your offer is accepted. This non-refundable fee covers essential ID verification and anti-money laundering checks, as required by law.
CHERITON BISHOP is a village situated at the northern borders of Dartmoor National Park – between the City of Exeter and the town of Okehampton. The farmlands adjoining Cheriton undulate with true Devon character, gradually rising towards Dartmoor, where altitudes creep to heights in excess of 1000 ft above sea level. The village is ideally placed for hassle free access to the A30 dual carriageway, a direct injection into Exeter (10 miles) and a great route west to Cornwall. Facilities include, a parish church, a inn - The Thatch, a primary school and a Doctor’s surgery. Fancy sloshing a drink around and wiggling to a beat? For music lovers: Cheriton hosts two annual festivals at the Woodleigh Coach House – ‘The Gig in The Garden’ and ‘Jam in June’, the perfect opportunity to see some talented local acts.
DIRECTIONS : For sat-nav use EX6 6HG and the What3Words address is ///paramedic.vintages.defectors
Brochures
Property BrochureWestdown Cottage, Cheriton Bishop, EX6
NEAREST STATIONS
Distances are straight line measurements from the centre of the postcode- Yeoford Station2.4 miles
- Copplestone Station4.8 miles
- Crediton Station5.0 miles
Notes
Disclaimer - Property reference 4229258e-45d0-41c3-a4a5-767bace1481c. The information displayed about this property comprises a property advertisement. Rightmove.co.uk makes no warranty as to the accuracy or completeness of the advertisement or any linked or associated information, and Rightmove has no control over the content. This property advertisement does not constitute property particulars. The information is provided and maintained by Helmores, Crediton. Please contact the selling agent or developer directly to obtain any information which may be available under the terms of The Energy Performance of Buildings (Certificates and Inspections) (England and Wales) Regulations 2007 or the Home Report if in relation to a residential property in Scotland.
Map data ©OpenStreetMap contributors.








