
Fourfields, Rosedale Way, Cheshunt

- PROPERTY TYPE
Detached
- BEDROOMS
3
- BATHROOMS
2
- SIZE
1,122 sq ft
104 sq m
- TENUREDescribes how you own a property. There are different types of tenure - freehold, leasehold, and commonhold.Read more about tenure in our glossary page.
Freehold
Description
Designed for modern living, the homes offer well-proportioned accommodation with contemporary finishes and strong energy efficiency throughout. Each property features a modern kitchen with laminate worktops and integrated appliances, along with stylish bathrooms fitted with thermostatic showers and chrome heated towel rails.
Additional features include UPVC double glazing, composite front doors, mains-powered smoke alarms, TV and data points, and energy-efficient air source heat pump heating. Externally, the properties benefit from turfed rear gardens with patio areas, 1.8m boundary fencing and off-street parking.
Conveniently located for local schools, amenities and transport links, these homes provide an excellent opportunity to purchase a high-quality new build in a well-established residential area.
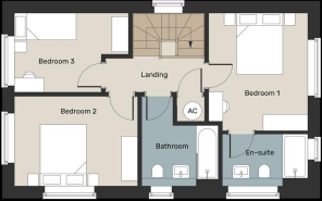
Kitchen/Diner - 3.67 x 5.59 (12'0" x 18'4") -
Living Room - 3.21 x 5.59 (10'6" x 18'4") -
Wc - 1.14 x 1.73 (3'8" x 5'8") -
Bedroom One - 3.20 x 3.79 (10'5" x 12'5") -
En-Suite - 2.76 x 1.70 (9'0" x 5'6") -
Bedroom Two - 3.96 x 2.91 (12'11" x 9'6") -
Bedroom Three - 3.66 x 2.56 (12'0" x 8'4") -
Bathroom - 2.45 x 2.91 (8'0" x 9'6") -
Brochures
Fourfields, Rosedale Way, CheshuntBrochure- COUNCIL TAXA payment made to your local authority in order to pay for local services like schools, libraries, and refuse collection. The amount you pay depends on the value of the property.Read more about council Tax in our glossary page.
- Ask agent
- PARKINGDetails of how and where vehicles can be parked, and any associated costs.Read more about parking in our glossary page.
- Off street
- GARDENA property has access to an outdoor space, which could be private or shared.
- Yes
- ACCESSIBILITYHow a property has been adapted to meet the needs of vulnerable or disabled individuals.Read more about accessibility in our glossary page.
- Ask agent
Energy performance certificate - ask agent
Fourfields, Rosedale Way, Cheshunt
Add an important place to see how long it'd take to get there from our property listings.
__mins driving to your place
Get an instant, personalised result:
- Show sellers you’re serious
- Secure viewings faster with agents
- No impact on your credit score
Your mortgage
Notes
Staying secure when looking for property
Ensure you're up to date with our latest advice on how to avoid fraud or scams when looking for property online.
Visit our security centre to find out moreDisclaimer - Property reference 34472574. The information displayed about this property comprises a property advertisement. Rightmove.co.uk makes no warranty as to the accuracy or completeness of the advertisement or any linked or associated information, and Rightmove has no control over the content. This property advertisement does not constitute property particulars. The information is provided and maintained by Kirby Colletti, Hoddesdon. Please contact the selling agent or developer directly to obtain any information which may be available under the terms of The Energy Performance of Buildings (Certificates and Inspections) (England and Wales) Regulations 2007 or the Home Report if in relation to a residential property in Scotland.
*This is the average speed from the provider with the fastest broadband package available at this postcode. The average speed displayed is based on the download speeds of at least 50% of customers at peak time (8pm to 10pm). Fibre/cable services at the postcode are subject to availability and may differ between properties within a postcode. Speeds can be affected by a range of technical and environmental factors. The speed at the property may be lower than that listed above. You can check the estimated speed and confirm availability to a property prior to purchasing on the broadband provider's website. Providers may increase charges. The information is provided and maintained by Decision Technologies Limited. **This is indicative only and based on a 2-person household with multiple devices and simultaneous usage. Broadband performance is affected by multiple factors including number of occupants and devices, simultaneous usage, router range etc. For more information speak to your broadband provider.
Map data ©OpenStreetMap contributors.









