Longsight Road, BB1

- PROPERTY TYPE
Barn
- BEDROOMS
4
- SIZE
Ask agent
- TENUREDescribes how you own a property. There are different types of tenure - freehold, leasehold, and commonhold.Read more about tenure in our glossary page.
Freehold
Key features
- Substantial detached traditional stone barn with planning permission granted on 7 August 2025 (Ref: 3/2025/0266), subject to the discharge of conditions.
- Consent approved for conversion into two high-quality contemporary residential dwellings, designed to retain the character of the original building.
- The scheme provides for a spacious four-bedroom home (Plot 1) and an impressive five-bedroom home (Plot 2), offering generous and flexible accommodation.
- Located to the east of Copster Green in the Ribble Valley, enjoying a peaceful village environment with excellent commuter links to Preston, Blackburn and beyond.
Description
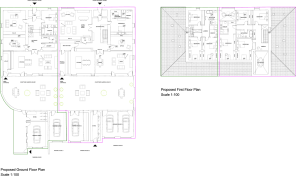
Approved planning permission for conversion into two high-quality contemporary dwellings, thoughtfully designed to retain original character features and create private courtyard gardens.
Situated to the east of Copster Green near Langho, in the heart of the Ribble Valley, offering a semi-rural setting with excellent commuter links. Langho railway station is approximately 1 mile away with direct services to Blackburn and Manchester.
Each property is arranged over two floors and features spacious entrance halls, flexible living accommodation, open-plan kitchens, utility rooms and ground-floor WCs. Both homes benefit from a ground-floor en-suite bedroom and direct access to private courtyard gardens, with garaging and storage adjacent.
To the first floor, Plot 1 provides four bedrooms and Plot 2 offers five bedrooms, including impressive principal suites with en-suite facilities and dressing areas.
A rare opportunity to create two exceptional homes combining period character with modern living in a highly sought-after Ribble Valley location.
Brochures
Brochure 1- COUNCIL TAXA payment made to your local authority in order to pay for local services like schools, libraries, and refuse collection. The amount you pay depends on the value of the property.Read more about council Tax in our glossary page.
- Ask agent
- PARKINGDetails of how and where vehicles can be parked, and any associated costs.Read more about parking in our glossary page.
- Ask agent
- GARDENA property has access to an outdoor space, which could be private or shared.
- Yes
- ACCESSIBILITYHow a property has been adapted to meet the needs of vulnerable or disabled individuals.Read more about accessibility in our glossary page.
- Ask agent
Energy performance certificate - ask agent
Longsight Road, BB1
Add an important place to see how long it'd take to get there from our property listings.
__mins driving to your place
Get an instant, personalised result:
- Show sellers you’re serious
- Secure viewings faster with agents
- No impact on your credit score
Your mortgage
Notes
Staying secure when looking for property
Ensure you're up to date with our latest advice on how to avoid fraud or scams when looking for property online.
Visit our security centre to find out moreDisclaimer - Property reference SkyesBarn. The information displayed about this property comprises a property advertisement. Rightmove.co.uk makes no warranty as to the accuracy or completeness of the advertisement or any linked or associated information, and Rightmove has no control over the content. This property advertisement does not constitute property particulars. The information is provided and maintained by Ingham & Yorke, Lancashire. Please contact the selling agent or developer directly to obtain any information which may be available under the terms of The Energy Performance of Buildings (Certificates and Inspections) (England and Wales) Regulations 2007 or the Home Report if in relation to a residential property in Scotland.
*This is the average speed from the provider with the fastest broadband package available at this postcode. The average speed displayed is based on the download speeds of at least 50% of customers at peak time (8pm to 10pm). Fibre/cable services at the postcode are subject to availability and may differ between properties within a postcode. Speeds can be affected by a range of technical and environmental factors. The speed at the property may be lower than that listed above. You can check the estimated speed and confirm availability to a property prior to purchasing on the broadband provider's website. Providers may increase charges. The information is provided and maintained by Decision Technologies Limited. **This is indicative only and based on a 2-person household with multiple devices and simultaneous usage. Broadband performance is affected by multiple factors including number of occupants and devices, simultaneous usage, router range etc. For more information speak to your broadband provider.
Map data ©OpenStreetMap contributors.





