Queensberry Road, Burnley

- PROPERTY TYPE
Terraced
- BEDROOMS
4
- BATHROOMS
4
- SIZE
Ask agent
- TENUREDescribes how you own a property. There are different types of tenure - freehold, leasehold, and commonhold.Read more about tenure in our glossary page.
Freehold
Key features
- HMO FOR SALE
- Close to Town Centre
- Tenants In Situ
- INVESTMENT PROPERTY
- 4 Rooms
- 4 Bathrooms
Description
An excellent opportunity to acquire a high-performing, fully licensed HMO with tenants already in place, generating £1,799 per calendar month.
Fully refurbished in 2022 to a high standard and converted specifically for HMO use, this property offers a turnkey investment with immediate income and no initial setup required.
Key Features:
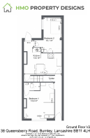
4 Rooms
1 Double Occupancy Room
3 Single Occupancy Rooms
4 Bathrooms (one per room configuration)
Licensed HMO for 5 occupants
Fully refurbished in 2022
Tenants in situ
£1,799 PCM rental income
Walking distance to local amenities
Close to main transport links
The layout has been thoughtfully designed to maximise rental return while maintaining strong tenant appeal. Each room benefits from its own bathroom provision, making it highly attractive to professional tenants and helping to ensure consistent occupancy.
Located just a short walk from shops, supermarkets, and key transport routes, the property is ideally positioned for long-term rental demand.
This is a perfect hands-off investment for both experienced landlords and those looking to expand their portfolio with a compliant, income-generating asset from day one with a managing agent in place.
For further details or to arrange a viewing, please get in touch.
Brochures
Queensberry Road, BurnleyBrochure- COUNCIL TAXA payment made to your local authority in order to pay for local services like schools, libraries, and refuse collection. The amount you pay depends on the value of the property.Read more about council Tax in our glossary page.
- Band: A
- PARKINGDetails of how and where vehicles can be parked, and any associated costs.Read more about parking in our glossary page.
- Ask agent
- GARDENA property has access to an outdoor space, which could be private or shared.
- Ask agent
- ACCESSIBILITYHow a property has been adapted to meet the needs of vulnerable or disabled individuals.Read more about accessibility in our glossary page.
- Ask agent
Queensberry Road, Burnley
Add an important place to see how long it'd take to get there from our property listings.
__mins driving to your place
Get an instant, personalised result:
- Show sellers you’re serious
- Secure viewings faster with agents
- No impact on your credit score
Your mortgage
Notes
Staying secure when looking for property
Ensure you're up to date with our latest advice on how to avoid fraud or scams when looking for property online.
Visit our security centre to find out moreDisclaimer - Property reference 34474973. The information displayed about this property comprises a property advertisement. Rightmove.co.uk makes no warranty as to the accuracy or completeness of the advertisement or any linked or associated information, and Rightmove has no control over the content. This property advertisement does not constitute property particulars. The information is provided and maintained by E & M Property Solutions, Burnley. Please contact the selling agent or developer directly to obtain any information which may be available under the terms of The Energy Performance of Buildings (Certificates and Inspections) (England and Wales) Regulations 2007 or the Home Report if in relation to a residential property in Scotland.
*This is the average speed from the provider with the fastest broadband package available at this postcode. The average speed displayed is based on the download speeds of at least 50% of customers at peak time (8pm to 10pm). Fibre/cable services at the postcode are subject to availability and may differ between properties within a postcode. Speeds can be affected by a range of technical and environmental factors. The speed at the property may be lower than that listed above. You can check the estimated speed and confirm availability to a property prior to purchasing on the broadband provider's website. Providers may increase charges. The information is provided and maintained by Decision Technologies Limited. **This is indicative only and based on a 2-person household with multiple devices and simultaneous usage. Broadband performance is affected by multiple factors including number of occupants and devices, simultaneous usage, router range etc. For more information speak to your broadband provider.
Map data ©OpenStreetMap contributors.






