Friars Close, Peacehaven

- PROPERTY TYPE
House
- BEDROOMS
3
- BATHROOMS
2
- SIZE
Ask agent
- TENUREDescribes how you own a property. There are different types of tenure - freehold, leasehold, and commonhold.Read more about tenure in our glossary page.
Freehold
Key features
- Three Storey Townhouse with No Chain
- Well Presented Throughout
- Light and Bright Living Room
- Modern Kitchen/Dining Room and Conservatory
- Bedroom's Offer a Mix of Either Distant Countryside or Distant Sea Views
- Main Bedroom with Ensuite Shower Room
- Allocated Parking
- No Chain
- Estate Charge of £60 per month
- * OPEN DAY 27th March - Please contact the our office for time allocations *
Description
Located in the charming area of Friars Close, Peacehaven, this modern three-storey townhouse presents an exceptional opportunity for those seeking a stylish and spacious home. With no onward chain, this property is ready for you to move in and make it your own.
The house boasts an inviting reception room, perfect for entertaining guests or enjoying quiet family time. The living room features elegant doors that lead to a delightful conservatory, seamlessly connecting indoor and outdoor spaces. Adjacent to the living room, you will find a contemporary kitchen/dining room, designed for both functionality and style.
This townhouse offers three well-proportioned bedrooms and a bathroom spread across the upper floors, ensuring ample space for family or guests. The master bedroom is a true retreat, complete with its own ensuite bathroom, providing a private sanctuary for relaxation.
One of the standout features of this property are the lovely views it offers. From the first and second floor bedrooms, you can enjoy distant sea views, while the rear presents views across town toward countryside beyond, creating a serene backdrop to your daily life.
Additionally, the property includes parking for two vehicles, a valuable asset in this desirable location. With its modern design and convenient amenities, this townhouse is an ideal choice for families or professionals looking for a comfortable and stylish living space.
In summary, this property on Friars Close is a rare find, combining modern living with beautiful views and ample space. Do not miss the chance to make this lovely house your new home.
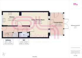
Living/Dining Room - 4.57m x 3.23m (15' x 10'7) -
Kitchen - 4.80m x 2.41m (15'9 x 7'11) -
Conservatory - 3.89m x 2.44m (12'9 x 8') -
Claokroom/Wc -
Bedroom - 4.01m x 3.58m (13'2 x 11'9) -
Ensuite Shower Room - 1.78m x 1.32m (5'10 x 4'4) -
Bedroom - 4.57m x 3.05m (15' x 10') -
Bedroom - 2.87m x 2.62m (9'5 x 8'7) -
Family Bathroom/Wc - 2.39m x 1.93m (7'10 x 6'4) -
Brochures
Friars Close, Peacehaven- COUNCIL TAXA payment made to your local authority in order to pay for local services like schools, libraries, and refuse collection. The amount you pay depends on the value of the property.Read more about council Tax in our glossary page.
- Band: D
- PARKINGDetails of how and where vehicles can be parked, and any associated costs.Read more about parking in our glossary page.
- Yes
- GARDENA property has access to an outdoor space, which could be private or shared.
- Ask agent
- ACCESSIBILITYHow a property has been adapted to meet the needs of vulnerable or disabled individuals.Read more about accessibility in our glossary page.
- Ask agent
Friars Close, Peacehaven
Add an important place to see how long it'd take to get there from our property listings.
__mins driving to your place
Get an instant, personalised result:
- Show sellers you’re serious
- Secure viewings faster with agents
- No impact on your credit score

Affordability
Notes
Staying secure when looking for property
Ensure you're up to date with our latest advice on how to avoid fraud or scams when looking for property online.
Visit our security centre to find out moreDisclaimer - Property reference 34475120. The information displayed about this property comprises a property advertisement. Rightmove.co.uk makes no warranty as to the accuracy or completeness of the advertisement or any linked or associated information, and Rightmove has no control over the content. This property advertisement does not constitute property particulars. The information is provided and maintained by Open House Estate Agents, Brighton. Please contact the selling agent or developer directly to obtain any information which may be available under the terms of The Energy Performance of Buildings (Certificates and Inspections) (England and Wales) Regulations 2007 or the Home Report if in relation to a residential property in Scotland.
*This is the average speed from the provider with the fastest broadband package available at this postcode. The average speed displayed is based on the download speeds of at least 50% of customers at peak time (8pm to 10pm). Fibre/cable services at the postcode are subject to availability and may differ between properties within a postcode. Speeds can be affected by a range of technical and environmental factors. The speed at the property may be lower than that listed above. You can check the estimated speed and confirm availability to a property prior to purchasing on the broadband provider's website. Providers may increase charges. The information is provided and maintained by Decision Technologies Limited. **This is indicative only and based on a 2-person household with multiple devices and simultaneous usage. Broadband performance is affected by multiple factors including number of occupants and devices, simultaneous usage, router range etc. For more information speak to your broadband provider.
Map data ©OpenStreetMap contributors.





