
Westminster Road, Morecambe, LA4 4JA

- PROPERTY TYPE
Maisonette
- BEDROOMS
2
- BATHROOMS
1
- SIZE
Ask agent
- TENUREDescribes how you own a property. There are different types of tenure - freehold, leasehold, and commonhold.Read more about tenure in our glossary page.
Freehold
Key features
- Beautiful maisonette (823 sq ft)
- Competitively priced for 28-day auction and chain free
- Great opportunity for savvy buy-to-let investors
- Offered with vacant possession
- Rental income = £795pcm (tenant vacating at the end of February)
- Gross yield = 14.68% (based on guide price)
- Sale includes ownership of the freehold title (2 flats in the building)
- EPC Rating "C"
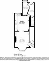
- Spacious family lounge (166.10 sq ft)
- Fitted kitchen (155.94 sq ft)
Description
Bidding opens on the 17th of March at 12:00 and closes on the 24th of March at 12:00 with a GUIDE PRICE of £65,000.
Property Solver Online Auctions is thrilled to present this beautiful maisonette (823 sq ft) that is perfect for a savvy buy-to-let investor located in the highly sought-after Westminster Road, Morecambe.
Located on the highly sought-after Westminster Road, this well-presented two-bedroom maisonette offers a superb turnkey investment opportunity. Perfectly positioned close to Morecambe town centre, local amenities, transport links and the scenic promenade, it’s an attractive choice for long-term tenants and professionals seeking convenient coastal living.
The maisonette spans two floors, providing a generous total floor area of approximately 823 sq ft. The ground floor (501 sq ft) comprises a bright and spacious family lounge (166 sq ft), a well-equipped fitted kitchen (156 sq ft), and a modern shower room (57 sq ft). The lower ground floor (322 sq ft) features two comfortable bedrooms – Bedroom 1 (192 sq ft) and Bedroom 2 (107 sq ft). The property also features a rear garden and ample on-road parking for convenience.
With the Eden Project North regeneration continuing to boost Morecambe’s profile and property demand, this tenanted maisonette at LA4 4JA represents an ideal high-yield addition to any growing portfolio. It lies within walking distance of local amenities – including shops, parks and transport links – and is close to several Ofsted-rated Good schools such as Lancaster Road Primary School (Good) and Morecambe Bay Community Primary School (Good).
Contact Property Solvers Auctions 24/7 for more information and to book in a viewing...
More Information
The Property Solvers Auctions enquiry line is open 24/7 and we're happy to answer any questions.
28-day unconditional auction terms + conditions, AML requirements and fees are available on our website (Google "Property Solvers Auctions" and select "Auction Property for Sale" in the navigation).
The preliminary legal pack can be viewed directly via the auction listing itself. Property Solvers Auctions will update the legal pack and inform all parties that express interest in bidding. For conveyancing searches that are not received in time for the auction, a Professional Indemnity Insurance policy can be taken out.
Notice to Bidders
Please be aware that if your bid is successful on auction day, the exchange of contracts will happen immediately after the Auction. A 10% deposit will be required.
As part of the Property Solvers Online Auction process, bidders will be required to register online and provide proof of ID documents (passport and photo driving license). For a full list of requirements, please see the legal pack documents.
Buyer Reservation Fee
A 2% + VAT (non-refundable) fee (subject to a minimum of £2,000 + VAT) plus a £125 + VAT processing fee will be due from the winning bidder.
Generally speaking, guide prices are provided as an indication of each seller's minimum expectation, i.e. 'the reserve'. They are not necessarily figures which a property will sell for and may change at any time prior to the auction.
Virtually every property will be offered subject to a reserve (a figure below which the auctioneer cannot sell the property during the auction) which we expect will be set within the guide range or no more than 10% above a single figure guide.
- COUNCIL TAXA payment made to your local authority in order to pay for local services like schools, libraries, and refuse collection. The amount you pay depends on the value of the property.Read more about council Tax in our glossary page.
- Ask agent
- PARKINGDetails of how and where vehicles can be parked, and any associated costs.Read more about parking in our glossary page.
- On street
- GARDENA property has access to an outdoor space, which could be private or shared.
- Yes
- ACCESSIBILITYHow a property has been adapted to meet the needs of vulnerable or disabled individuals.Read more about accessibility in our glossary page.
- Ask agent
Energy performance certificate - ask agent
Westminster Road, Morecambe, LA4 4JA
Add an important place to see how long it'd take to get there from our property listings.
__mins driving to your place
Get an instant, personalised result:
- Show sellers you’re serious
- Secure viewings faster with agents
- No impact on your credit score



Your mortgage
Notes
Staying secure when looking for property
Ensure you're up to date with our latest advice on how to avoid fraud or scams when looking for property online.
Visit our security centre to find out moreDisclaimer - Property reference 27969. The information displayed about this property comprises a property advertisement. Rightmove.co.uk makes no warranty as to the accuracy or completeness of the advertisement or any linked or associated information, and Rightmove has no control over the content. This property advertisement does not constitute property particulars. The information is provided and maintained by Property Solvers, London. Please contact the selling agent or developer directly to obtain any information which may be available under the terms of The Energy Performance of Buildings (Certificates and Inspections) (England and Wales) Regulations 2007 or the Home Report if in relation to a residential property in Scotland.
Auction Fees: The purchase of this property may include associated fees not listed here, as it is to be sold via auction. To find out more about the fees associated with this property please call Property Solvers, London on 08000 443798.
*Guide Price: An indication of a seller's minimum expectation at auction and given as a Guide Price or a range of Guide Prices. This is not necessarily the figure a property will sell for and is subject to change prior to the auction.
Reserve Price: Each auction property will be subject to a Reserve Price below which the property cannot be sold at auction. Normally the Reserve Price will be set within the range of Guide Prices or no more than 10% above a single Guide Price.
*This is the average speed from the provider with the fastest broadband package available at this postcode. The average speed displayed is based on the download speeds of at least 50% of customers at peak time (8pm to 10pm). Fibre/cable services at the postcode are subject to availability and may differ between properties within a postcode. Speeds can be affected by a range of technical and environmental factors. The speed at the property may be lower than that listed above. You can check the estimated speed and confirm availability to a property prior to purchasing on the broadband provider's website. Providers may increase charges. The information is provided and maintained by Decision Technologies Limited. **This is indicative only and based on a 2-person household with multiple devices and simultaneous usage. Broadband performance is affected by multiple factors including number of occupants and devices, simultaneous usage, router range etc. For more information speak to your broadband provider.
Map data ©OpenStreetMap contributors.






