
Homestead Avenue, Haydock, WA11

- PROPERTY TYPE
Semi-Detached
- BEDROOMS
2
- BATHROOMS
1
- SIZE
Ask agent
Key features
- Substantial Semi-detached family
- Spacious and well-planned accommodation over two floors
- Separate, welcoming lounge
- Contemporary kitchen with central island
- Patio doors providing direct access to the rear garden
- Additional rear-facing living space overlooking the garden
- Recently refurbished downstairs W.C.
- Two generously sized bedrooms
- Modern, spacious bathroom with luxury four-piece suite
- Beautifully presented throughout
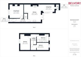
Description
This fantastic property presents an ideal opportunity for first-time buyers and growing families alike, offering spacious and thoughtfully arranged accommodation across two floors.
The ground floor features a welcoming separate lounge, providing the perfect setting for relaxing evenings or quality family time. To the rear, a well-appointed kitchen boasts a stylish kitchen island and direct access to the garden through patio doors, seamlessly connecting indoor and outdoor living. A recently refurbished downstairs W.C. adds further practicality and convenience.
A standout feature of the home is the additional living area overlooking the rear garden, creating a peaceful and versatile space ideal for entertaining, dining, or simply unwinding while enjoying garden views.
Upstairs, the property continues to impress with two generously sized bedrooms. The principal bedroom is a spacious double, offering ample room for furnishings and storage, while the second bedroom is equally well-proportioned and beautifully presented. Completing the first floor is a contemporary and notably spacious bathroom, fitted with a luxurious four-piece suite.
Perfectly positioned, the property benefits from excellent public transport links, well-regarded schools, and a range of local amenities all within easy reach. Combining comfort, convenience, and modern living, this home is ready to move into and enjoy.
Tenure: Leasehold,DISCLAIMER
IMPORTANT NOTICE: All descriptions, plans, dimensions, references to condition or suitability for use, necessary permissions for use and occupation and other details are given in good faith and are believed to be correct and any intending purchasers or lessees should not rely on them as statements of fact but must satisfy themselves by inspection or otherwise as to the correctness of each. Any electrical or other appliances on the property have not been tested, nor have the drains, heating, plumbing or electrical installations. All intending purchasers are recommended to carry out their own investigations before contract. These particulars are produced in good faith and set out as a general outline only for the guidance of intended purchasers or lessees, and do not constitute an offer or contract nor any part thereof.
- COUNCIL TAXA payment made to your local authority in order to pay for local services like schools, libraries, and refuse collection. The amount you pay depends on the value of the property.Read more about council Tax in our glossary page.
- Band: A
- PARKINGDetails of how and where vehicles can be parked, and any associated costs.Read more about parking in our glossary page.
- Ask agent
- GARDENA property has access to an outdoor space, which could be private or shared.
- Private garden
- ACCESSIBILITYHow a property has been adapted to meet the needs of vulnerable or disabled individuals.Read more about accessibility in our glossary page.
- Ask agent
Energy performance certificate - ask agent
Homestead Avenue, Haydock, WA11
Add an important place to see how long it'd take to get there from our property listings.
__mins driving to your place
Get an instant, personalised result:
- Show sellers you’re serious
- Secure viewings faster with agents
- No impact on your credit score
Your mortgage
Notes
Staying secure when looking for property
Ensure you're up to date with our latest advice on how to avoid fraud or scams when looking for property online.
Visit our security centre to find out moreDisclaimer - Property reference P3889. The information displayed about this property comprises a property advertisement. Rightmove.co.uk makes no warranty as to the accuracy or completeness of the advertisement or any linked or associated information, and Rightmove has no control over the content. This property advertisement does not constitute property particulars. The information is provided and maintained by Belvoir, St Helens. Please contact the selling agent or developer directly to obtain any information which may be available under the terms of The Energy Performance of Buildings (Certificates and Inspections) (England and Wales) Regulations 2007 or the Home Report if in relation to a residential property in Scotland.
*This is the average speed from the provider with the fastest broadband package available at this postcode. The average speed displayed is based on the download speeds of at least 50% of customers at peak time (8pm to 10pm). Fibre/cable services at the postcode are subject to availability and may differ between properties within a postcode. Speeds can be affected by a range of technical and environmental factors. The speed at the property may be lower than that listed above. You can check the estimated speed and confirm availability to a property prior to purchasing on the broadband provider's website. Providers may increase charges. The information is provided and maintained by Decision Technologies Limited. **This is indicative only and based on a 2-person household with multiple devices and simultaneous usage. Broadband performance is affected by multiple factors including number of occupants and devices, simultaneous usage, router range etc. For more information speak to your broadband provider.
Map data ©OpenStreetMap contributors.





