
The Hedgerows, Haydock, WA11

- PROPERTY TYPE
Town House
- BEDROOMS
3
- BATHROOMS
2
- SIZE
Ask agent
- TENUREDescribes how you own a property. There are different types of tenure - freehold, leasehold, and commonhold.Read more about tenure in our glossary page.
Freehold
Key features
- Three Bedroom Semi Detached
- Generous Plot Corner Plot
- Open Plan Kitchen
- Conservatory
- Contemporary Shower Room
- Hydra / Steam Shower
- Popular Residential Location
Description
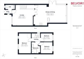
Situated on a large plot, this three-bedroom end townhouse which is offered for sale in Haydock, and is presented in good order throughout, offering a practical layout well suited to families, investors and first-time buyers. There is also PLANNING GRANTED FOR THE ERECTION of one, 3 bed end terrace two-storey dwelling adjacent to the property.
The ground floor features a downstairs wc, lounge with double doors opening into the kitchen which is open plan into the conservatory which acts as a dining room or second reception area with good natural light. Creating a central hub for day-to-day living and entertaining. From here, doors lead out to the garden, providing useful outdoor space for children to play, gardening, or relaxing/entertaining in warmer months.
The property includes a contemporary bathroom which has a hydro/steam shower, supporting busy family routines, and one double bedroom is specifically noted, with two additional bedrooms offering flexibility for children, guests, or a home office.
Haydock benefits from a range of local amenities, including supermarkets, convenience stores and local services, with further shopping and leisure options available in nearby St Helens town Centre. Families are well served by a good choice of nearby schools at primary and secondary levels.
For green space, residents can enjoy access to nearby parks and recreational areas in and around Haydock, offering play areas, walking routes and opportunities for outdoor activities.
Public transport links are readily available, with bus routes connecting Haydock to St Helens, Warrington and surrounding areas. The nearest train stations include St Helens Central, Earlestown, Newton and Garswood, all are reachable by a short drive or local bus services, providing services towards Liverpool, Wigan and Manchester. Road links are also convenient, with access to the A580 East Lancashire Road and the M6, supporting commuting across the Northwest.
EPC rating: D. Tenure: Freehold,DISCLAIMER
IMPORTANT NOTICE: All descriptions, plans, dimensions, references to condition or suitability for use, necessary permissions for use and occupation and other details are given in good faith and are believed to be correct and any intending purchasers or lessees should not rely on them as statements of fact but must satisfy themselves by inspection or otherwise as to the correctness of each. Any electrical or other appliances on the property have not been tested, nor have the drains, heating, plumbing or electrical installations. All intending purchasers are recommended to carry out their own investigations before contract. These particulars are produced in good faith and set out as a general outline only for the guidance of intended purchasers or lessees, and do not constitute an offer or contract nor any part thereof.
- COUNCIL TAXA payment made to your local authority in order to pay for local services like schools, libraries, and refuse collection. The amount you pay depends on the value of the property.Read more about council Tax in our glossary page.
- Band: B
- PARKINGDetails of how and where vehicles can be parked, and any associated costs.Read more about parking in our glossary page.
- Driveway
- GARDENA property has access to an outdoor space, which could be private or shared.
- Private garden
- ACCESSIBILITYHow a property has been adapted to meet the needs of vulnerable or disabled individuals.Read more about accessibility in our glossary page.
- Ask agent
The Hedgerows, Haydock, WA11
Add an important place to see how long it'd take to get there from our property listings.
__mins driving to your place
Get an instant, personalised result:
- Show sellers you’re serious
- Secure viewings faster with agents
- No impact on your credit score
Your mortgage
Notes
Staying secure when looking for property
Ensure you're up to date with our latest advice on how to avoid fraud or scams when looking for property online.
Visit our security centre to find out moreDisclaimer - Property reference P5566. The information displayed about this property comprises a property advertisement. Rightmove.co.uk makes no warranty as to the accuracy or completeness of the advertisement or any linked or associated information, and Rightmove has no control over the content. This property advertisement does not constitute property particulars. The information is provided and maintained by Belvoir, St Helens. Please contact the selling agent or developer directly to obtain any information which may be available under the terms of The Energy Performance of Buildings (Certificates and Inspections) (England and Wales) Regulations 2007 or the Home Report if in relation to a residential property in Scotland.
*This is the average speed from the provider with the fastest broadband package available at this postcode. The average speed displayed is based on the download speeds of at least 50% of customers at peak time (8pm to 10pm). Fibre/cable services at the postcode are subject to availability and may differ between properties within a postcode. Speeds can be affected by a range of technical and environmental factors. The speed at the property may be lower than that listed above. You can check the estimated speed and confirm availability to a property prior to purchasing on the broadband provider's website. Providers may increase charges. The information is provided and maintained by Decision Technologies Limited. **This is indicative only and based on a 2-person household with multiple devices and simultaneous usage. Broadband performance is affected by multiple factors including number of occupants and devices, simultaneous usage, router range etc. For more information speak to your broadband provider.
Map data ©OpenStreetMap contributors.





