Northwood

- PROPERTY TYPE
Semi-Detached
- BEDROOMS
3
- BATHROOMS
1
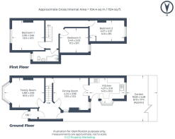
- SIZE
1,124 sq ft
104 sq m
- TENUREDescribes how you own a property. There are different types of tenure - freehold, leasehold, and commonhold.Read more about tenure in our glossary page.
Freehold
Key features
- SEMI-DETACHED
- THREE BEDROOMS
- LIVING ROOM
- DINING ROOM
- KITCHEN
- FAMILY BATHROOM
- PRIVATE REAR GARDEN
- DRIVEWAY PARKING
- SHORT WALK TO STATION
- GREAT CONDITION
Description
This attractive three bedroom property offers spacious and well-planned accommodation across two floors and has many lovely period features.
The ground floor comprises a generous living room and a separate dining room that flows through to a modern fitted kitchen.
Upstairs, the first floor boasts three well-proportioned bedrooms and a contemporary family bathroom.
Externally, the home benefits from a private rear garden, ideal for outdoor relaxation, and off-street parking to the front, adding further convenience to this desirable home.
Located in a sought-after and convenient location, this property is within easy reach of Northwood town and the Metropolitan Line Station.
Northwood provides a range of shopping facilities including Waitrose supermarket, a variety of restaurants and other amenities with the Metropolitan Line station providing access to Baker Street and the City. There is a plethora of state and private schooling together with a wide choice of recreational facilities, which include golf courses and fitness centres. The M1, M40 and M25 motorways are also accessible.
NB this property is situated within the proximity of the ULEZ, if your vehicle does not comply charges may apply.
Tenure: Freehold
Local Authority: London Borough of Hillingdon
Council Tax Band: E
Energy Efficiency Rating: D
Brochures
Brochure 1- COUNCIL TAXA payment made to your local authority in order to pay for local services like schools, libraries, and refuse collection. The amount you pay depends on the value of the property.Read more about council Tax in our glossary page.
- Band: E
- PARKINGDetails of how and where vehicles can be parked, and any associated costs.Read more about parking in our glossary page.
- Driveway,Off street
- GARDENA property has access to an outdoor space, which could be private or shared.
- Private garden
- ACCESSIBILITYHow a property has been adapted to meet the needs of vulnerable or disabled individuals.Read more about accessibility in our glossary page.
- Ask agent
Northwood
Add an important place to see how long it'd take to get there from our property listings.
__mins driving to your place
Get an instant, personalised result:
- Show sellers you’re serious
- Secure viewings faster with agents
- No impact on your credit score
Your mortgage
Notes
Staying secure when looking for property
Ensure you're up to date with our latest advice on how to avoid fraud or scams when looking for property online.
Visit our security centre to find out moreDisclaimer - Property reference S1615968. The information displayed about this property comprises a property advertisement. Rightmove.co.uk makes no warranty as to the accuracy or completeness of the advertisement or any linked or associated information, and Rightmove has no control over the content. This property advertisement does not constitute property particulars. The information is provided and maintained by Robsons, Northwood - Sales. Please contact the selling agent or developer directly to obtain any information which may be available under the terms of The Energy Performance of Buildings (Certificates and Inspections) (England and Wales) Regulations 2007 or the Home Report if in relation to a residential property in Scotland.
*This is the average speed from the provider with the fastest broadband package available at this postcode. The average speed displayed is based on the download speeds of at least 50% of customers at peak time (8pm to 10pm). Fibre/cable services at the postcode are subject to availability and may differ between properties within a postcode. Speeds can be affected by a range of technical and environmental factors. The speed at the property may be lower than that listed above. You can check the estimated speed and confirm availability to a property prior to purchasing on the broadband provider's website. Providers may increase charges. The information is provided and maintained by Decision Technologies Limited. **This is indicative only and based on a 2-person household with multiple devices and simultaneous usage. Broadband performance is affected by multiple factors including number of occupants and devices, simultaneous usage, router range etc. For more information speak to your broadband provider.
Map data ©OpenStreetMap contributors.




