
Derby Street, Barrow-in-furness, LA13 9TG

- PROPERTY TYPE
Terraced
- BEDROOMS
3
- BATHROOMS
1
- SIZE
Ask agent
- TENUREDescribes how you own a property. There are different types of tenure - freehold, leasehold, and commonhold.Read more about tenure in our glossary page.
Freehold
Key features
- 3 Bed Terraced House
- Situated In A Sought After Location
- A Large Garage
- NO UPPER CHAIN!
- Appealing To Younger Buyers/Couples And investors
- Bay-Windowed Lounge
- Double-sided Galley-Style Kitchen
- Double Glazing
- Access To The Rear Garden
- Electric Night Storage Heaters
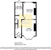
Description
This forecourt-fronted terraced home is situated in a popular and sought-after location, appealing to younger buyers, couples, and investors. The property offers considerable potential for upgrading and redecoration, allowing you to personalise it to your taste. The accommodation comprises a bay-windowed lounge, a dining room, a double-sided galley-style kitchen with access to the rear garden, three bedrooms, and a bathroom. The property benefits from double glazing, electric night storage heaters, a larger-sized garage, and is offered with no upper chain.
Location
What3Words///sank.flood.rear
Description
This mid-terrace home will appeal to buyers seeking a property to upgrade, families, and couples looking for a longer-term home with potential to grow. The living accommodation includes two reception rooms with sliding glass doors, providing an option for separation or open-plan living.
The bay-fronted lounge is bright and airy, offering a pleasant outlook into the forecourt and front street. The dining room also enjoys a pleasant outlook into the rear garden, creating an inviting space for meals and entertaining.
The kitchen features fitted cabinets and drawers on both sides of the room, incorporating a fridge/freezer and a sink within the worktop. There is dedicated space for a freestanding cooker and a washing machine, making it a functional area with scope for modern updates.
The landing on the first floor leads to the bathroom and each of the three bedrooms. These include a comfortable single bedroom and two much larger double bedrooms, providing ample space for various needs.
The bathroom is fitted with a classic three-piece suite, comprising a bath with an electric shower installed over it, a hand basin, and a WC. Additionally, a cupboard at the end of the bath provides shelving and houses the water cylinder, offering practical storage.
Tenure
Freehold.
Services
Mains electricity, water and drainage. No gas meter.
Brochures
Brochure 1- COUNCIL TAXA payment made to your local authority in order to pay for local services like schools, libraries, and refuse collection. The amount you pay depends on the value of the property.Read more about council Tax in our glossary page.
- Band: A
- PARKINGDetails of how and where vehicles can be parked, and any associated costs.Read more about parking in our glossary page.
- Garage
- GARDENA property has access to an outdoor space, which could be private or shared.
- Yes
- ACCESSIBILITYHow a property has been adapted to meet the needs of vulnerable or disabled individuals.Read more about accessibility in our glossary page.
- Ask agent
Energy performance certificate - ask agent
Derby Street, Barrow-in-furness, LA13 9TG
Add an important place to see how long it'd take to get there from our property listings.
__mins driving to your place
Get an instant, personalised result:
- Show sellers you’re serious
- Secure viewings faster with agents
- No impact on your credit score



Your mortgage
Notes
Staying secure when looking for property
Ensure you're up to date with our latest advice on how to avoid fraud or scams when looking for property online.
Visit our security centre to find out moreDisclaimer - Property reference S1617570. The information displayed about this property comprises a property advertisement. Rightmove.co.uk makes no warranty as to the accuracy or completeness of the advertisement or any linked or associated information, and Rightmove has no control over the content. This property advertisement does not constitute property particulars. The information is provided and maintained by Poole Townsend, Barrow-in-Furness. Please contact the selling agent or developer directly to obtain any information which may be available under the terms of The Energy Performance of Buildings (Certificates and Inspections) (England and Wales) Regulations 2007 or the Home Report if in relation to a residential property in Scotland.
*This is the average speed from the provider with the fastest broadband package available at this postcode. The average speed displayed is based on the download speeds of at least 50% of customers at peak time (8pm to 10pm). Fibre/cable services at the postcode are subject to availability and may differ between properties within a postcode. Speeds can be affected by a range of technical and environmental factors. The speed at the property may be lower than that listed above. You can check the estimated speed and confirm availability to a property prior to purchasing on the broadband provider's website. Providers may increase charges. The information is provided and maintained by Decision Technologies Limited. **This is indicative only and based on a 2-person household with multiple devices and simultaneous usage. Broadband performance is affected by multiple factors including number of occupants and devices, simultaneous usage, router range etc. For more information speak to your broadband provider.
Map data ©OpenStreetMap contributors.






