
Hansby Close, Skelmersdale, Lancashire, WN8

- PROPERTY TYPE
Detached
- BEDROOMS
3
- BATHROOMS
2
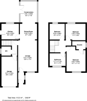
- SIZE
1,240 sq ft
115 sq m
- TENUREDescribes how you own a property. There are different types of tenure - freehold, leasehold, and commonhold.Read more about tenure in our glossary page.
Freehold
Key features
- 3 bedroom detatched
- Stylish lounge with contemporary feature fireplace
- Modern kitchen
- Underfloor Heating In The Kitchen
- Main bedroom with private en-suite
- EV Charging Point
- Integral garage with driveway parking
- Enclosed rear garden with patio
- Stunning Open Spaces To The Front Aspect
- Viewings available upon request
Description
Occupying an attractive plot with a generous driveway, integral garage and a welcoming frontage, the property offers well-balanced accommodation arranged over two floors, perfectly designed for modern family living.
Upon entering, you are greeted by a bright entrance hallway which leads through to the main living spaces. The lounge is a beautifully presented room, featuring a contemporary fireplace with inset fire and a striking feature wall, creating a warm and relaxing atmosphere. The space flows effortlessly into the dining area through an open archway, providing an ideal layout for both everyday family life and entertaining guests.
The dining room comfortably accommodates a family-sized table and enjoys pleasant views through to the conservatory beyond. The conservatory provides a wonderful additional reception space, filled with natural light and offering a pleasant outlook over the rear garden. This versatile area is perfect as a second sitting room, playroom, home office or simply a peaceful spot to relax and unwind.
The kitchen is modern and stylish, fitted with sleek white cabinetry, metro-style tiled splashbacks and beautiful marble-effect worktops which add a contemporary finish. Thoughtfully arranged, it offers excellent storage and workspace, integrated appliances and a bright outlook, with a side door providing convenient access to the exterior.
Just off the kitchen, the property benefits from a handy ground floor WC, ideal for busy family living and visiting guests.
To the first floor, the home continues to impress with three well-proportioned bedrooms, all accessed from a bright and airy landing. The main bedroom is a generous double and benefits from its own en-suite shower room, providing a private retreat for homeowners. The second bedroom is also well-sized and offers comfortable accommodation, while the third bedroom provides flexibility as a child's room, nursery or home office.
The family bathroom is finished in a clean and contemporary style, featuring a full-sized bath with overhead shower, modern tiling and a fresh, neutral décor, creating a practical yet relaxing space for everyday use.
Externally, the home offers excellent outdoor space. The rear garden is enclosed and provides a safe environment for children and pets, with a generous paved patio area ideal for outdoor dining and summer entertaining, along with a lawn bordered by mature hedging for privacy. The driveway to the front provides ample off-road parking and access to the integral garage, perfect for storage or additional practicality.
This is a superb opportunity to acquire a beautifully maintained detached family home in a sought-after and convenient location. Early viewing is highly recommended to fully appreciate the space, layout and lifestyle on offer.
Viewings available on request
COUNCIL TAX BAND C
FREEHOLD
- COUNCIL TAXA payment made to your local authority in order to pay for local services like schools, libraries, and refuse collection. The amount you pay depends on the value of the property.Read more about council Tax in our glossary page.
- Ask agent
- PARKINGDetails of how and where vehicles can be parked, and any associated costs.Read more about parking in our glossary page.
- Garage,Driveway,Off street
- GARDENA property has access to an outdoor space, which could be private or shared.
- Front garden,Private garden,Enclosed garden,Rear garden,Back garden
- ACCESSIBILITYHow a property has been adapted to meet the needs of vulnerable or disabled individuals.Read more about accessibility in our glossary page.
- Ask agent
Energy performance certificate - ask agent
Hansby Close, Skelmersdale, Lancashire, WN8
Add an important place to see how long it'd take to get there from our property listings.
__mins driving to your place
Get an instant, personalised result:
- Show sellers you’re serious
- Secure viewings faster with agents
- No impact on your credit score
Your mortgage
Notes
Staying secure when looking for property
Ensure you're up to date with our latest advice on how to avoid fraud or scams when looking for property online.
Visit our security centre to find out moreDisclaimer - Property reference 1HANSBYCL. The information displayed about this property comprises a property advertisement. Rightmove.co.uk makes no warranty as to the accuracy or completeness of the advertisement or any linked or associated information, and Rightmove has no control over the content. This property advertisement does not constitute property particulars. The information is provided and maintained by Churcher Estates, Ormskirk. Please contact the selling agent or developer directly to obtain any information which may be available under the terms of The Energy Performance of Buildings (Certificates and Inspections) (England and Wales) Regulations 2007 or the Home Report if in relation to a residential property in Scotland.
*This is the average speed from the provider with the fastest broadband package available at this postcode. The average speed displayed is based on the download speeds of at least 50% of customers at peak time (8pm to 10pm). Fibre/cable services at the postcode are subject to availability and may differ between properties within a postcode. Speeds can be affected by a range of technical and environmental factors. The speed at the property may be lower than that listed above. You can check the estimated speed and confirm availability to a property prior to purchasing on the broadband provider's website. Providers may increase charges. The information is provided and maintained by Decision Technologies Limited. **This is indicative only and based on a 2-person household with multiple devices and simultaneous usage. Broadband performance is affected by multiple factors including number of occupants and devices, simultaneous usage, router range etc. For more information speak to your broadband provider.
Map data ©OpenStreetMap contributors.






