
Mill Road, Hengrave, Bury St Edmunds, Suffolk, IP28

- PROPERTY TYPE
Detached
- SIZE
Ask agent
- TENUREDescribes how you own a property. There are different types of tenure - freehold, leasehold, and commonhold.Read more about tenure in our glossary page.
Freehold
Key features
- An exciting opportunity to acquire a garden plot
- Full planning consent
- Accommodation of around 1,500 sq ft
- 3 Bedrooms
- Garage
- Quite no-through road location
- Conservation area
Description
RESIDENTIAL BUILDING PLOT
Planning permission granted for the Self-Build development of a single dwelling with garage and landscaping.
INTRODUCTION
The garden land building plot is well located off this quiet ‘no through road’, that leads down to the River Lark, being just off the main road that gives excellent access into Bury St Edmunds, from this picturesque, highly regarded former Suffolk ‘Country Estate’ village.
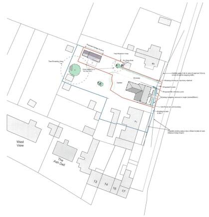
This superb self-build site benefits from some hedge and tree planted boundaries, has consent granted along with the house, to build a detached garage to the rear of the plot, which in all extends to approximately 0.13 of an acre (0.05 Ha’s) (sts). The red outlined area, on the aerial view below, is the freehold land being sold, with the access to the plot to be established by the removal of the Leylandi front hedge, from the lane to the east. As can also be seen on the aerial photo, the cottage, which will be located within the conservation area, will benefit from countryside field views to the front, over the lane.
PLANNING
The site has full self-build planning consent, for the erection of a comfortable 1,500 sq ft three bedroom single dwelling and as the site is within a conservation area the consent proposed is to use traditional materials, namely red bricks, slate roof, timber windows and doors and timber eaves and gable boarding, with timber shiplap boarding to the rear extension, and a detached single garage.
West Suffolk District Council approved the application on 20th November 2024 at delegated level, reference DC/24/1069/FUL on the planning portal, for sight of all the associated documents, and development is permitted, providing it is commenced not later than three years from this permission date.
Please note the further conditions on the planning consent, a copy of which is attached to these sales particulars, for convenience. Of particular note, the plot has been granted as a self/custom build and as such is exempt from the otherwise mandatory Biodiversity Net Gain requirements.
PROPOSED DWELLING
The drawings propose a characterful Suffolk styled dwelling with a cottage look and feel that compliments the location well. Due to the east facing frontage, the main garden will be to the west of the cottage, with the drive leading back to the garage, to the end of the garden, and being open to the south should enjoy the sun for most of the day.
The property design also makes the most of the more open garden facing western aspect, with both the living room and the kitchen benefiting from French doors opening to west and south elevations respectively, and the main bedroom will also benefit from a view over the garden to the rear. The current plans afford two storey accommodation comprising the following approximated scaled measurements:
Living Room 5.93m x 3.39m
Kitchen/Dining Room 5.28m x 4.02m
Study 2.68m x 2.61m
Ground Floor WC & Utility/Rear Lobby 3.12m x 2.68m
Master Bedroom and En-suite 5.28m x 4.02m
Bedroom 2 5.93m x 3.39m
Bedroom 3 2.68m x 2.62m
Family Bathroom 3.22m(max) x 2.68m(max)
Garage 6.4m(max) x 3.0m(max)
Gross internal area: 140.78 sq.m / 1,515 sq.ft (Does not include the Garage)
Garage & Store gross internal area: 27.01sq.m/ 291 sq.ft
(Approximate Dimension Table.)
Purchasers should confirm the size of the dwelling by their own calculations prior to exchange of contracts.
This excellent garden site is generally clear of shrublike vegetation, being predominantly grass with a dilapidated outbuilding.
The site is within a Conservation Area; Consent has been granted with this taken into consideration.
The site is considered to be at very low risk of flooding.
SERVICES
We understand that mains water and electricity are available in the lane and drainage will need to be private as believed to be too far from a mains drain. Purchasers are advised to make enquiries to the relevant suppliers on these points prior to making their offer.
DIRECTIONS
From Bury St Edmunds, head northwest on the A1101. Proceed through Fornham all Saints and onto Hengrave. Mill Road is the first right hand turning upon reaching the village and the plot will be shortly found between 7 and 5 Mill Road, on the left-hand side.
Brochures
Particulars- COUNCIL TAXA payment made to your local authority in order to pay for local services like schools, libraries, and refuse collection. The amount you pay depends on the value of the property.Read more about council Tax in our glossary page.
- Band: TBC
- PARKINGDetails of how and where vehicles can be parked, and any associated costs.Read more about parking in our glossary page.
- Yes
- GARDENA property has access to an outdoor space, which could be private or shared.
- Yes
- ACCESSIBILITYHow a property has been adapted to meet the needs of vulnerable or disabled individuals.Read more about accessibility in our glossary page.
- Ask agent
Energy performance certificate - ask agent
Mill Road, Hengrave, Bury St Edmunds, Suffolk, IP28
Add an important place to see how long it'd take to get there from our property listings.
__mins driving to your place
Get an instant, personalised result:
- Show sellers you’re serious
- Secure viewings faster with agents
- No impact on your credit score



Your mortgage
Notes
Staying secure when looking for property
Ensure you're up to date with our latest advice on how to avoid fraud or scams when looking for property online.
Visit our security centre to find out moreDisclaimer - Property reference BSE250036. The information displayed about this property comprises a property advertisement. Rightmove.co.uk makes no warranty as to the accuracy or completeness of the advertisement or any linked or associated information, and Rightmove has no control over the content. This property advertisement does not constitute property particulars. The information is provided and maintained by Jackson-Stops, Bury St Edmunds. Please contact the selling agent or developer directly to obtain any information which may be available under the terms of The Energy Performance of Buildings (Certificates and Inspections) (England and Wales) Regulations 2007 or the Home Report if in relation to a residential property in Scotland.
*This is the average speed from the provider with the fastest broadband package available at this postcode. The average speed displayed is based on the download speeds of at least 50% of customers at peak time (8pm to 10pm). Fibre/cable services at the postcode are subject to availability and may differ between properties within a postcode. Speeds can be affected by a range of technical and environmental factors. The speed at the property may be lower than that listed above. You can check the estimated speed and confirm availability to a property prior to purchasing on the broadband provider's website. Providers may increase charges. The information is provided and maintained by Decision Technologies Limited. **This is indicative only and based on a 2-person household with multiple devices and simultaneous usage. Broadband performance is affected by multiple factors including number of occupants and devices, simultaneous usage, router range etc. For more information speak to your broadband provider.
Map data ©OpenStreetMap contributors.




