Bank Street, Pulham Market

- PROPERTY TYPE
Cottage
- BEDROOMS
2
- BATHROOMS
1
- SIZE
841 sq ft
78 sq m
- TENUREDescribes how you own a property. There are different types of tenure - freehold, leasehold, and commonhold.Read more about tenure in our glossary page.
Freehold
Key features
- No Onward Chain
- Charming Grade ll Listed Cottage
- Full of character and original features
- Heavily beamed throughout
- Sitting Room with inglenook fireplace
- Two bedrooms
- First floor bathroom plus separate WC
- Central village location
Description
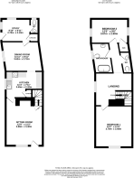
Accommodation comprises briefly:
- Sitting Room with Inglenook Fireplace
- Kitchen
- Dining Room
- Study/Utility Room
- Cloakroom
- Spacious First Floor Landing
- Two Bedrooms
- Bathroom
- Separate WC
Outside
- Shingled Front Garden
The Property
The front entrance door opens into the sitting room with window overlooking the front, an impressive brick inglenook fireplace, door opening to the staircase leading to the first floor and door into the kitchen. The kitchen is fitted with base, wall and drawer units, worktop with stainless steel sink and drainer and space and plumbing for washing machine under, original bread oven, under stair cupboard and window to the side. The kitchen leads into the dining room with window to the side and through to the study with window to the rear, side entrance door, built-in cupboard and drawer unit with worktop, further built-in cupboard. A door leads to the WC with window to the rear.
From the sitting room stairs rise to the spacious first floor landing with window overlooking the side aspect. There are two bedrooms, the larger of the two overlooks the front with a built-in cupboard and the second is double aspect with an airing cupboard housing the hot water tank. The bathroom is fitted with a traditional suite comprising a freestanding bath with shower attachment, pedestal wash basin, WC and window to the side. Across the landing there is a further WC.
Outside
The cottage is enclosed by a low brick wall with a front gate opening onto the path leading to the entrance door. The front garden is laid to shingle with plants and climbers including a passion flower and continues around to the side and rear of the property.
Location
The cottage is situated in the centre of the picturesque village of Pulham Market. The village has a local shop, two public houses, an active community centre, doctors and a primary school, with larger services located in the neighbouring village of Long Stratton and the market towns of Harleston and Diss. Buses pass through the village going to and from Norwich, Diss and Harleston and Diss has a mainline railway station with trains to London Liverpool Street. The cathedral city of Norwich is located approximately 15 miles north and has an abundance of services including two shopping centres, and a general hospital.
Fixtures and Fittings
All fixtures and fittings are specifically excluded from the sale (unless mentioned in the sales particulars), but may be available in addition, subject to separate negotiation.
Services
Electric Storage Heaters and immersion for the hot water.
Mains drainage, electricity and water are connected.
EPC Rating: E
Local Authority:
South Norfolk District Council
Tax Band: B
Postcode: IP21 4TG
Agents Note
This property is offered subject to and with the benefit of all rights of way, whether public or private, all way leaves, easements and other rights of way whether specifically mentioned or not.
Tenure
Vacant possession of the freehold will be given upon completion.
Brochures
Brochure- COUNCIL TAXA payment made to your local authority in order to pay for local services like schools, libraries, and refuse collection. The amount you pay depends on the value of the property.Read more about council Tax in our glossary page.
- Ask agent
- PARKINGDetails of how and where vehicles can be parked, and any associated costs.Read more about parking in our glossary page.
- Ask agent
- GARDENA property has access to an outdoor space, which could be private or shared.
- Yes
- ACCESSIBILITYHow a property has been adapted to meet the needs of vulnerable or disabled individuals.Read more about accessibility in our glossary page.
- Ask agent
Bank Street, Pulham Market
Add an important place to see how long it'd take to get there from our property listings.
__mins driving to your place
Get an instant, personalised result:
- Show sellers you’re serious
- Secure viewings faster with agents
- No impact on your credit score
Your mortgage
Notes
Staying secure when looking for property
Ensure you're up to date with our latest advice on how to avoid fraud or scams when looking for property online.
Visit our security centre to find out moreDisclaimer - Property reference 100062017131. The information displayed about this property comprises a property advertisement. Rightmove.co.uk makes no warranty as to the accuracy or completeness of the advertisement or any linked or associated information, and Rightmove has no control over the content. This property advertisement does not constitute property particulars. The information is provided and maintained by Musker McIntyre, Harleston. Please contact the selling agent or developer directly to obtain any information which may be available under the terms of The Energy Performance of Buildings (Certificates and Inspections) (England and Wales) Regulations 2007 or the Home Report if in relation to a residential property in Scotland.
*This is the average speed from the provider with the fastest broadband package available at this postcode. The average speed displayed is based on the download speeds of at least 50% of customers at peak time (8pm to 10pm). Fibre/cable services at the postcode are subject to availability and may differ between properties within a postcode. Speeds can be affected by a range of technical and environmental factors. The speed at the property may be lower than that listed above. You can check the estimated speed and confirm availability to a property prior to purchasing on the broadband provider's website. Providers may increase charges. The information is provided and maintained by Decision Technologies Limited. **This is indicative only and based on a 2-person household with multiple devices and simultaneous usage. Broadband performance is affected by multiple factors including number of occupants and devices, simultaneous usage, router range etc. For more information speak to your broadband provider.
Map data ©OpenStreetMap contributors.




