
Private Drive, Barnston, Wirral
- PROPERTY TYPE
Plot
- BEDROOMS
4
- BATHROOMS
2
- SIZE
Ask agent
Key features
- Development Plot
- Create Your Dream Home
- Stunning views to rear
- Sought After Barnston Location
- Planning Approved
- Viewing by appointment only
Description
A rare and exciting opportunity to acquire a generous building plot in one of Wirral’s most desirable locations, benefitting from full planning permission for an impressive four-bedroom detached family home. With open countryside views to the rear, this is an exceptional prospect for those looking to create a bespoke home in a peaceful, semi-rural setting. Positioned on Private Drive in the enviable location of Barnston, this outstanding plot enjoys a highly sought-after location, nestled on the edge of open farmland and offering uninterrupted views across the surrounding countryside.
Planning permission has been granted for a thoughtfully designed detached residence, carefully arranged to maximise natural light, space, and the stunning outlook. The proposed design offers an ideal layout for modern family life, with generous accommodation throughout.
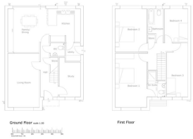
The ground floor centres around a superb open-plan kitchen and dining space, spanning the rear of the home to fully embrace the views across the fields—perfect for entertaining, family living, and seamless indoor-outdoor enjoyment. A separate utility room provides practical convenience, keeping everyday essentials neatly out of sight.A spacious family lounge offers a warm and welcoming retreat, while a second reception room provides flexibility to suit your lifestyle—ideal as a snug, home office, playroom or additional sitting room.
To the first floor, the plans include three generous double bedrooms, including an impressive principal bedroom with a stylish en-suite shower room. A fourth bedroom provides an ideal single room—perfect for a nursery, guest room or study—along with a well-appointed three-piece family bathroom.
**Please note the CGI is meant as an illustrative guide only**
Plannig Application Ref - APP/24/01640
*FULL PLANNING GRANTED
Disclaimer - **Please note the CGI is meant as an illustrative guide only**
Brochures
Private Drive, Barnston, WirralBrochurePrivate Drive, Barnston, Wirral
NEAREST STATIONS
Distances are straight line measurements from the centre of the postcode- Heswall Station1.3 miles
- Upton Station2.6 miles
- Bebington Station2.9 miles
Notes
Disclaimer - Property reference 34478180. The information displayed about this property comprises a property advertisement. Rightmove.co.uk makes no warranty as to the accuracy or completeness of the advertisement or any linked or associated information, and Rightmove has no control over the content. This property advertisement does not constitute property particulars. The information is provided and maintained by Hewitt Adams Ltd, Heswall. Please contact the selling agent or developer directly to obtain any information which may be available under the terms of The Energy Performance of Buildings (Certificates and Inspections) (England and Wales) Regulations 2007 or the Home Report if in relation to a residential property in Scotland.
Map data ©OpenStreetMap contributors.







