
Boxley Road & Land Adjacent, Chatham

- BEDROOMS
5
- BATHROOMS
3
- SIZE
Ask agent
- TENUREDescribes how you own a property. There are different types of tenure - freehold, leasehold, and commonhold.Read more about tenure in our glossary page.
Freehold
Key features
- Prime development opportunity in sought-after Boxley Road, Walderslade
- Full planning permission in place for land and existing properties
- Existing La Torre maisonettes generating approx. £3,300 PCM
- Immediate income with future development potential
- Suitable for developers, investors, or buy-to-let landlords
- Excellent location close to local amenities, schools, and transport links
Description
The site currently comprises the La Torre maisonettes, which are fully tenanted and generating an impressive £3,300 per calendar month, providing an immediate and established income stream for buy-to-let investors or developers seeking a yield while planning future works.
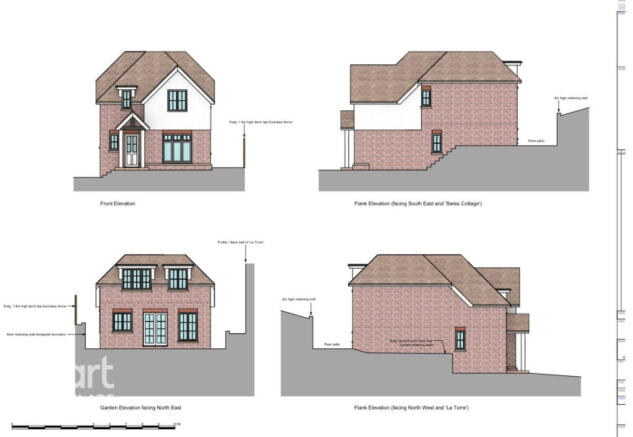
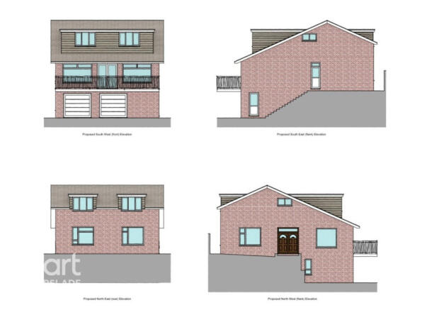
The land and existing properties benefit from approved planning permission, allowing a purchaser to proceed with the development without the uncertainty or delays of the planning process. Approved plans and further details are available within the marketing photographs.
This opportunity is ideal for a range of buyers, including developers, investors, and property companies, with flexible options to:
Implement the approved residential development
Retain the property as a high-yield buy-to-let investment
Reconfigure or convert the maisonettes back into a single dwelling (subject to any further required consents)
Opportunities offering planning permission, immediate rental yield, development potential, and a prime Walderslade location rarely become available.
Located within easy reach of local amenities, transport links, schools, and major road networks, the property is well positioned for both investment and future resale value.
Early viewing is strongly recommended to fully appreciate the scale, flexibility, and potential of this unique development opportunity. Please contact the agent for further information or to arrange a viewing.
Disclaimer
haart Estate Agents also offer a professional, ARLA accredited Lettings and Management Service. If you are considering renting your property in order to purchase, are looking at buy to let or would like a free review of your current portfolio then please call the Lettings Branch Manager on the number shown above.
haart Estate Agents is the seller's agent for this property. Your conveyancer is legally responsible for ensuring any purchase agreement fully protects your position. We make detailed enquiries of the seller to ensure the information provided is as accurate as possible. Please inform us if you become aware of any information being inaccurate.
Brochures
Brochure- COUNCIL TAXA payment made to your local authority in order to pay for local services like schools, libraries, and refuse collection. The amount you pay depends on the value of the property.Read more about council Tax in our glossary page.
- Ask agent
- PARKINGDetails of how and where vehicles can be parked, and any associated costs.Read more about parking in our glossary page.
- Ask agent
- GARDENA property has access to an outdoor space, which could be private or shared.
- Ask agent
- ACCESSIBILITYHow a property has been adapted to meet the needs of vulnerable or disabled individuals.Read more about accessibility in our glossary page.
- Ask agent
Boxley Road & Land Adjacent, Chatham
Add an important place to see how long it'd take to get there from our property listings.
__mins driving to your place
Get an instant, personalised result:
- Show sellers you’re serious
- Secure viewings faster with agents
- No impact on your credit score
Your mortgage
Notes
Staying secure when looking for property
Ensure you're up to date with our latest advice on how to avoid fraud or scams when looking for property online.
Visit our security centre to find out moreDisclaimer - Property reference 0266_HRT026612277. The information displayed about this property comprises a property advertisement. Rightmove.co.uk makes no warranty as to the accuracy or completeness of the advertisement or any linked or associated information, and Rightmove has no control over the content. This property advertisement does not constitute property particulars. The information is provided and maintained by haart, Walderslade. Please contact the selling agent or developer directly to obtain any information which may be available under the terms of The Energy Performance of Buildings (Certificates and Inspections) (England and Wales) Regulations 2007 or the Home Report if in relation to a residential property in Scotland.
*This is the average speed from the provider with the fastest broadband package available at this postcode. The average speed displayed is based on the download speeds of at least 50% of customers at peak time (8pm to 10pm). Fibre/cable services at the postcode are subject to availability and may differ between properties within a postcode. Speeds can be affected by a range of technical and environmental factors. The speed at the property may be lower than that listed above. You can check the estimated speed and confirm availability to a property prior to purchasing on the broadband provider's website. Providers may increase charges. The information is provided and maintained by Decision Technologies Limited. **This is indicative only and based on a 2-person household with multiple devices and simultaneous usage. Broadband performance is affected by multiple factors including number of occupants and devices, simultaneous usage, router range etc. For more information speak to your broadband provider.
Map data ©OpenStreetMap contributors.





