
Morwick Green, York Road, Leeds, West Yorkshire, LS15 4NA

- PROPERTY TYPE
Detached
- BEDROOMS
3
- SIZE
Ask developer
- TENUREDescribes how you own a property. There are different types of tenure - freehold, leasehold, and commonhold.Read more about tenure in our glossary page.
Freehold
Key features
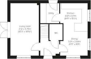
- Open plan kitchen/dining room
- Utility room
- Spacious living room with French doors to garden
- Downstairs WC
- En suite to bedroom one
- Family bathroom
- Storage space
- Energy efficient
Description
A thoughtfully-designed three-bedroom family home with much to offer, the Barndale has a bright and modern open plan kitchen/dining room leading to a handy utility room. The spacious living room has French doors leading into the garden. The inner hallway, downstairs WC and cupboards take care of everyday storage. Plus there’s an en suite to bedroom one and a family bathroom.
Additional Information
- Tenure: Freehold
- Council tax band: Not made available by local authority until post-occupation
Parking - Allocated Parking
Room Dimensions
- Kitchen - 3.01 x 3.11 metre
- Dining - 3.01 x 2.64 metre
- Living room - 3.12 x 5.75 metre
- Bedroom 1 - 2.88 x 3.75 metre
- Bedroom 2 - 4.19 x 2.96 metre
- Bedroom 3 - 3.14 x 2.7 metre
- COUNCIL TAXA payment made to your local authority in order to pay for local services like schools, libraries, and refuse collection. The amount you pay depends on the value of the property.Read more about council Tax in our glossary page.
- Ask developer
- PARKINGDetails of how and where vehicles can be parked, and any associated costs.Read more about parking in our glossary page.
- Yes
- GARDENA property has access to an outdoor space, which could be private or shared.
- Yes
- ACCESSIBILITYHow a property has been adapted to meet the needs of vulnerable or disabled individuals.Read more about accessibility in our glossary page.
- Ask developer
Energy performance certificate - ask developer
Morwick Green, York Road, Leeds, West Yorkshire, LS15 4NA
Add an important place to see how long it'd take to get there from our property listings.
__mins driving to your place
Get an instant, personalised result:
- Show sellers you’re serious
- Secure viewings faster with agents
- No impact on your credit score
About Persimmon Homes
Please be advised that we are currently selling from our Wellington Mount development.
Welcome to Morwick Green – energy-efficient new homes with easy access to Leeds and beyond
Set in a sought-after spot along the new East Leeds Orbital Route, Morwick Green is a vibrant collection of new houses for sale in East Leeds, with something for everyone – from stylish two, three and four-bedroom homes to stylish one and two-bedroom apartments.
Family-focused new build homes in Leeds
Each home in LS15 has been thoughtfully built with modern life in mind. Beautifully landscaped and filled with nature, the development also offers spacious green areas and well-designed play spaces to enjoy close to home.
Easy travel to the M1 and beyond
The new East Leeds Orbital Route offers easier access to the M1 and the wider road network, while Cross Gates station connects you to the city by rail in under 10 minutes. Leeds train station is just 6.1 miles away, and Leeds Bradford Airport is within easy reach at 11.7 miles.
Everything you need on your doorstep
Springs Retail Park, Asda and the shops at Cross Gates Shopping Centre are just over two miles away, giving you plenty of options for everyday essentials. Families will also appreciate the local schools and healthcare, with Grimes Dyke Primary School just 0.8 miles away and The Grange Medical Centre nearby.
Explore the outdoors in Leeds
Whether you're heading into Leeds or out for some fresh air, this is a location with plenty of choice for everyone. Roundhay and Temple Newsam Park are popular local options for relaxing walks, plus there are various picturesque villages close by to enjoy. And for weekend escapes, Wetherby is just under 10 miles from your door.
Ready to make your move?
To start your new build journey, speak to one of our friendly sales advisors today.
This development offers the following schemes:
- Part Exchange your home
- Own New Rate Reducer Scheme
- Home Change
Schemes are available on selected plots only, subject to status, terms and conditions apply. Contact the development for latest information.
Affordability
Notes
Staying secure when looking for property
Ensure you're up to date with our latest advice on how to avoid fraud or scams when looking for property online.
Visit our security centre to find out moreDisclaimer - Property reference 3_20. The information displayed about this property comprises a property advertisement. Rightmove.co.uk makes no warranty as to the accuracy or completeness of the advertisement or any linked or associated information, and Rightmove has no control over the content. This property advertisement does not constitute property particulars. The information is provided and maintained by Persimmon Homes. Please contact the selling agent or developer directly to obtain any information which may be available under the terms of The Energy Performance of Buildings (Certificates and Inspections) (England and Wales) Regulations 2007 or the Home Report if in relation to a residential property in Scotland.
*This is the average speed from the provider with the fastest broadband package available at this postcode. The average speed displayed is based on the download speeds of at least 50% of customers at peak time (8pm to 10pm). Fibre/cable services at the postcode are subject to availability and may differ between properties within a postcode. Speeds can be affected by a range of technical and environmental factors. The speed at the property may be lower than that listed above. You can check the estimated speed and confirm availability to a property prior to purchasing on the broadband provider's website. Providers may increase charges. The information is provided and maintained by Decision Technologies Limited. **This is indicative only and based on a 2-person household with multiple devices and simultaneous usage. Broadband performance is affected by multiple factors including number of occupants and devices, simultaneous usage, router range etc. For more information speak to your broadband provider.
Map data ©OpenStreetMap contributors.






