
Claverdon, Warwick, Architect Design

- PROPERTY TYPE
Detached
- BEDROOMS
5
- BATHROOMS
2
- SIZE
Ask agent
- TENUREDescribes how you own a property. There are different types of tenure - freehold, leasehold, and commonhold.Read more about tenure in our glossary page.
Freehold
Description
Fobello is a beautiful, unique home designed by the architect Graeme Williamson to create modern, open-plan living.
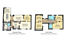
One enters the property via the entrance hall and is immediately greeted with a feature staircase and home office with a pocket door leading to the sitting room with large windows to the front and a delightful dual-aspect log burner. To the rear of this room and benefiting from the dual-sided log burner is the snug, having patio doors opening to the rear gardens and the dining room adjacent.
The hub of this home is sure to be the well-appointed kitchen/breakfast room, having a great range of wall and base units sitting beneath a marble worktop and breakfast bar with a range of integrated Neff appliances. The ground floor is complimented further via the utility and cloakroom.
The first floor benefits from a principal bedroom suite, three further bedrooms and a family bathroom.
Gardens and grounds
Outside, Fobello has a large driveway, allowing for plenty of parking. To the rear is a south-westerly-facing garden with mature trees and herbaceous borders. There is a paved patio area perfect for entertaining.
Sought-after Claverdon is a thriving village that is ideally located for the nearby towns of Henley-in-Arden, Stratford-upon-Avon, Warwick and Leamington Spa, all of which offer a wide range of amenities and excellent schooling.
The village has an active community with an excellent primary school, community store, doctor's surgery, tennis club, village hall, playing fields, fine parish church and public houses. The national rail and motorway networks are also close by, as is Birmingham International Airport.
The Ardencote Country Club is situated on the fringes of the village and offers golf alongside a full range of leisure facilities, and there are further courses nearby at Snitterfield, Henley-in-Arden, Stratford-upon-Avon and Leek Wootton.
Disclaimer
DISCLAIMER: Whilst these particulars are believed to be correct and are given in good faith, they are not warranted, and any interested parties must satisfy themselves by inspection, or otherwise, as to the correctness of each of them. These particulars do not constitute an offer or contract or part thereof and areas, measurements and distances are given as a guide only. Photographs depict only certain parts of the property. Nothing within the particulars shall be deemed to be a statement as to the structural condition, nor the working order of services and appliances.
- COUNCIL TAXA payment made to your local authority in order to pay for local services like schools, libraries, and refuse collection. The amount you pay depends on the value of the property.Read more about council Tax in our glossary page.
- Ask agent
- PARKINGDetails of how and where vehicles can be parked, and any associated costs.Read more about parking in our glossary page.
- Yes
- GARDENA property has access to an outdoor space, which could be private or shared.
- Yes
- ACCESSIBILITYHow a property has been adapted to meet the needs of vulnerable or disabled individuals.Read more about accessibility in our glossary page.
- Ask agent
Claverdon, Warwick, Architect Design
Add an important place to see how long it'd take to get there from our property listings.
__mins driving to your place
Get an instant, personalised result:
- Show sellers you’re serious
- Secure viewings faster with agents
- No impact on your credit score
Affordability
Notes
Staying secure when looking for property
Ensure you're up to date with our latest advice on how to avoid fraud or scams when looking for property online.
Visit our security centre to find out moreDisclaimer - Property reference RX740959. The information displayed about this property comprises a property advertisement. Rightmove.co.uk makes no warranty as to the accuracy or completeness of the advertisement or any linked or associated information, and Rightmove has no control over the content. This property advertisement does not constitute property particulars. The information is provided and maintained by Petticrew & Partners, Leamington Spa. Please contact the selling agent or developer directly to obtain any information which may be available under the terms of The Energy Performance of Buildings (Certificates and Inspections) (England and Wales) Regulations 2007 or the Home Report if in relation to a residential property in Scotland.
*This is the average speed from the provider with the fastest broadband package available at this postcode. The average speed displayed is based on the download speeds of at least 50% of customers at peak time (8pm to 10pm). Fibre/cable services at the postcode are subject to availability and may differ between properties within a postcode. Speeds can be affected by a range of technical and environmental factors. The speed at the property may be lower than that listed above. You can check the estimated speed and confirm availability to a property prior to purchasing on the broadband provider's website. Providers may increase charges. The information is provided and maintained by Decision Technologies Limited. **This is indicative only and based on a 2-person household with multiple devices and simultaneous usage. Broadband performance is affected by multiple factors including number of occupants and devices, simultaneous usage, router range etc. For more information speak to your broadband provider.
Map data ©OpenStreetMap contributors.





