Banbury Lane, BYFIELD, Northamptonshire

- PROPERTY TYPE
Cottage
- BEDROOMS
3
- BATHROOMS
2
- SIZE
Ask agent
- TENUREDescribes how you own a property. There are different types of tenure - freehold, leasehold, and commonhold.Read more about tenure in our glossary page.
Freehold
Key features
- Charming and Characterful Period Property
- Three Well Proportioned Reception Rooms
- Three Bedrooms with Master En-Suite
- Re-Fitted Double Glazed Sash Windows
- Recently Replaced Combination Boiler
- Gas Central Heating
- Off-Road Parking, Carport & EV Point
- Good Sized Garden with Substantial Outbuilding
- Close to Village Amenities
- Viewing is Highly Recommended (Ref DC1031)
Description
A charming and characterful period property offering generous accommodation throughout, featuring three elegant reception rooms that provide versatile spaces for relaxing, entertaining, or working from home. The property has undergone many improvements by the current owners to include refitted sliding UPVC sash windows and a new Combination boiler, and further benefits a cellar adding valuable storage space. The first floor provides three well-proportioned bedrooms with an ensuite shower room and large family bathroom. Externally, there is a carport with an EV car charger and additional off-road parking. The substantial rear garden offers a wonderful outdoor space for recreation and entertaining, complemented by a sizeable outbuilding with excellent potential for a variety of uses. (Property Ref DC1031)
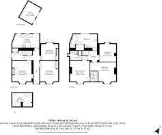
GROUND FLOOR
Step into the property through an elegant entrance hall featuring classic wall panelling and a fitted modern 'vintage style' steel column radiator, creating a warm and characterful first impression. The hallway extends to the rear of the home, where there is access to an understairs cupboard and steps descending to a cellar—ideal for additional storage with light and power. A further door provides direct access to the car port for added convenience. There is also a practical cupboard housing the boiler, complete with fitted shelving for extra storage, along with high level additional storage.
The sitting room is a cosy and characterful space, featuring a double-glazed sash window to the front that allows for plenty of natural light. A charming feature fireplace with a wood-burning stove creates a warm focal point, complemented by built-in shelving and dedicated log storage. Recessed shelving further enhances the room’s appeal, adding both practicality and character.
The charming dining room features a double-glazed sash window to the front, complete with working wooden shutters that add both character and practicality. A feature fireplace provides an attractive focal point, while a built-in cupboard offers useful storage, making this an inviting and functional space for entertaining.
The family room is a versatile and multi-functional space, featuring double-glazed sash windows with shutters overlooking the rear garden, allowing for plenty of natural light. Shelving to the chimney recesses adds character and display space, while fitted cupboards provide practical and useful storage.
The kitchen enjoys a pleasant outlook over the rear garden, with two windows and a stable door providing direct access outside and allowing for an abundance of natural light. Red quarry tiled flooring adds warmth and character to the space. The kitchen is fitted with a range of base and eye-level units, offering ample storage, along with designated spaces for appliances.
FIRST FLOOR
An open balustrade staircase rises to the first floor, where the landing provides access to all first-floor accommodation, creating a well-connected central space.
A door from the landing creates a private suite, separating the master bedroom and its ensuite from the remainder of the first-floor accommodation. The master bedroom itself is a beautifully proportioned room, featuring a large double-glazed sash window that allows for an abundance of natural light. It further benefits from a generous walk-in closet, providing ample hanging and storage space. A feature cast iron fire surround adds character and an attractive focal point to the room.
The master ensuite is fitted with a white suite comprising a WC, wash hand basin and shower cubicle, along with a heated towel rail for added comfort. A built-in cupboard provides useful additional storage space.
Bedrooms two and three are well-proportioned rooms, each benefiting from double-glazed sash windows that provide plenty of natural light.
The family bathroom is of particularly generous proportions, offering both space and character. It is fitted with a WC and wash hand basin, with a step leading up to the bath, creating a subtle sense of separation within the room. A large cupboard provides ample storage, while an exposed ceiling beam enhances the character and charm of the space.
OUTSIDE SPACES
The front garden is attractively enclosed by a low-level stone wall, with paved steps leading to the front door, beautifully bordered by lavender edging. The remainder of the garden is laid to lawn, creating a neat and welcoming approach.
The property benefits from ample off-road parking, along with a car port to the side with an EV car charger. Gated access from the car port leads conveniently through to the rear garden.
The rear garden is of an impressive length and thoughtfully divided into two distinct sections. Immediately adjoining the rear of the house is a paved area, with a pathway leading through to the remainder of the garden.
The main section is predominantly laid to lawn, bordered and separated by a mature hawthorn hedge, and features a charming small garden pond. Beyond this, the upper garden continues with a further lawned area and includes three raised beds, perfect for planting or kitchen gardening.
There is a substantial stone-built outbuilding with a paved patio area positioned nearby, offering excellent potential for a variety of uses. In addition, a large shed sits on a raised platform, providing further practical storage. Mature trees at the rear boundary enhance the sense of privacy and seclusion.
AGENTS NOTE
There is a right of way to the rear of this property for the owners of Number 4 Banbury Lane. No.6 has had planning permission granted for a two storey extension to the rear to replace the existing Victorian extension (ref 2025/1439/FULL). Please note that the current owners and the neighbouring property (No. 4) have not yet reached an agreement regarding the diversion of the existing Right of Way required to facilitate the proposed extension. Accordingly, prospective buyers should be aware that this matter will need to be formally resolved before any building works can commence. Please ask the agent for further information.
LOCATION
This property is conveniently situated in the heart of Byfield with many amenities close by. Byfield is a thriving village offering many amenities and has a strong sense of community. There is a GP surgery with pharmacy, village shop with post office, petrol station with essential shopping and the Cross Tree Inn public house. There are numerous clubs and societies within the village to include bowls, football, cricket and tennis as well as an active village hall with regular events and social functions and a nearby children’s play area. In addition, there is a village primary school and nursery. There is also a bus stop within walking distance providing an hourly service to neighbouring villages and towns to include Daventry and Banbury.
The towns of Daventry, Banbury, Towcester, Northampton and Milton Keynes are within travelling distance and provide more extensive shopping, recreational and cultural facilities. Communication links include the M40 motorway (J11) at Banbury (approx 9 miles) and M1 (J16) (approx. 12 miles). The closest railway station is Banbury (approx 15 miles) or Leamington Spa (approx. 17 miles) and there is a regular bus service to Banbury and Daventry.
Byfield is within easy reach of local attractions including Canons Ashby National Trust (5 miles) and Farnborough Hall (8 miles), plus the Grade I listed Tudor home of the Washington family, Sulgrave Manor (8 miles). The National Herb Centre is at Warmington (10.7 miles). There is an RC racing facility at Nemo Racing (10 miles) and the Silverstone racing circuit is 15 miles away.
VIEWINGS
Your local EXP Agent, Debbie Cox can offer flexible viewing times, including out of hours. Please call Debbie direct to request a viewing on or email debbie. .
Local Authority – West Northamptonshire Council.
Energy Certificate –
IMPORTANT INFORMATION
Every care has been taken with the preparation of these sales particulars, but complete accuracy cannot be guaranteed. In all cases, buyers should verify matters for themselves. Only fixtures and fittings mentioned in these particulars are included in the sale, all other items are specifically excluded. Photographs and other media are provided for general information and items shown are not included in the sale unless specified in the sale particulars. Where property alterations to the property have been undertaken, buyers should check that relevant permissions have been obtained. None of the fixtures, fittings, services and appliances have been tested by the agent, are not certified or warranted in any way and therefore no guarantee can be given that they are in working order. Floorplans are provided for reference only and measurements are approximate. Purchasers are responsible to make their own enquiries with the appropriate authorities in relation to the location, adequacy and availability of mains water, electricity, gas, drainage and any other services. If you have any particular questions, let us know and we will verify it for you. These particulars do not constitute all or part of a contract. The full EPC report can be provided in a PDF format if required.
Brochures
Brochure 1Full Details- COUNCIL TAXA payment made to your local authority in order to pay for local services like schools, libraries, and refuse collection. The amount you pay depends on the value of the property.Read more about council Tax in our glossary page.
- Band: F
- PARKINGDetails of how and where vehicles can be parked, and any associated costs.Read more about parking in our glossary page.
- Driveway
- GARDENA property has access to an outdoor space, which could be private or shared.
- Private garden
- ACCESSIBILITYHow a property has been adapted to meet the needs of vulnerable or disabled individuals.Read more about accessibility in our glossary page.
- Ask agent
Banbury Lane, BYFIELD, Northamptonshire
Add an important place to see how long it'd take to get there from our property listings.
__mins driving to your place
Get an instant, personalised result:
- Show sellers you’re serious
- Secure viewings faster with agents
- No impact on your credit score
Affordability
Notes
Staying secure when looking for property
Ensure you're up to date with our latest advice on how to avoid fraud or scams when looking for property online.
Visit our security centre to find out moreDisclaimer - Property reference S1626851. The information displayed about this property comprises a property advertisement. Rightmove.co.uk makes no warranty as to the accuracy or completeness of the advertisement or any linked or associated information, and Rightmove has no control over the content. This property advertisement does not constitute property particulars. The information is provided and maintained by eXp UK, West Midlands. Please contact the selling agent or developer directly to obtain any information which may be available under the terms of The Energy Performance of Buildings (Certificates and Inspections) (England and Wales) Regulations 2007 or the Home Report if in relation to a residential property in Scotland.
*This is the average speed from the provider with the fastest broadband package available at this postcode. The average speed displayed is based on the download speeds of at least 50% of customers at peak time (8pm to 10pm). Fibre/cable services at the postcode are subject to availability and may differ between properties within a postcode. Speeds can be affected by a range of technical and environmental factors. The speed at the property may be lower than that listed above. You can check the estimated speed and confirm availability to a property prior to purchasing on the broadband provider's website. Providers may increase charges. The information is provided and maintained by Decision Technologies Limited. **This is indicative only and based on a 2-person household with multiple devices and simultaneous usage. Broadband performance is affected by multiple factors including number of occupants and devices, simultaneous usage, router range etc. For more information speak to your broadband provider.
Map data ©OpenStreetMap contributors.




