
Hermitage Way, Lytham St. Annes, FY8

- PROPERTY TYPE
Mews
- BEDROOMS
4
- BATHROOMS
2
- SIZE
Ask agent
Key features
- WELL PRESENTED THROUGHOUT
- 2 BATHROOMS
- LOCATED ON CYPRESS POINT
- GARAGE TO THE REAR
- 4 BEDROOMS.
- Ground Floor Toilet,
Description
An Immaculately Presented Four-Bedroom Family Home on the Prestigious Cypress Point Development – No Onward Chain
Key Features
- No Onward Chain
- Immaculately Presented Four Bedroom Family Home
- Located Within The Prestigious Cypress Point Development
- Spacious Lounge With Bay Window
- Modern Fitted Kitchen With Patio Doors To Garden
- Separate Dining Room & Additional Sun Room/Conservatory
- Large Master Bedroom With En-Suite Shower Room
- Enclose Rear Garden With Decked Seating Area
- Garage To Rear With Power & Electric Door
- Convenient Access to Lytham, St. Annes & Ansdell
- Well Established & Sought After Location
Full Description
Situated within the highly regarded Cypress Point development, this beautifully maintained four-bedroom home offers generous and versatile living space, a private rear garden, garage and the significant advantage of no onward chain.
Presented in excellent decorative order throughout, the property provides well-balanced accommodation ideally suited to families and buyers seeking space, flexibility and a prime residential setting within easy reach of Lytham and St Annes.
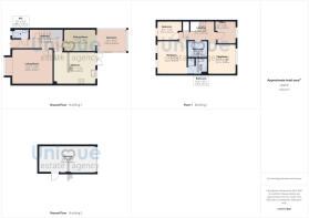
Ground Floor -
Entrance Hallway - 1.19 x 5.31 (3-11” x 17-5”) - A welcoming and well-presented entrance hallway providing access to the principal ground floor accommodation. A convenient ground floor WC and useful understairs storage add practicality, while the clean decorative finish sets the tone for the rest of the home. Stairs leading to the upstairs landing and an under-stairs storage cupboard with a light.
DOWNSTAIRS W/C - 0.98 x 1.76 (3-2” x 5-9”) - Door from hallway leads into the downstairs W/C. Frosted glass UPVC opening window to front elevation. Two-piece Roca suite consisting of a wash hand basin and low-level W/C with matching oak effect laminate flooring.
LOUNGE 4.20 x 3.66 (13′9″ x 12′0″) - Positioned to the front elevation, the large spacious lounge benefits from a bay window which floods the room with natural light. The focal point of the lounge is a gas fire with feature surround and hearth. Well-proportioned and tastefully presented, this is a comfortable and inviting reception space ideal for both relaxing and entertaining.
KITCHEN 4.34 x 3.34 (14′3″ x 10′11″) - The kitchen is bright, modern and an excellent size, it has a wide range of wall and low-level cupboard and drawers along with complementary worktops. One and a half bowl single drainer sink unit with centre mixer tap. Tiled splashback and tiled flooring. Built-in appliances consist of recently fitted oven, gas hob, grill and extractor fan, integral washer, concealed mounted combi boiler. UPVC double glazed window and patio doors which lead out on to rear garden. Direct access to the rear garden via patio doors, the kitchen is well suited to everyday family living and hosting.
DINING ROOM 3.23 x 2.43 (10′7″ x 7′12″) - Currently used as a formal dining room, this flexible space can equally serve as a second reception room, playroom or home office. Tastefully decorated with oak-effect laminate flooring. Positioned to the rear, it enjoys a pleasant outlook over the garden and enhances the versatility of the ground floor layout.
SUN ROOM/CONSERVATORY - A bright and adaptable additional living space overlooking the rear garden. The sun room/conservatory provides a relaxed environment for reading, working or enjoying garden views throughout the seasons.
FIRST FLOOR LANDING 2.11 x 4.13 (6-11” x 13-6”) - Approached from the previously described staircase. Matching spindled balustrade. Built in airing cupboard. Access to loft space. Matching white panelled doors leading off to the bedrooms and family bathroom.
BEDROOM ONE 3.62 x 3.32 (11′11″ x 10′11″) - An excellent large sized principal bedroom with space for a king-size bed and ample space and storage. Two UPVC double glazed opening windows to front elevation with roller blinds. Well-presented and light-filled, this room benefits from its own en-suite shower room.
EN SUITE 2.13 x 1.78 (6′12″ x 5′10″) - Door from bedroom opens into an en-suite shower room. Comprising a contemporary shower enclosure, wash basin and WC, providing convenience and privacy to the principal bedroom.
BEDROOM TWO 3.31 x 3.06 (10′10″ x 10′0″) – A well-proportioned second double bedroom with fitted wardrobes. Overlooking the rear garden, offering comfortable accommodation for family members or guests.
BEDROOM THREE 2.50 x 2.04 (8′2″ x 6′8″) – A well-proportioned third bedroom currently used as a home office. This versatile room would equally serve as a bedroom, nursery or study. UPVC double glazed window overlooks the rear of the property.
BEDROOM FOUR 2.25 x 2.12 (7′5″ x 6′11″) - A further bedroom overlooking the front elevation, ideal as a child-s room, guest space or additional workspace.
BATHROOM 2.16 x 1.81 (7′1″ x 5′11″) - Family bathroom comprising a three-piece white suite. Panelled bath with a centre mixer taps and handheld shower attachment Tiled display shelf. Roca wash hand basin with a mirror above. Roca low level WC. Single panel radiator. Part tiled walls. Towel rail. Ceiling extractor fan and overhead light.
GARAGE 5.96 x 2.82 (19′7″ x 9′3″) - Single garage to the rear of the property, it has both light, power and an electric up and over door and can be accesses from the rear service road. With parking space in front of the garage and convenient direct access to the rear garden.
OUTSIDE - To the front of the property is an open plan garden with shrubs and plants. With a block paved pathway leading to the front covered entrance. External gas and electric meters.
To the rear is a well-presented enclosed garden that provides a low maintenance space to relax in. Decking to the immediate rear, leading to lawn, inset paving blocks laid to create a footpath to the gate. There is also a self-contained sun- room/ conservatory accessible from the rear garden. External light. Timber gate leads to the side service road and bin store area.
Tenure/Council Tax - The site of the property is held Leasehold for the residue term of 999 years subject to an annual ground rent of £130. Council Tax Band D.
Maintenance - A management company has been formed to administer and control outgoing expenses to common parts. A figure of £43 per month is currently levied.
Location – This immaculately presented 4 bedroomed mid mews house is located on Cypress Point, a very popular development that has been conveniently placed within easy reach of both Lytham and St Annes town centres with their comprehensive shopping facilities and town centre amenities. Transport services are easily accessible, and local shops are available nearby in Ansdell on Woodlands Road, together with several local schools and golf courses also in close proximity.
*** Early viewing is invited to fully appreciate the accommodation and location of this superb family home ***
LOUNGE - 4.20 x 3.66 m (13′9″ x 12′0″ ft)
DINING ROOM - 3.23 x 2.43 m (10′7″ x 7′12″ ft)
KITCHEN - 4.34 x 3.34 m (14′3″ x 10′11″ ft)
SUN ROOM - 3.04 x 2.25 m (9′12″ x 7′5″ ft)
BEDROOM - 3.62 x 3.32 m (11′11″ x 10′11″ ft)
EN SUITE - 2.13 x 1.78 m (6′12″ x 5′10″ ft)
BEDROOM - 3.31 x 3.06 m (10′10″ x 10′0″ ft)
BEDROOM - 2.50 x 2.04 m (8′2″ x 6′8″ ft)
BEDROOM - 2.25 x 2.12 m (7′5″ x 6′11″ ft)
BATHROOM - 2.16 x 1.81 m (7′1″ x 5′11″ ft)
GARAGE - 5.96 x 2.82 m (19′7″ x 9′3″ ft)
- COUNCIL TAXA payment made to your local authority in order to pay for local services like schools, libraries, and refuse collection. The amount you pay depends on the value of the property.Read more about council Tax in our glossary page.
- Ask agent
- PARKINGDetails of how and where vehicles can be parked, and any associated costs.Read more about parking in our glossary page.
- Yes
- GARDENA property has access to an outdoor space, which could be private or shared.
- Yes
- ACCESSIBILITYHow a property has been adapted to meet the needs of vulnerable or disabled individuals.Read more about accessibility in our glossary page.
- Ask agent
Energy performance certificate - ask agent
Hermitage Way, Lytham St. Annes, FY8
Add an important place to see how long it'd take to get there from our property listings.
__mins driving to your place
Get an instant, personalised result:
- Show sellers you’re serious
- Secure viewings faster with agents
- No impact on your credit score

Your mortgage
Notes
Staying secure when looking for property
Ensure you're up to date with our latest advice on how to avoid fraud or scams when looking for property online.
Visit our security centre to find out moreDisclaimer - Property reference 9966. The information displayed about this property comprises a property advertisement. Rightmove.co.uk makes no warranty as to the accuracy or completeness of the advertisement or any linked or associated information, and Rightmove has no control over the content. This property advertisement does not constitute property particulars. The information is provided and maintained by Unique Estate Agency Ltd, Lytham St Annes. Please contact the selling agent or developer directly to obtain any information which may be available under the terms of The Energy Performance of Buildings (Certificates and Inspections) (England and Wales) Regulations 2007 or the Home Report if in relation to a residential property in Scotland.
*This is the average speed from the provider with the fastest broadband package available at this postcode. The average speed displayed is based on the download speeds of at least 50% of customers at peak time (8pm to 10pm). Fibre/cable services at the postcode are subject to availability and may differ between properties within a postcode. Speeds can be affected by a range of technical and environmental factors. The speed at the property may be lower than that listed above. You can check the estimated speed and confirm availability to a property prior to purchasing on the broadband provider's website. Providers may increase charges. The information is provided and maintained by Decision Technologies Limited. **This is indicative only and based on a 2-person household with multiple devices and simultaneous usage. Broadband performance is affected by multiple factors including number of occupants and devices, simultaneous usage, router range etc. For more information speak to your broadband provider.
Map data ©OpenStreetMap contributors.





