
, Babington Lane, Derby
- PROPERTY TYPE
Commercial Property
- SIZE
Ask agent
Key features
- TO BE SOLD BY AUCTION
- Large-Scale Freehold Asset – 16,264 sq. ft
- Prime City Centre Position
- Use Class E Registered
- Multi-Tenant Potential
- FREEHOLD
Description
TO BE SOLD BY ONLINE AUCTION ON 4TH – 5TH MARCH 2026 UNLESS SOLD PRIOR UNDER AUCTION TERMS
9 Babington Lane, Derby, DE1 1TA
A substantial freehold commercial building located in the Cathedral Quarter of Derby City Centre. Extending to approximately 16,264 sq. ft. (1,511 sqm), this is a large-scale city centre property offering clear scope for refurbishment and reconfiguration. The property sits in a central position with strong pedestrian footfall and is within walking distance of Intu Derby, with convenient access to the A38 and M1.
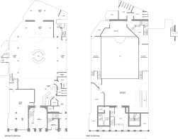
Originally a Grand Theatre and Dance Hall and most recently operated as a crazy golf bar and restaurant, the building is arranged over sub-basement, basement, ground, first and second floors. The accommodation includes bar and lounge areas, dining space, commercial kitchen, cellar, WC facilities, staff rooms and additional upper floor areas.
Currently vacant.
Approximate Floor Areas:
Sub-basement: 150 sqm / 1,614 sq. ft.
Basement: 145 sqm / 1,565 sq. ft.
Ground: 761 sqm / 8,186 sq. ft.
First: 436 sqm / 4,696 sq. ft.
Second: 19 sqm / 203 sq. ft.
Total: 1,511 sqm / 16,264 sq. ft.
The property is registered under Use Class E (Commercial, Business and Service), allowing flexibility for a range of uses including serviced offices, co-working space, café operators, gym/fitness or leisure, subject to the necessary consents. The size and layout allow for subdivision into multiple units, creating the potential for diversified rental income and a long-term commercial presence within the city centre.
Based on indicative city centre rental tones, a fully let multi-tenant scheme could generate in the region of £150,000 – £190,000 per annum, depending on configuration and specification.
Tenure: Freehold.
Business Rates: The property is currently assessed with a Rateable Value of £91,000 (Valuation Office Agency). Subject to subdivision or reconfiguration, the property may be reassessed for rating purposes. Interested parties should make their own enquiries regarding rates payable.
, Babington Lane, Derby
NEAREST STATIONS
Distances are straight line measurements from the centre of the postcode- Derby Station0.6 miles
- Peartree Station1.5 miles
- Spondon Station2.8 miles
Notes
Disclaimer - Property reference EM-166787. The information displayed about this property comprises a property advertisement. Rightmove.co.uk makes no warranty as to the accuracy or completeness of the advertisement or any linked or associated information, and Rightmove has no control over the content. This property advertisement does not constitute property particulars. The information is provided and maintained by Edward Mellor Ltd, Auction. Please contact the selling agent or developer directly to obtain any information which may be available under the terms of The Energy Performance of Buildings (Certificates and Inspections) (England and Wales) Regulations 2007 or the Home Report if in relation to a residential property in Scotland.
Auction Fees: The purchase of this property may include associated fees not listed here, as it is to be sold via auction. To find out more about the fees associated with this property please call Edward Mellor Ltd, Auction on 0161 524 2443.
*Guide Price: An indication of a seller's minimum expectation at auction and given as a Guide Price or a range of Guide Prices. This is not necessarily the figure a property will sell for and is subject to change prior to the auction.
Reserve Price: Each auction property will be subject to a Reserve Price below which the property cannot be sold at auction. Normally the Reserve Price will be set within the range of Guide Prices or no more than 10% above a single Guide Price.
Map data ©OpenStreetMap contributors.








