
Liberty Way, Exeter, EX2

- PROPERTY TYPE
Detached
- BEDROOMS
4
- BATHROOMS
2
- SIZE
Ask agent
- TENUREDescribes how you own a property. There are different types of tenure - freehold, leasehold, and commonhold.Read more about tenure in our glossary page.
Freehold
Key features
- Extremely Spacious
- 4/5 Double bedrooms
- 2 Bathrooms
- Garage and driveway with parking for 2 cars
- Close to Excellent Schools
- Amenities close by
- Transport links on your doorstep including a train station
- Garage with light and power
- Scan QR code for material information
Description
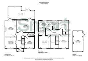
Situated within the highly desirable Newcourt development, this impressive and generously proportioned 4/5 bedroom family home enjoys a prime location just minutes from Exeter city centre and a similar distance to the charming village of Topsham. A wide range of local amenities are close at hand, including a retail park with supermarket, shops and restaurants. For sports enthusiasts, Sandy Park – home of the Exeter Chiefs – is only a short walk away, and the property benefits from excellent transport links, with a nearby train station and regular bus routes providing easy access to the city and surrounding coastal towns and villages.
Upon entering the property, you are welcomed by a practical porch area, ideal for storing coats and shoes, keeping the main living spaces clutter-free.
The spacious hallway leads to the principal ground floor rooms and stairs rising to the first floor. To the left is a large dining room, perfect for family gatherings and entertaining guests. A generous window fills the room with natural light, creating a bright and inviting atmosphere.
The kitchen is particularly spacious and well-appointed, featuring fitted cabinets with ample storage and integrated appliances. Flowing seamlessly from the kitchen is a superb conservatory extension, creating the perfect dining and entertaining space. Beautifully presented and surrounded by windows overlooking the garden, this area truly forms the hub of the home. French doors open directly onto the garden, offering a wonderful sense of indoor-outdoor living.
The living room is extremely spacious yet retains a cosy and comfortable feel — an ideal setting to relax at the end of a busy day. There are also doors from this room leading into the conservatory, enhancing the sociable flow of the ground floor.
Additionally, the ground floor offers a substantial office or fifth bedroom, larger than most and complete with fitted shelving and a large window. A convenient WC completes this level.
The hallways throughout the home are particularly noteworthy. Their open and spacious design, combined with the sense of high ceilings, creates a grand and airy feel, offering the perfect opportunity to introduce statement lighting and striking interior features.
Continuing to the first floor, the property offers four generously sized double bedrooms, providing excellent space for growing families or visiting guests. The principal bedroom benefits from integrated wardrobes and a modern en-suite shower room, and enjoys a pleasant outlook over the green space to the front of the home, creating a peaceful and open aspect.
The remaining three bedrooms are all well-proportioned double rooms. One is currently arranged as a dressing room, demonstrating the flexibility of the accommodation, but it could easily be reinstated as a bedroom if required. 2 of the bedrooms have integrated wardrobes. The family bathroom is particularly spacious and well-appointed, comprising a bath with shower over, WC and wash hand basin.
Externally, the property continues to impress. The rear garden has been beautifully paved, creating a low-maintenance and highly usable outdoor space. Ideal for al fresco dining and entertaining, there is also ample room for children or pets to play. The garden can be accessed from both sides of the house and includes a separate area perfectly suited for a garden shed or additional storage.
Further benefits include a garage with light and power, along with a driveway providing parking for two vehicles, completing this superb family home in a highly convenient and desirable location.
Verified Material Information
Council Tax band: E
Tenure: Freehold
Property type: House
Property construction: Standard construction
Energy Performance rating: C
Electricity supply: Mains electricity
Solar Panels: No
Other electricity sources: No
Water supply: Mains water supply
Sewerage: Mains
Heating: Mains gas-powered central heating is installed.
Heating features: None
Broadband: FTTP (Fibre to the Premises)
Mobile coverage: O2 - Good, Vodafone - Good, Three - OK, EE - Good
Parking: Garage, Off Street, Driveway, and Private
Building safety issues: No
Restrictions - Listed Building: No
Restrictions - Conservation Area: No
Restrictions - Tree Preservation Orders: None
Public right of way: No
Long-term area flood risk: No
Historical flooding: No
Flood defences: No
Coastal erosion risk: No
Planning permission issues: No
Accessibility and adaptations: None
Coal mining area: No
Non-coal mining area: No
All information is provided without warranty. Contains HM Land Registry data © Crown copyright and database right 2021. This data is licensed under the Open Government Licence v3.0.
The information contained is intended to help you decide whether the property is suitable for you. You should verify any answers which are important to you with your property lawyer or surveyor or ask for quotes from the appropriate trade experts: builder, plumber, electrician, damp, and timber expert.
- COUNCIL TAXA payment made to your local authority in order to pay for local services like schools, libraries, and refuse collection. The amount you pay depends on the value of the property.Read more about council Tax in our glossary page.
- Ask agent
- PARKINGDetails of how and where vehicles can be parked, and any associated costs.Read more about parking in our glossary page.
- Yes
- GARDENA property has access to an outdoor space, which could be private or shared.
- Yes
- ACCESSIBILITYHow a property has been adapted to meet the needs of vulnerable or disabled individuals.Read more about accessibility in our glossary page.
- Ask agent
Liberty Way, Exeter, EX2
Add an important place to see how long it'd take to get there from our property listings.
__mins driving to your place
Get an instant, personalised result:
- Show sellers you’re serious
- Secure viewings faster with agents
- No impact on your credit score
Your mortgage
Notes
Staying secure when looking for property
Ensure you're up to date with our latest advice on how to avoid fraud or scams when looking for property online.
Visit our security centre to find out moreDisclaimer - Property reference RX742839. The information displayed about this property comprises a property advertisement. Rightmove.co.uk makes no warranty as to the accuracy or completeness of the advertisement or any linked or associated information, and Rightmove has no control over the content. This property advertisement does not constitute property particulars. The information is provided and maintained by Smart Property Group, Exeter. Please contact the selling agent or developer directly to obtain any information which may be available under the terms of The Energy Performance of Buildings (Certificates and Inspections) (England and Wales) Regulations 2007 or the Home Report if in relation to a residential property in Scotland.
*This is the average speed from the provider with the fastest broadband package available at this postcode. The average speed displayed is based on the download speeds of at least 50% of customers at peak time (8pm to 10pm). Fibre/cable services at the postcode are subject to availability and may differ between properties within a postcode. Speeds can be affected by a range of technical and environmental factors. The speed at the property may be lower than that listed above. You can check the estimated speed and confirm availability to a property prior to purchasing on the broadband provider's website. Providers may increase charges. The information is provided and maintained by Decision Technologies Limited. **This is indicative only and based on a 2-person household with multiple devices and simultaneous usage. Broadband performance is affected by multiple factors including number of occupants and devices, simultaneous usage, router range etc. For more information speak to your broadband provider.
Map data ©OpenStreetMap contributors.





