Valley Road, Rickmansworth, WD3

- PROPERTY TYPE
Detached
- BEDROOMS
5
- BATHROOMS
6
- SIZE
Ask agent
- TENUREDescribes how you own a property. There are different types of tenure - freehold, leasehold, and commonhold.Read more about tenure in our glossary page.
Freehold
Description
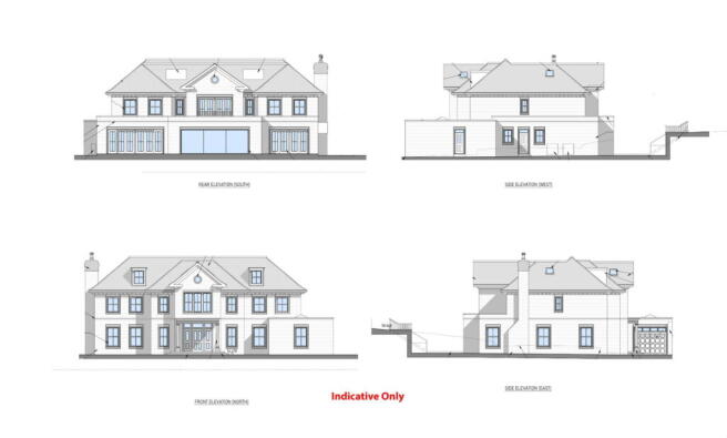
A rare opportunity to acquire a 0.409 acre plot of land with planning granted for construction of a 5 bedroom, 6 bathrooms, 5 reception room detached home, arranged over three floors & totalling approximately 6,781.32sqft. Plans can be viewed on Three Rivers District Council website. Planning reference ref: 25/0999/FUL.
The existing planning permission designed by a well-regarded local architect, Jack Dusek & Co, includes provision for several elegant reception rooms, a grand open-plan kitchen/dining/family area, and additional ancillary spaces.
CIL (Community Infrastructure Levy & Mayoral Charge)
Any purchaser who constructs the property, in line with the planning application, will have an obligation to pay the charges imposed by way of a CIL. The buyer(s) are advised to make their own enquiries via their own representatives. Three Rivers District Council Affordable Housing Contribution differs from other local authorities. We advise that one must make their own enquiries via their consultants.
BOUNDARIES & FENCING POSITIONS
We have not undertaken a detailed survey of any of the boundaries. Buyer(s) are advised to make their own enquiries via their own representatives.
TREE PRESERVATION ORDERS (TPO'S)
We understand a number of the trees on the site are subject to TPO's. interested parties should make their own enquires with the local authority
CONTAMINATION & SOIL SURVEY
We have not carried out a land contamination survey. Interested parties should make their own enquiries.
Please note: the images/drawings are artist's impressions (CGI’s) and are not scale and indicative only. The architect drawings have been supplied by a 3rd party. Therefore, accuracy cannot be guaranteed or warranted. The plans are not to scale and indicative only. The buyer(s) are advised to obtain verification from their own advisers, be that a solicitor or surveyor. The plans should be used for general guidance only and do not constitute, in whole or in part, an offer or contract. Any intending purchaser should satisfy themselves.
by inspection, searches, enquiries and full survey as to the correctness of each statement. Any areas, measurements or distances quoted are approximate and should not be used to value a property.
Rickmansworth town centre has a wide range of boutique shops, coffee houses, restaurants and major supermarkets. The Metropolitan and Chiltern line train services connect you to London Baker Street, Marylebone Station and beyond. The M25 motorway is available at both junction 17 and 18, connecting you to the national motorway network. Major London airports are also within reach. The area is wellserved for good quality private and state schools for all ages. Chorleywood and Rickmansworth offer everything for the sporting individual from rugby, cricket, football, tennis, horse riding and golf. Rickmansworth Aquadrome is an ideal setting for walks, sailing, fishing and water skiing.
Tenure: Freehold
Local Authority: Three Rivers District Council
Brochures
Brochure 1- COUNCIL TAXA payment made to your local authority in order to pay for local services like schools, libraries, and refuse collection. The amount you pay depends on the value of the property.Read more about council Tax in our glossary page.
- Band: G
- PARKINGDetails of how and where vehicles can be parked, and any associated costs.Read more about parking in our glossary page.
- Garage,Driveway
- GARDENA property has access to an outdoor space, which could be private or shared.
- Ask agent
- ACCESSIBILITYHow a property has been adapted to meet the needs of vulnerable or disabled individuals.Read more about accessibility in our glossary page.
- Ask agent
Valley Road, Rickmansworth, WD3
Add an important place to see how long it'd take to get there from our property listings.
__mins driving to your place
Get an instant, personalised result:
- Show sellers you’re serious
- Secure viewings faster with agents
- No impact on your credit score
Your mortgage
Notes
Staying secure when looking for property
Ensure you're up to date with our latest advice on how to avoid fraud or scams when looking for property online.
Visit our security centre to find out moreDisclaimer - Property reference S1618612. The information displayed about this property comprises a property advertisement. Rightmove.co.uk makes no warranty as to the accuracy or completeness of the advertisement or any linked or associated information, and Rightmove has no control over the content. This property advertisement does not constitute property particulars. The information is provided and maintained by Robsons, Rickmansworth. Please contact the selling agent or developer directly to obtain any information which may be available under the terms of The Energy Performance of Buildings (Certificates and Inspections) (England and Wales) Regulations 2007 or the Home Report if in relation to a residential property in Scotland.
*This is the average speed from the provider with the fastest broadband package available at this postcode. The average speed displayed is based on the download speeds of at least 50% of customers at peak time (8pm to 10pm). Fibre/cable services at the postcode are subject to availability and may differ between properties within a postcode. Speeds can be affected by a range of technical and environmental factors. The speed at the property may be lower than that listed above. You can check the estimated speed and confirm availability to a property prior to purchasing on the broadband provider's website. Providers may increase charges. The information is provided and maintained by Decision Technologies Limited. **This is indicative only and based on a 2-person household with multiple devices and simultaneous usage. Broadband performance is affected by multiple factors including number of occupants and devices, simultaneous usage, router range etc. For more information speak to your broadband provider.
Map data ©OpenStreetMap contributors.




