
Gable End, Kilnwick, Driffield, YO25 9JR

- PROPERTY TYPE
Detached
- BEDROOMS
3
- BATHROOMS
3
- SIZE
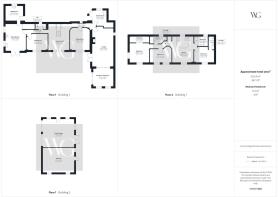
2,745 sq ft
255 sq m
- TENUREDescribes how you own a property. There are different types of tenure - freehold, leasehold, and commonhold.Read more about tenure in our glossary page.
Freehold
Key features
- QUALITY CONVERSION BY RENOWNED LOCAL BUILDER
- SPACE AND GENEROUS GARDEN
- VAULTED CEILING
- FABULOUS FEATURES
- A TRUE GEM, PERFECT FOR FAMILIES
- THREE BEDROOMS WITH POTENTIAL FOURTH
- WORKSHOP WITH WC AND DOUBLE GARAGE
- TWO ACCESSES/ LOTS OF PARKING WITH SECURITY
- SIMPLY AN EXECUTIVE RESIDENCE
- THREE BATH/ SHOWER ROOMS
Description
A most attractive and truly stunning executive barn conversion residence, offering an exceptional blend of space, style and comfort. This impressive home boasts a generous and versatile layout, comprising three well-proportioned bedrooms, three beautifully appointed bathrooms and five elegant reception rooms – ideal for the growing family and perfectly suited to both everyday living and entertaining.
The property has been meticulously maintained to an exceptionally high standard throughout and benefits from full oil-fired underfloor heating, ensuring warmth and comfort all year round.
Externally, the gardens provide a wonderful setting for entertaining and hosting parties, with ample space for outdoor dining and relaxation. A large garage and ample parking further enhance the practicality of this superb home.
Situated within a truly unspoilt rural village, the residence enjoys a peaceful and picturesque setting, offering an enviable lifestyle in a charming countryside location.
ENTRANCE HALL
A delightful entrance hall offering light and space, with bespoke oak and wrought iron staircase leading off, ceiling spotlighting, oak flooring and underfloor heating.
SITTING ROOM
Overlooking the garden with feature fireplace, elctric fire in situ, ceiling spotlighting, oak flooring, underfloor heating and TV point.
GARDEN ROOM
A great addition to the house with wood burning stove in situ, slate flooring, underfloor heating, window and door to the rear elevation. Overlooking the rear garden.
LOUNGE
With feature brick fireplace, multi-fuel burner in situ, feature beams, window to side elevation, French doors to garden, ceiling spotlighting, TV point and bi-folds to sun/ day room. Underfloor heating.
SUN ROOM/ DAY ROOM
A bright and airy reception room with wood burning stove in situ, oak flooring, bi-fold doors to the garden, full length windows giving sense of space and light towards the rear garden.
DINING ROOM
A super formal dining room, perfect for entertaining, overlooking the garden, ceiling spotlighting, oak flooring and underfloor heating.
KITCHEN DINER
A blend of traditional finish and modern feel, a range of fitted wall, base, drawer and larder units, inset 'belfast' sink, granite work surfaces over, space for dishwasher, microwave, range cooker, integrated fridge/ freezer, tiled splash back, tiled flooring, windows to side elevation and French doors to garden, underfloor heating, ceiling spotlighting and door to utility room.
UTILITY ROOM
A perfect spacious utilty room with wall and base units, inset 'belfast' sink with taps, granite work surface over, tiled splash back, tiled flooring, space for washing machine, tumble dryer and fridge/ freezer, underfloor heating, ceiling spotlighting and door to garden.
LANDING
A simply stunning split level oak staircase with stained glass window to the rear elevation and window to the front elevation, offering light and open views. A vaulted ceiling with beams oozes quality and charm, with bright and airy sitting/ reading area (could be made into a further bedroom if required). There is a cylinder cupboard, oak flooring and underfloor heating. A real statement room!
BEDROOM 1
With dual aspect windows, underfloor heating, laminate flooring, ceiling spotlighting, bespoke fitted wardrobes, opening into a large walk-in wardrobe and door to en-suite.
EN-SUITE
With modern white suite comprising panelled bath, shower cubicle with shower over, pedestal wash hand basin, low level wc, heated towel rail, extractor fan, fully tiled, ceiling spotlighting, underfloor heating and window to rear elevation.
BEDROOM 2
With window to front elevation, laminate flooring, underfloor heating, ceiling spotlighting and door to en-suite.
EN-SUITE
With modern white suite comprising low level wc, pedestal wash hand basin, shower cubicle with shower over, tiled walls and flooring, underfloor heating, ceiling spotlighting and heated towel rail.
BEDROOM 3
With two windows to rear elevation, laminate flooring and underfloor heating and ceiling spotlighting.
BATHROOM
A super modern bathroom with white suite comprising statement bath, pedestal wash hand basin, low level wc and shower cubicle with shower over. Tiled walls and flooring, heated towel rail, underfloor heating and ceiling spotlighting. Window to rear elevation.
SERVICES
Water, electricity and drainage are connected to the property. The property benefits from oil fired central heating. (There is no gas in the village).
Garden
The garden is a true wrap-around haven for the keen gardener, thoughtfully designed to offer both beauty and productivity. A charming cottage-style garden sits alongside dedicated growing areas, complemented by a generous lawn and multiple seating spots ideal for relaxing or entertaining. A delightful rockery planted with an array of flowers and shrubs adds colour and texture throughout the seasons. Practical features include two garden sheds, a wood store, and a fabulous hand-made well – perfect for convenient garden watering.
Parking - Off street
The main entrance is via the courtyard off Wilfholme Road, which has access to a large double garage and three exclusive parking spaces. Adjoining the double garage is a large workshop complete with WC. The workshop offers excellent potential for conversion into a self contained annex, subject to the necessary planning consents A second access to the property is from School Lane where there is a large gated gravel driveway and access to the property. This driveway is ideal for parking a motorhome, caravan, horse box or works vehicle.
Parking - Double garage
Large double garage with power and light connected. Electric powered up and over doors. Rear double and side personnel doors to garden
Disclaimer
Disclaimer
We take care to ensure our property details are accurate and fair, but they are for guidance only and do not form part of any contract. Measurements, floor plans, photographs, and descriptions are provided in good faith as a general guide, and should be checked by any prospective purchaser. We recommend that all buyers satisfy themselves on every aspect of the property before making a commitment to purchase.
- COUNCIL TAXA payment made to your local authority in order to pay for local services like schools, libraries, and refuse collection. The amount you pay depends on the value of the property.Read more about council Tax in our glossary page.
- Band: F
- PARKINGDetails of how and where vehicles can be parked, and any associated costs.Read more about parking in our glossary page.
- Garage,Off street
- GARDENA property has access to an outdoor space, which could be private or shared.
- Private garden
- ACCESSIBILITYHow a property has been adapted to meet the needs of vulnerable or disabled individuals.Read more about accessibility in our glossary page.
- Ask agent
Energy performance certificate - ask agent
Gable End, Kilnwick, Driffield, YO25 9JR
Add an important place to see how long it'd take to get there from our property listings.
__mins driving to your place
Affordability
Get an instant, personalised result:
- Show sellers you’re serious
- Secure viewings faster with agents
- No impact on your credit score
Notes
Staying secure when looking for property
Ensure you're up to date with our latest advice on how to avoid fraud or scams when looking for property online.
Visit our security centre to find out moreDisclaimer - Property reference e24f3010-b8fb-4af7-81a7-08d5bf4d18cb. The information displayed about this property comprises a property advertisement. Rightmove.co.uk makes no warranty as to the accuracy or completeness of the advertisement or any linked or associated information, and Rightmove has no control over the content. This property advertisement does not constitute property particulars. The information is provided and maintained by Willowgreen, Driffield. Please contact the selling agent or developer directly to obtain any information which may be available under the terms of The Energy Performance of Buildings (Certificates and Inspections) (England and Wales) Regulations 2007 or the Home Report if in relation to a residential property in Scotland.
*This is the average speed from the provider with the fastest broadband package available at this postcode. The average speed displayed is based on the download speeds of at least 50% of customers at peak time (8pm to 10pm). Fibre/cable services at the postcode are subject to availability and may differ between properties within a postcode. Speeds can be affected by a range of technical and environmental factors. The speed at the property may be lower than that listed above. You can check the estimated speed and confirm availability to a property prior to purchasing on the broadband provider's website. Providers may increase charges. The information is provided and maintained by Decision Technologies Limited. **This is indicative only and based on a 2-person household with multiple devices and simultaneous usage. Broadband performance is affected by multiple factors including number of occupants and devices, simultaneous usage, router range etc. For more information speak to your broadband provider.
Map data ©OpenStreetMap contributors.





