
Rues Farm Road, Old Felixstowe, IP11

- PROPERTY TYPE
End of Terrace
- BEDROOMS
2
- BATHROOMS
1
- SIZE
Ask agent
- TENUREDescribes how you own a property. There are different types of tenure - freehold, leasehold, and commonhold.Read more about tenure in our glossary page.
Freehold
Key features
- Electric Charging Point
- Allocated Parking
- Two Double Bedrooms
- Integrated Appliances
- Downstairs WC
- Open Plan Living
- French Doors
- Juliet Balcony
- Old Felixstowe location
- Ideal first time purchase
Description
Property additional info
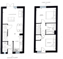
Entrance Hallway: 2.10m x 1.04m (6' 11" x 3' 5")
Half glazed with opaque glass composite front door opens into entrance lobby hallway, with wood effect laminate flooring, radiator, and doors to:
Downstairs cloakroom: 2.10m x 1.00m (6' 11" x 3' 3")
UPVC double glazed opaque glass window to front aspect, quartz windowsill shelf, radiator, grey wood effect laminate flooring, hand wash basin, discrete system WC, inset spotlights and extractor fan to ceiling.
Under stair cupboard:
With plumbing for the washing machine, modern consumer electrical consumer board, additional electric sockets, spotlight to ceiling, grey wood effect laminate flooring.
Open plan kitchen/living room: 8.72m x 4.10m narrowing to 3m (28' 7" x 13' 5")
Door opens from hallway into the open plan living area with wood effect laminate flooring throughout the ground floor. UPVC double glazed window to front aspect. Bespoke blinds. The kitchen has grey wood effect laminate worktops with matching grey eyelevel cupboards and blue stylish floor level cupboards, one and a half bowl stainless steel sink with mixer tap over, Bosch four burner integrated hob, integrated oven, integrated Zanussi dishwasher, integrated fridge freezer, cooker hood, wall mounted ideal logic Combi ESP 130 gas boiler in hidden in cupboard, spotlights to ceiling, living area has a radiator, French doors opening to garden, under stair cupboard, stairs leading to 1st floor.
Top landing:
Open spindles and wooden handrails, spotlights to ceiling, radiator, carpet, doors to all first floor rooms
Bedroom one: 4.06m x 3.04m (13' 4" x 10' )
UPVC double glazed window with bespoke blinds to rear aspect, carpet, radiator.
Bedroom two: 4.09m x 3.23m (13' 5" x 10' 7")
UPVC double glazed door with integral window and Juliet balcony to front aspect, radiator, carpet, inbuilt cupboard over the stairs, hatch to loft space.
Bathroom: 2.24m x 1.69m (7' 4" x 5' 7")
Grey wood effect laminate flooring, white three-piece bathroom suite consisting of bath with centrally wall mounted mixer taps and overhead rain head shower and hand shower attachment, hand wash basin, WC with discreet system, chrome radiator, part tiled walls with marble effect shelf and large wall mounted mirror, spotlights to ceiling
Outside front:
Planting areas to either side of the property with established shrubs and flowering plants, paved side access pathway with lockable gate providing access from the front along side of the house to the back garden, paved pathway leading from the driveway to the front door, block paved driveway with parking for two vehicles at the front of the property and this is boarded with a planting area.
Rear garden:
Enclosed rear garden with patio area, lawn and wild flowers. Gate leading to the front.
Additional Information:
Wainwrights Estate & Lettings Agent Ltd. Co No. 14699401. Trading Address: 156-158 Hamilton Road, Felixstowe, Suffolk, IP11 7DS. Misrepresentation Act 1967 and Property Misrepresentations Act 1991. This advertisement or these particulars do not constitute any part of an offer or contract. All measurements are given as a guide, and no liability can be accepted for any errors arising from. No responsibility is taken for any other error, omission, or misstatement in these particulars not for any expenses incurred by the applicants for whatever reason. No representation or warranty is made in relation to this property whether in these particulars, during negotiations or otherwise. Intending purchasers will be asked to produce identification documentation and proof of funds at a later stage. Wainwrights has not sought to verify the legal title of the property and the buyers must obtain verification from their solicitor. Council tax band B - £1,717.57
Roof type: Concrete roof tiles.
Construction materials used: Brick and block.
Water source: Direct mains water.
Electricity source: National Grid.
Sewerage arrangements: Standard UK domestic.
Heating Supply: Central heating (gas).
Parking Availability: Yes.
Brochures
Brochure 1- COUNCIL TAXA payment made to your local authority in order to pay for local services like schools, libraries, and refuse collection. The amount you pay depends on the value of the property.Read more about council Tax in our glossary page.
- Band: B
- PARKINGDetails of how and where vehicles can be parked, and any associated costs.Read more about parking in our glossary page.
- Yes
- GARDENA property has access to an outdoor space, which could be private or shared.
- Yes
- ACCESSIBILITYHow a property has been adapted to meet the needs of vulnerable or disabled individuals.Read more about accessibility in our glossary page.
- Ask agent
Rues Farm Road, Old Felixstowe, IP11
Add an important place to see how long it'd take to get there from our property listings.
__mins driving to your place
Get an instant, personalised result:
- Show sellers you’re serious
- Secure viewings faster with agents
- No impact on your credit score
About Wainwrights Estate & Lettings Agent Ltd, Felixstowe
156-158 Hamilton Road, Felixstowe, IP11 7DS


Affordability
Notes
Staying secure when looking for property
Ensure you're up to date with our latest advice on how to avoid fraud or scams when looking for property online.
Visit our security centre to find out moreDisclaimer - Property reference wainwrights_1637512325. The information displayed about this property comprises a property advertisement. Rightmove.co.uk makes no warranty as to the accuracy or completeness of the advertisement or any linked or associated information, and Rightmove has no control over the content. This property advertisement does not constitute property particulars. The information is provided and maintained by Wainwrights Estate & Lettings Agent Ltd, Felixstowe. Please contact the selling agent or developer directly to obtain any information which may be available under the terms of The Energy Performance of Buildings (Certificates and Inspections) (England and Wales) Regulations 2007 or the Home Report if in relation to a residential property in Scotland.
*This is the average speed from the provider with the fastest broadband package available at this postcode. The average speed displayed is based on the download speeds of at least 50% of customers at peak time (8pm to 10pm). Fibre/cable services at the postcode are subject to availability and may differ between properties within a postcode. Speeds can be affected by a range of technical and environmental factors. The speed at the property may be lower than that listed above. You can check the estimated speed and confirm availability to a property prior to purchasing on the broadband provider's website. Providers may increase charges. The information is provided and maintained by Decision Technologies Limited. **This is indicative only and based on a 2-person household with multiple devices and simultaneous usage. Broadband performance is affected by multiple factors including number of occupants and devices, simultaneous usage, router range etc. For more information speak to your broadband provider.
Map data ©OpenStreetMap contributors.





