Stanbury Avenue, Plymouth, PL6

- PROPERTY TYPE
Semi-Detached
- BEDROOMS
4
- BATHROOMS
3
- SIZE
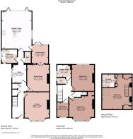
1,905 sq ft
177 sq m
- TENUREDescribes how you own a property. There are different types of tenure - freehold, leasehold, and commonhold.Read more about tenure in our glossary page.
Freehold
Key features
- For all enquiries relating to this property, please quote reference HP0686
- Substantially extended 1930s family home
- Four well-proportioned bedrooms
- Lounge, dining room & conservatory
- Large kitchen/breakfast/family room – ideal for modern living
- Utility room, ground floor bathroom & cloakroom
- Stunning re-fitted family shower room plus additional en-suite shower
- Level, low maintenance rear garden with raised display beds
- Brick paved driveway providing off-road parking
- GCH & DG
Description
For all enquiries relating to this property, please quote reference HP0686
Positioned on the highly sought-after Great Berry estate, this beautifully extended 1930s home offers space, warmth and versatility in equal measure. From the moment you step through the door, there is a real sense of care and attention — a house that has been thoughtfully improved and lovingly maintained, ready for its next chapter.
The welcoming entrance hall sets the tone, with character touches including a stained-glass feature window and attractive oak flooring. The lounge is a calm and inviting space, centred around a feature fireplace — perfect for cosy evenings — while the separate dining room provides a wonderful setting for family meals and celebrations - equally, this room could be used a second lounge, snug, home office or teenager zone!
To the rear, the property really comes into its own. The substantial extension has created a large kitchen/breakfast/family room, very much the heart of the home. Designed with modern living in mind, it offers generous worktop space with integrated appliances, room for informal dining, and plenty of space for family and friends to gather. The adjoining conservatory provides an additional light-filled space overlooking the garden — ideal for quieter moments with a coffee & a book.
Practicality hasn’t been overlooked, with a separate utility room, ground floor bathroom and cloakroom adding real convenience for busy family life.
Upstairs, four bedrooms provide excellent accommodation, whether you are a growing family, working from home, or simply wanting space to breathe. The re-fitted family shower room is truly stunning — sleek, contemporary and finished to a high standard — complemented by an additional en-suite shower room, ensuring no morning queues.
Externally, the rear garden is level and low maintenance, thoughtfully landscaped with raised display beds to add colour and interest throughout the seasons. To the front, a brick paved driveway provides off-road parking and completes the picture.
This is a home that offers both character and modern comfort in a location that continues to be in high demand. Perfect for those seeking quality space in a well-regarded neighbourhood, 1 Stanbury Avenue is ready to welcome its next family.
Need to know
For all enquiries relating to this property, please quote reference HP0686
EPC - D
Tenure - Freehold
Services - The home is supplied by Mains Gas, Electric, Water & Fibre Broadband
Council Tax - Plymouth City Council, Band D (£2,325.42 for the year 2025/26).
Construction - Traditional
Agents Note - All measurements and floor plans are for illustration purposes only
Reference made to any fixture, fittings, appliances, or any of the building services does not imply that they are in working order or have been tested by the Agent. Purchasers should establish the suitability and working condition of these items and services themselves.
AML / ID
Important Information on Anti-Money Laundering Check
We are required by law to conduct Anti-Money Laundering checks on all parties involved in the sale or purchase of a property.
We take the responsibility of this seriously in line with HMRC guidance in ensuring the accuracy and continuous monitoring of these checks. Our compliance partner, Move Butler, will carry out the initial checks on our behalf. They will contact you and where possible, a biometric check will be sent to you electronically only once your offer has been accepted.
As an applicant, you will be charged a non-refundable fee of £30 (inclusive of VAT) per buyer for these checks. The fee covers data collection, manual checking, and monitoring. You will need to pay this amount directly to Move Butler and complete all Anti-Money Laundering checks before your offer can be formally accepted.
In addition, you will also be required to provide evidence of how you intend to finance your purchase prior to formal acceptance of any offer.
- COUNCIL TAXA payment made to your local authority in order to pay for local services like schools, libraries, and refuse collection. The amount you pay depends on the value of the property.Read more about council Tax in our glossary page.
- Band: D
- PARKINGDetails of how and where vehicles can be parked, and any associated costs.Read more about parking in our glossary page.
- On street,Driveway
- GARDENA property has access to an outdoor space, which could be private or shared.
- Private garden
- ACCESSIBILITYHow a property has been adapted to meet the needs of vulnerable or disabled individuals.Read more about accessibility in our glossary page.
- No wheelchair access
Stanbury Avenue, Plymouth, PL6
Add an important place to see how long it'd take to get there from our property listings.
__mins driving to your place
Get an instant, personalised result:
- Show sellers you’re serious
- Secure viewings faster with agents
- No impact on your credit score
Your mortgage
Notes
Staying secure when looking for property
Ensure you're up to date with our latest advice on how to avoid fraud or scams when looking for property online.
Visit our security centre to find out moreDisclaimer - Property reference S1628017. The information displayed about this property comprises a property advertisement. Rightmove.co.uk makes no warranty as to the accuracy or completeness of the advertisement or any linked or associated information, and Rightmove has no control over the content. This property advertisement does not constitute property particulars. The information is provided and maintained by eXp UK, South West. Please contact the selling agent or developer directly to obtain any information which may be available under the terms of The Energy Performance of Buildings (Certificates and Inspections) (England and Wales) Regulations 2007 or the Home Report if in relation to a residential property in Scotland.
*This is the average speed from the provider with the fastest broadband package available at this postcode. The average speed displayed is based on the download speeds of at least 50% of customers at peak time (8pm to 10pm). Fibre/cable services at the postcode are subject to availability and may differ between properties within a postcode. Speeds can be affected by a range of technical and environmental factors. The speed at the property may be lower than that listed above. You can check the estimated speed and confirm availability to a property prior to purchasing on the broadband provider's website. Providers may increase charges. The information is provided and maintained by Decision Technologies Limited. **This is indicative only and based on a 2-person household with multiple devices and simultaneous usage. Broadband performance is affected by multiple factors including number of occupants and devices, simultaneous usage, router range etc. For more information speak to your broadband provider.
Map data ©OpenStreetMap contributors.




