Acorn Mews, South Otterington, DL7

- PROPERTY TYPE
Detached
- BEDROOMS
3
- BATHROOMS
3
- SIZE
1,820 sq ft
169 sq m
- TENUREDescribes how you own a property. There are different types of tenure - freehold, leasehold, and commonhold.Read more about tenure in our glossary page.
Freehold
Key features
- Build Contract Available
- 3 Bed Detached Home
- Newspan Construction
Description
We are thrilled to offer this fantastic opportunity to reserve your plot on a bespoke site being developed by Newspan Construction.
If you have ever dreamed of building your own home, this is your chance to work with one of the areas most respected developers to create your perfect property.
Plots are being offered for reservation. Full consultation over specification and design can be made with the developer.
Plot 3
This fantastic, detached, three bedroom property is set over three floors, with a bathroom/toilet on all floors.
Built with all the features of a Newspan creation, including Oak Porch, spacious living Kitchen and separate living room, this property will be constructed of Chatsworth Brick and Calderdale Dark grey roof tile for a premium feel.
South Otterington
The Village is named in the Domesday Book. The name is Old English after a person named Otter with “ton” meaning settlement. It is on the A167 and is part of the former Great North road from Boroughbridge to Northallerton.
The village with a population of 350 is 5 miles south of Northallerton on the east bank of the River Wiske.
The village is also home to a fine pub The Otterington Shorthorn, serving a great selection of home cooked food and real ale. It is a friendly yet charming pub with a warm and inviting atmosphere.
A fantastic primary School has its home in the Village which feeds into local secondary Schools including Thirsk, Northallerton, Ripon, Bedale, Queen Marys and Cundall Manor.
Transport Links
Sitting between Thirsk and Northallerton, access is easy for both Towns, each having a train station on the East Coast Mainline.
The Villages close proximity to the A1 and A19 allow commuters great access to all routes.
Materials Budget
The following budgets are offered within the purchase price and allow for you to choose your own kitchen and bathroom materials. Please note, this is materials only, at cost price with fitting included as part of the purchase price.
Kitchen £12,000
Bathrooms £3,000 each
Tiling £1500 each
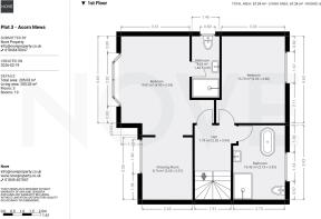
Entrance Hall
Accessed via a covered entrance with level threshold. A spacious reception hall with staircase rising to the first floor and access to principal ground floor rooms.
Lounge
4.65m x 3.3m
A generous front-facing reception room featuring a bay window (approx. 2.94m wide) providing excellent natural light. Well proportioned for family seating and entertainment.
Kitchen/Dining/Day Room
5.05m x 4.3m
Kitchen Area:
Approx. 3.30m x 3.00m (3m 30cm x 3m 00cm)
Designed to accommodate a central island with services. Ample space for contemporary fitted units and integrated appliances.
Day / Dining Area:
Approx. 4.30m x 3.25m (4m 30cm x 3m 25cm)
Open plan to the kitchen with bay window and double doors (approx. 2.94m wide overall) opening to the rear garden, creating an excellent family and entertaining space.
Utility Room
1.8m x 1.4m
Practical utility area with provision for washing appliances and additional storage.
Ground Floor W.C
Fitted with low level WC and wash basin of your choosing.
First Floor Landing
Central landing providing access to three rooms and family bathroom.
Bedroom One
4.75m x 3.3m
A generous double bedroom positioned to the front elevation with an additional dressing area measuring 3.25m x 2.6m and an ensuite Shower room
Dressing Area
3.25m x 2.6m
Ample space for wardrobes and vanity areas, set off from the main bedroom.
Ensuite Shower Room
3.17m x 1.45m
the ensuite can be fitted with the suite and tiling of your choice.
Bedroom Two
3.9m x 3.2m
Well-proportioned double bedroom overlooking the rear garden.
Family Bathroom
3.87m x 2.56m
Planned to contain a freestanding bath, walk in shower area, basin and toilet, the bathroom can be chosen by the buyer to create a bespoke finish.
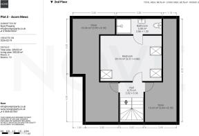
Second Floor Suite
4.5m x 3.75m
A spacious top floor principal bedroom with roof lights providing excellent natural light.
Ensuite
2.6m x 1.85m
Comprising shower enclosure, WC and wash basin of your choosing.
Eaves Storage
Additional boarded storage areas set within the roof space.
Brochures
Property Brochure- COUNCIL TAXA payment made to your local authority in order to pay for local services like schools, libraries, and refuse collection. The amount you pay depends on the value of the property.Read more about council Tax in our glossary page.
- Ask agent
- PARKINGDetails of how and where vehicles can be parked, and any associated costs.Read more about parking in our glossary page.
- Ask agent
- GARDENA property has access to an outdoor space, which could be private or shared.
- Yes
- ACCESSIBILITYHow a property has been adapted to meet the needs of vulnerable or disabled individuals.Read more about accessibility in our glossary page.
- Ask agent
Energy performance certificate - ask agent
Acorn Mews, South Otterington, DL7
Add an important place to see how long it'd take to get there from our property listings.
__mins driving to your place
Get an instant, personalised result:
- Show sellers you’re serious
- Secure viewings faster with agents
- No impact on your credit score
Your mortgage
Notes
Staying secure when looking for property
Ensure you're up to date with our latest advice on how to avoid fraud or scams when looking for property online.
Visit our security centre to find out moreDisclaimer - Property reference 221b211c-a3fe-47e5-a00a-71eea78024b0. The information displayed about this property comprises a property advertisement. Rightmove.co.uk makes no warranty as to the accuracy or completeness of the advertisement or any linked or associated information, and Rightmove has no control over the content. This property advertisement does not constitute property particulars. The information is provided and maintained by Nove Property, Thirsk. Please contact the selling agent or developer directly to obtain any information which may be available under the terms of The Energy Performance of Buildings (Certificates and Inspections) (England and Wales) Regulations 2007 or the Home Report if in relation to a residential property in Scotland.
*This is the average speed from the provider with the fastest broadband package available at this postcode. The average speed displayed is based on the download speeds of at least 50% of customers at peak time (8pm to 10pm). Fibre/cable services at the postcode are subject to availability and may differ between properties within a postcode. Speeds can be affected by a range of technical and environmental factors. The speed at the property may be lower than that listed above. You can check the estimated speed and confirm availability to a property prior to purchasing on the broadband provider's website. Providers may increase charges. The information is provided and maintained by Decision Technologies Limited. **This is indicative only and based on a 2-person household with multiple devices and simultaneous usage. Broadband performance is affected by multiple factors including number of occupants and devices, simultaneous usage, router range etc. For more information speak to your broadband provider.
Map data ©OpenStreetMap contributors.





