Royal Oak Lane, Crowhurst, TN33
- PROPERTY TYPE
Land
- SIZE
Ask agent
Description
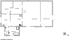
The existing dwelling is a converted block-built outbuilding with a pitched slate roof and small lean-to that offers a single storey accommodation comprising entrance hall, living room, kitchen/dining room, two bedrooms and a bathroom, situated in the top south west corner of the site.
Outside
Landscape Studios is accessed off Royal Oak Lane via a hard surfaced drive that also provides a parking area to the side of the dwelling where there is dilapidated outbuilding of timber construction with tin cladding, previously serving as garaging. There is a good sized area of lawned garden to the south east of the dwelling with decked sitting out areas and a paved terrace.
Land
Beyond the dwelling and immediate garden area is a parcel of pasture land sloping gently down to the south east enclosed largely by a mixture of hedging and trees affording a good level of privacy.
Set in glorious rolling countryside within 1066 Country and the High Weald Area of Outstanding Natural Beauty. The area boasts a wealth of leisure and visitor attractions including Bodiam Castle, Sissinghurst Castle Garden, Battle Abbey and the Kent and East Sussex Railway which operates from Tenterden to Bodiam.
Local amenities can be found in Crowhurst itself, and in the nearby villages of Catsfield (5 miles) and Ninfield (5.5 miles) with the larger town of Hastings (4.7 miles) providing a large range of shops, supermarkets and services.
There is a good selection of state and independent schools in the area for all ages including Crowhurst Primary School, Robertsbridge Community College, Battle Abbey School in Battle, Marlborough House Vinehall school at Robertsbridge, Saint Ronan's in Hawkhurst and Benenden School.
The property benefits from excellent communication links. Main line stations can be found in Crowhurst and Hastings (6.4 miles) – journey times to London stations of approximately 1 hour and 50 minutes. The nearby A21 gives access to the M25 for Gatwick and Heathrow airports and to the M20 to Dover, Folkestone and Ashford International Station.
Brochures
ParticularsRoyal Oak Lane, Crowhurst, TN33
NEAREST STATIONS
Distances are straight line measurements from the centre of the postcode- Crowhurst Station0.8 miles
- West St. Leonards Station2.6 miles
- Bexhill Station2.8 miles
Notes
Disclaimer - Property reference HRM260013. The information displayed about this property comprises a property advertisement. Rightmove.co.uk makes no warranty as to the accuracy or completeness of the advertisement or any linked or associated information, and Rightmove has no control over the content. This property advertisement does not constitute property particulars. The information is provided and maintained by Samuel and Son Chartered Surveyors, Horam. Please contact the selling agent or developer directly to obtain any information which may be available under the terms of The Energy Performance of Buildings (Certificates and Inspections) (England and Wales) Regulations 2007 or the Home Report if in relation to a residential property in Scotland.
Map data ©OpenStreetMap contributors.






