Units 14 & 15 Barratt Trading Estate, Denmore Road, Bridge of Don, Aberdeen, AB23 8JW
- SIZE AVAILABLE
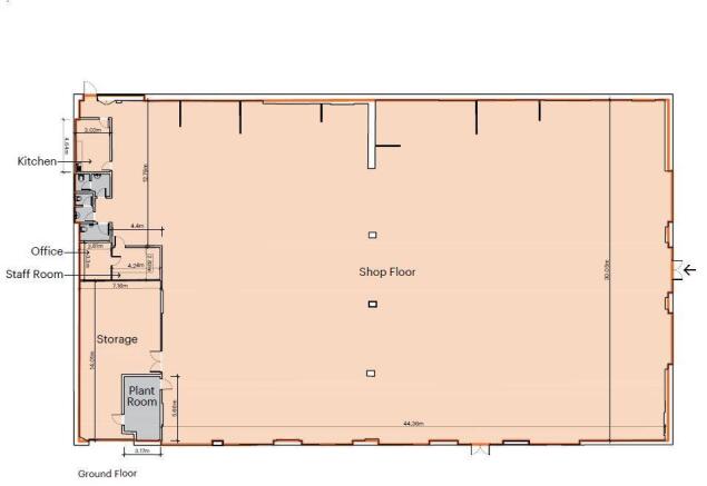
17,429 sq ft
1,619 sq m
- SECTOR
Out-of-town retail property to lease
Lease details
- Lease available date:
- Now
- Lease type:
- Long term
Key features
- Denmore Road Frontage
- Toolstation and Screwfix located opposite
- Gross Internal Area: 1,629.19 Sq. m (17,429 Sq. ft)
- Potential to be split
- Established industrial location, approximately 4 miles north of Aberdeen City Centre and with close proximity to the AWPR.
Description
Generous car parking and loading / unloading facilities are provided adjected to the unit
Brochures
Units 14 & 15 Barratt Trading Estate, Denmore Road, Bridge of Don, Aberdeen, AB23 8JW
NEAREST STATIONS
Distances are straight line measurements from the centre of the postcode- Aberdeen Station3.7 miles
- Dyce Station3.8 miles
Notes
Disclaimer - Property reference 51200LH. The information displayed about this property comprises a property advertisement. Rightmove.co.uk makes no warranty as to the accuracy or completeness of the advertisement or any linked or associated information, and Rightmove has no control over the content. This property advertisement does not constitute property particulars. The information is provided and maintained by Graham & Sibbald, Aberdeen. Please contact the selling agent or developer directly to obtain any information which may be available under the terms of The Energy Performance of Buildings (Certificates and Inspections) (England and Wales) Regulations 2007 or the Home Report if in relation to a residential property in Scotland.
Map data ©OpenStreetMap contributors.



