Whiting Road, Wemyss Bay, PA18

- PROPERTY TYPE
Semi-Detached
- BEDROOMS
3
- BATHROOMS
2
- SIZE
1,001 sq ft
93 sq m
- TENUREDescribes how you own a property. There are different types of tenure - freehold, leasehold, and commonhold.Read more about tenure in our glossary page.
Freehold
Key features
- Modern Dining Kitchen with Garden Access Stylish and practical space with French doors opening to the decking, perfect for family meals, entertaining friends and indoor outdoor living.
- Private Rear Garden with Decking Area Sheltered decking and lawn create a peaceful retreat for summer evenings, weekend barbecues and safe play space for children and pets.
- Three Versatile Bedrooms. Well proportioned rooms offering flexibility for family living, guests or a comfortable home office setup.
- Corner Position with Detached Shed. Enjoy added privacy, generous outdoor space and useful storage for bikes, tools and garden equipment.
- Council Tax: Band C
- EPC Performance Rating: C
Description
Set within a peaceful pocket of Wemyss Bay, this beautifully presented three bedroom home unfolds across two bright and welcoming levels, offering space to gather, unwind and truly feel at home.
From the moment you step inside, there is a lovely sense of flow. The entrance hallway leads into a generous lounge where natural light pours through the large window, creating the perfect setting for cosy evenings on the sofa or relaxed Sunday afternoons with family. The soft tones and warm flooring give the space a calm, inviting feel.
To the rear, the modern dining kitchen forms the heart of the home. With sleek cabinetry, ample workspace and room for a table, it is easy to imagine morning coffees at the breakfast bar, homework at the table while dinner simmers, and friends gathered for easy conversation. French doors open directly to the private rear garden, allowing indoor and outdoor living to blend effortlessly.
Upstairs, three well proportioned bedrooms offer flexibility for growing families, visiting guests or those working from home. Each room feels bright and comfortable, while the family bathroom is fresh and well appointed.
Outside is where this home truly shines. The private rear garden and decking area create a wonderful space to enjoy warmer days. Whether it is summer barbecues, a quiet glass of wine under the pergola, or children playing safely on the lawn, this is a garden designed to be enjoyed. A detached shed provides additional storage, while the corner position offers a sense of openness and privacy.
A beautifully cared for home in a sought after coastal setting, ready for its next chapter.
Information provided in these particulars is for guidance only and complete accuracy cannot be guaranteed by McArthur Scott. They do not form part of any missives. You should rely on your own enquiries and due diligence at all times and seek your own advice and verification on any particular point. The Home Report should also be consulted for further clarification. All measurements given are approximate and to the longest and widest points. No apparatus, equipment, fixture or fitting has been tested and no warranty can be given as to their working order. Items shown in photographs are not necessarily included in the price.
EPC Rating: C
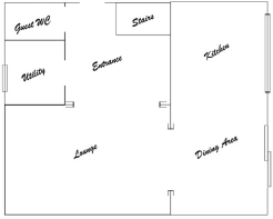
Lounge
6.2m x 4.8m
Kitchen/Dining Area
6.2m x 2.9m
Utility Room
1.8m x 1.7m
Guest WC
1.9m x 1m
Bedroom 1
3.1m x 2.8m
Bedroom 2
4.2m x 2.6m
Bedroom 3
3.6m x 2.9m
Bathroom
2.9m x 2.3m
Garden
Private enclosed garden to rear of property
- COUNCIL TAXA payment made to your local authority in order to pay for local services like schools, libraries, and refuse collection. The amount you pay depends on the value of the property.Read more about council Tax in our glossary page.
- Band: C
- PARKINGDetails of how and where vehicles can be parked, and any associated costs.Read more about parking in our glossary page.
- Ask agent
- GARDENA property has access to an outdoor space, which could be private or shared.
- Private garden
- ACCESSIBILITYHow a property has been adapted to meet the needs of vulnerable or disabled individuals.Read more about accessibility in our glossary page.
- Ask agent
Energy performance certificate - ask agent
Whiting Road, Wemyss Bay, PA18
Add an important place to see how long it'd take to get there from our property listings.
__mins driving to your place
Get an instant, personalised result:
- Show sellers you’re serious
- Secure viewings faster with agents
- No impact on your credit score
Your mortgage
Notes
Staying secure when looking for property
Ensure you're up to date with our latest advice on how to avoid fraud or scams when looking for property online.
Visit our security centre to find out moreDisclaimer - Property reference b4c31137-7510-4a97-8535-6e6357134dc7. The information displayed about this property comprises a property advertisement. Rightmove.co.uk makes no warranty as to the accuracy or completeness of the advertisement or any linked or associated information, and Rightmove has no control over the content. This property advertisement does not constitute property particulars. The information is provided and maintained by McArthur Scott, Gourock. Please contact the selling agent or developer directly to obtain any information which may be available under the terms of The Energy Performance of Buildings (Certificates and Inspections) (England and Wales) Regulations 2007 or the Home Report if in relation to a residential property in Scotland.
*This is the average speed from the provider with the fastest broadband package available at this postcode. The average speed displayed is based on the download speeds of at least 50% of customers at peak time (8pm to 10pm). Fibre/cable services at the postcode are subject to availability and may differ between properties within a postcode. Speeds can be affected by a range of technical and environmental factors. The speed at the property may be lower than that listed above. You can check the estimated speed and confirm availability to a property prior to purchasing on the broadband provider's website. Providers may increase charges. The information is provided and maintained by Decision Technologies Limited. **This is indicative only and based on a 2-person household with multiple devices and simultaneous usage. Broadband performance is affected by multiple factors including number of occupants and devices, simultaneous usage, router range etc. For more information speak to your broadband provider.
Map data ©OpenStreetMap contributors.






