
Garlands Road, REDHILL, Surrey, RH1

- PROPERTY TYPE
Apartment
- BEDROOMS
1
- BATHROOMS
1
- SIZE
462 sq ft
43 sq m
Key features
- *One double bedroom apartment
- *Third floor
- *Reception room open to kitchen
- *Allocated parking space
- *Within walking distance to Redhill town centre & train station
- *Ideal for first time buyers or investors
- *Long lease
- *No chain
- *Buyers Commission May Be Required
Description
Ideal for first-time buyers, investors or professionals seeking convenience and comfort, this spacious and well-presented one-bedroom modern apartment with allocated parking is a fantastic opportunity not to be missed.
The property offers a welcoming entrance hall leading through to a bright and airy reception room, open plan to a stylish fitted kitchen — perfect for both relaxing and entertaining. There is a generously sized double bedroom with built-in storage, along with a contemporary bathroom suite.
Ideally positioned within walking distance of Redhill town centre, the apartment provides excellent access to a wide range of shops, restaurants, local amenities and Redhill train station, making it an excellent choice for commuters.
An internal viewing is highly recommended to fully appreciate what this property has to offer. Call today to arrange your appointment. EPC Rating: C
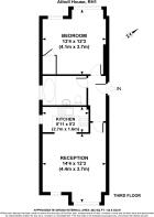
Entrance Hall
Doors to;
Reception Room
4.37m x 3.73m
Open to;
Kitchen
2.72m x 1.57m
Bedroom
4.06m x 3.73m
Bathroom
Parking
Allocated parking space.
Buyers Commission May Be Required*
Full details available upon request - *This property is being marketed by Choices on behalf of the seller on the basis that the buyer pays our fee of between 2.4% incl VAT and 3.6% incl VAT of the net purchase price. Unless otherwise agreed offers will therefore be submitted to the seller net of our fee.
MATERIAL INFORMATION
Tenure
Leasehold - Term: 150 years from 16 March 2018.
Council Tax Band
C.
Service Charge
£1,823.75 per annum - Estimated charges for the period 25 June 2025 - 24 June 2026. Payments taken half yearly. Reviewed annually. Includes building insurance and reserve fund.
Ground Rent
£150 per annum - Payments taken half yearly. Review period - £150 per annum for the first 25 years of the term, every 25 years there after a further £150 per annum. Together with throughout the term such further or additional rent (if any) may be reserved by the lease.
Broadband
Up to 1000 Mbps. For more information please visit
Mobile Coverage
All good for voice calls and data. For more information please visit
Mains Services
Gas/Electricity/Water-metered/Drainage.
Heating system
Gas radiators.
Easements
Yes - In the original lease.
Restrictive Covenants
Yes – Relating to commercial use of the property, erection of buildings and boundary obligations. Please note that this is a brief summary of key information contained within the property title and any prospective purchaser should seek further clarification from their conveyancer.
N.B
Please note, photos were taken prior to tenants moving in.
Brochures
Web DetailsParticulars- COUNCIL TAXA payment made to your local authority in order to pay for local services like schools, libraries, and refuse collection. The amount you pay depends on the value of the property.Read more about council Tax in our glossary page.
- Band: C
- PARKINGDetails of how and where vehicles can be parked, and any associated costs.Read more about parking in our glossary page.
- Allocated
- GARDENA property has access to an outdoor space, which could be private or shared.
- Ask agent
- ACCESSIBILITYHow a property has been adapted to meet the needs of vulnerable or disabled individuals.Read more about accessibility in our glossary page.
- Ask agent
Garlands Road, REDHILL, Surrey, RH1
Add an important place to see how long it'd take to get there from our property listings.
__mins driving to your place
Get an instant, personalised result:
- Show sellers you’re serious
- Secure viewings faster with agents
- No impact on your credit score
Your mortgage
Notes
Staying secure when looking for property
Ensure you're up to date with our latest advice on how to avoid fraud or scams when looking for property online.
Visit our security centre to find out moreDisclaimer - Property reference RED220005. The information displayed about this property comprises a property advertisement. Rightmove.co.uk makes no warranty as to the accuracy or completeness of the advertisement or any linked or associated information, and Rightmove has no control over the content. This property advertisement does not constitute property particulars. The information is provided and maintained by Choices, Croydon. Please contact the selling agent or developer directly to obtain any information which may be available under the terms of The Energy Performance of Buildings (Certificates and Inspections) (England and Wales) Regulations 2007 or the Home Report if in relation to a residential property in Scotland.
*This is the average speed from the provider with the fastest broadband package available at this postcode. The average speed displayed is based on the download speeds of at least 50% of customers at peak time (8pm to 10pm). Fibre/cable services at the postcode are subject to availability and may differ between properties within a postcode. Speeds can be affected by a range of technical and environmental factors. The speed at the property may be lower than that listed above. You can check the estimated speed and confirm availability to a property prior to purchasing on the broadband provider's website. Providers may increase charges. The information is provided and maintained by Decision Technologies Limited. **This is indicative only and based on a 2-person household with multiple devices and simultaneous usage. Broadband performance is affected by multiple factors including number of occupants and devices, simultaneous usage, router range etc. For more information speak to your broadband provider.
Map data ©OpenStreetMap contributors.






