
Station Road, Castle Cary

- PROPERTY TYPE
Detached
- BEDROOMS
3
- BATHROOMS
1
- SIZE
Ask agent
- TENUREDescribes how you own a property. There are different types of tenure - freehold, leasehold, and commonhold.Read more about tenure in our glossary page.
Freehold
Key features
- Special offer plot with added extras included
- EV charger provisions
- West-facing generous rear garden
- Open-plan kitchen/dining room
- Separate utility room with external access
- En-suite to bedroom one
- Freehold
- Renewable energy provision from PV Solar panels
Description
SUMMARY
Plot 4 - Tor View
A popular and beautifully proportioned three-bedroom detached home with added extras, offering open-plan living, generous storage and a west-facing garden - available as a special offer.
DESCRIPTION
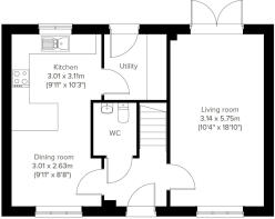
Plot 4, The Charndale, is a highly desirable three-bedroom detached home offering space, light and practicality in equal measure. The ground floor features a bright and modern open-plan kitchen/dining room, ideal for everyday living and entertaining, with direct access to a separate utility room and onward external access.
The spacious living room enjoys French doors opening onto the west-facing rear garden, creating a seamless indoor-outdoor flow. A ground floor WC and entrance hallway complete the lower level.
Upstairs, there are three well-proportioned bedrooms, with bedroom one benefitting from an en-suite shower room. Additional storage cupboards are accessed from both the first-floor landing and the principal bedroom, alongside a contemporary family bathroom.
Offered with added extras and set on a generous plot, this special offer home is ideal for families and buyers looking for exceptional value.
Room Measurements
Ground Floor
o Kitchen area: 9'11" x 10'3"
o Dining area: 11'9" x 8'8"
o Living room: 10'4" x 18'10"
First Floor
o Bedroom 1: 9'6" x 12'4" (with en-suite)
o Bedroom 2: 13'9" x 9'8"
o Bedroom 3: 10'4" x 8'10"
o Family bathroom
o Storage cupboards to landing & bedroom one
Please Note
Please note that images used may be computer generated and/or from a show-home by the developer and are meant for guidance only. Images are general of the development and may not relate to your chosen Plot - clarification should be sought from our sales team.
1. MONEY LAUNDERING REGULATIONS - Intending purchasers will be asked to produce identification documentation at a later stage and we would ask for your co-operation in order that there will be no delay in agreeing the sale.
2: These particulars do not constitute part or all of an offer or contract.
3: The measurements indicated are supplied for guidance only and as such must be considered incorrect.
4: Potential buyers are advised to recheck the measurements before committing to any expense.
5: Connells has not tested any apparatus, equipment, fixtures, fittings or services and it is the buyers interests to check the working condition of any appliances.
6: Connells has not sought to verify the legal title of the property and the buyers must obtain verification from their solicitor.
Brochures
Full Details- COUNCIL TAXA payment made to your local authority in order to pay for local services like schools, libraries, and refuse collection. The amount you pay depends on the value of the property.Read more about council Tax in our glossary page.
- Band: TBC
- PARKINGDetails of how and where vehicles can be parked, and any associated costs.Read more about parking in our glossary page.
- Ask agent
- GARDENA property has access to an outdoor space, which could be private or shared.
- Yes
- ACCESSIBILITYHow a property has been adapted to meet the needs of vulnerable or disabled individuals.Read more about accessibility in our glossary page.
- Ask agent
Energy performance certificate - ask agent
Station Road, Castle Cary
Add an important place to see how long it'd take to get there from our property listings.
__mins driving to your place
Affordability
Get an instant, personalised result:
- Show sellers you’re serious
- Secure viewings faster with agents
- No impact on your credit score
Notes
Staying secure when looking for property
Ensure you're up to date with our latest advice on how to avoid fraud or scams when looking for property online.
Visit our security centre to find out moreDisclaimer - Property reference GIL306508. The information displayed about this property comprises a property advertisement. Rightmove.co.uk makes no warranty as to the accuracy or completeness of the advertisement or any linked or associated information, and Rightmove has no control over the content. This property advertisement does not constitute property particulars. The information is provided and maintained by Connells, Gillingham. Please contact the selling agent or developer directly to obtain any information which may be available under the terms of The Energy Performance of Buildings (Certificates and Inspections) (England and Wales) Regulations 2007 or the Home Report if in relation to a residential property in Scotland.
*This is the average speed from the provider with the fastest broadband package available at this postcode. The average speed displayed is based on the download speeds of at least 50% of customers at peak time (8pm to 10pm). Fibre/cable services at the postcode are subject to availability and may differ between properties within a postcode. Speeds can be affected by a range of technical and environmental factors. The speed at the property may be lower than that listed above. You can check the estimated speed and confirm availability to a property prior to purchasing on the broadband provider's website. Providers may increase charges. The information is provided and maintained by Decision Technologies Limited. **This is indicative only and based on a 2-person household with multiple devices and simultaneous usage. Broadband performance is affected by multiple factors including number of occupants and devices, simultaneous usage, router range etc. For more information speak to your broadband provider.
Map data ©OpenStreetMap contributors.









