
Dolydd Lane, Cefn Mawr

- PROPERTY TYPE
Cottage
- BEDROOMS
3
- BATHROOMS
1
- SIZE
Ask agent
- TENUREDescribes how you own a property. There are different types of tenure - freehold, leasehold, and commonhold.Read more about tenure in our glossary page.
Freehold
Key features
- Beautiful Detached Country Cottage
- Three Bedrooms and En suite
- Extensive Lawn Gardens and Grounds
- Ample Off Road Parking
- Three Outbuildings
- Full Of Original Character
- Tucked Away Location
- Well Maintained Throughout
Description
Directions - From our Oswestry office proceed out of the town on the Gobowen road. At the roundabout take the first left towards Wrexham. Proceed along to the next roundabout and take the third turning toward Wrexham. Follow this road along taking the second exit off the next roundabout towards Wrexham. Continue along for approximately 1 mile before turning off towards Llangollen. At the next roundabout take the first left towards Llangollen and at the next roundabout take the second exit towards Newbridge. Follow the road along passing through the village before turning right onto Cae Gwilym Lane. Follow the road along and turn left onto Dolydd Road. Take the first right and follow the driveway down to the property. Our for sale board will be found at the top of the drive.
Location - The property is set in a private position yet is within easy reach of every day amenities such as schools, public transport, public houses and good roada links. It is also just a short distance form the famous Aqueduct and UNESCO World Heritage Site and Ty Mawr country park that hosts various events throughout the year and is a great place for families and for walking. Llangollen is just a few minutes away by car as well as the coast roads leading to the North Wales coast. The road links also connect the home to Wrexham, Chester and Shrewsbury along with many airports and train stations.
Porch - The porch entrance has a part glazed door leading into the property and a quarry tiled decorative floor.
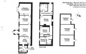
Living Room - 4.60m x 4.01m (15'1" x 13'1" ) - A lovely, welcoming reception room having pine flooring, a window to the front overlooking the gardens, painted exposed ceiling beams, and a striking focal stone fireplace with a raised slate hearth and an inset wood-burning stove, stairs leading to the first floor, radiator and doors leading to the . The room opens directly to the kitchen and the dining room.
Dining Room - 4.55m x 3.56m (14'11" x 11'8" ) - Another good sized reception room having a window to the front overlooking the gardens, focal fireplace with a brick arch surround, pine flooring, a radiator and a door leading through to the sitting room.
Sitting Room - 4.85m x 4.55m (15'10" x 14'11" ) - A generous yet cozy family room having exposed ceiling beams and a large inglenook fireplace with a stone surround, an old oak beam mantel and slate hearth. With a radiator and a bay window to the front and French doors that lead out to the front of the property letting in lots of natural light.
Kitchen/Breakfast Room - 4.60m x 4.01m (15'1" x 13'1" ) - The Kitchen is fitted with wall and base units with solid wood worktops and a matching dressing with glazed double display cabinet and internal lighting, a stainless steel sink with mixer tap, tiled flooring, a freestanding Zanussi electric cooker with stainless steel extractor fan, integrated shelving and inset lighting. There is plumbing for a dishwasher, a radiator, a window to the front overlooking the garden and a window to the side.
Utility Room - 2.49m x 2.01m (8'2" x 6'7" ) - The utility is fitted with a range of base units with modern work surfaces over, space and plumbing for a washing machine and fridge/freezer, built in cloaks cupboard, tiled floor and a stable-style rear door.
Cloakroom - The cloakroom has a low level w/c and corner wash hand basin, a small window to the front and tiled flooring.
To The First Floor - Stairs from the ground floor lead to the first floor landing with doors leading to all the rooms.
Bedroom One - 4.60m x 4.60m (15'1" x 15'1" ) - A good sized double bedroom having a window to the front overlooking the gardens, a window to the rear, radiator and access to the loft. A door leads through to the dressing area.
Ensuite Dressing Room - A very versatile space ideal for a number of uses having a triple wardrobe, a window to the side, dressing space and lots of additional storage. A door leads through to the en suite.
Ensuite Bathroom - The ensuite bathroom has part panelled walls and a panelled bath, a wash hand basin, low level w/c, wall lighting and a window to the front.
Bedroom Two - 3.71m x 2.95m (12'2" x 9'8" ) - The second good sized double bedroom has fitted storage cupboards, a radiator and a window to the front overlooking the garden.
Bedroom Three - 3.00m x 2.49m (9'10" x 8'2" ) - The third bedroom has a radiator and a window to the front overlooking the garden.
Shower Room - The shower room has part panelled walls, an aqua panelled shower cubicle with an electric shower, a low level w/c, a wash hand basin and a fitted wall mounted cupboard and vanity mirror.
To The Outside - The property is located in a truly tucked away position with a driveway that leads down through the woods to the property giving a real feel of seclusion and privacy. There is log storage and parking areas along the lane with plenty of parking and turning area at the bottom for a number of vehicles. The extensive grounds extend in total to around three acres with a large lawned area lying to the front of the home. Another fantastic feature of this property is the brook which runs along the boundary of the property adding to its serene location and the sound of running water in the distance. The garden also features various established plants and shrubs along with an ornamental pond and a selection of planted flower beds and bushes. A metal-framed greenhouse, vegetable and fruit patches and two sheds provide everything for a keen gardener to really enjoy. Across from the brook is a further plot of land that is planted and laid to woodland.
Driveway To The Property -
Gardens -
Additional Photo -
Outbuilding One - 5.36m x 4.11m (17'7" x 13'5" ) - The property also benefits from three adjoining outbuildings/ workshops providing great scope for hobbies or for keen gardeners needing storage.
Outbuilding Two - 5.36m x 4.11m (17'7" x 13'5" ) -
Outbuilding Three - 4.01m x 4.01m (13'1" x 13'1" ) -
The Bordering Stream -
Additional Photo -
Aerial Photograph -
To Book A Viewing - Viewing is strictly by appointment, please call our sales office on to arrange.
Tenure/Council Tax - We understand the property is freehold, although purchasers must make their own enquiries via their solicitor.
The Council tax is payable to Wrexham Country Council and we believe the property to be in Band E.
Hours Of Business - Our office is open:
Monday to Friday: 9.00am to 5.00pm
Saturday: 9.00am to 2.00pm
Money Laundering Regulations - Once an offer is accepted, the successful purchaser will be required to produce adequate identification to prove the identity of all named buyers within the terms of the Money Laundering Regulations. Appropriate examples include: Photo Identification such as Passport/Photographic Driving Licence and proof of residential address such as a recent utility bill or bank statement.
Additional Information - We would like to point out that all measurements, floor plans and photographs are for guidance purposes only (photographs may be taken with a wide angled/zoom lens), and dimensions, shapes and precise locations may differ to those set out in these sales particulars which are approximate and intended for guidance purposes only.
These particulars, whilst believed to be accurate are set out as a general outline only for guidance and do not constitute any part of an offer or contract. Intending purchasers should not rely on them as statements of representation of fact, but most satisfy themselves by inspection or otherwise as to their accuracy. No person in this firm's employment has the authority to make or give any representation or warranty in respect of the property.
Services - The agents have not tested the appliances listed in the particulars.
Town And Country Services - We offer a FREE valuation/market appraisal service from a trained representative with strong market knowledge and experience - We are a professional, independent company - We provide elegant, clear and concise brochures - Fully accompanied Viewings Available with regular viewing feedback - Full Colour Photography, including professional aerial photography when required - Full Colour Advertising - Eye catching For Sale Boards - Up-to-date buyer registration with a full property matching service - Sound Local Knowledge and Experience - State of the Art Technology - Motivated Professional Staff - All properties advertised on Zoopla, Onthemarket.com - VERY COMPETITIVE FEES FOR SELLING.
To Make An Offer - Town and Country recommend that a prospective buyer/tenant follows the guidance of the Property Ombudsman and undertakes a physical viewing of the property and does not solely rely on virtual/video information when making their decision. Town and Country also advise it is best practice to view a property in person before making an offer.
To make an offer, please call our sales office on and speak to a member of the sales team.
Brochures
Dolydd Lane, Cefn MawrBrochure- COUNCIL TAXA payment made to your local authority in order to pay for local services like schools, libraries, and refuse collection. The amount you pay depends on the value of the property.Read more about council Tax in our glossary page.
- Ask agent
- PARKINGDetails of how and where vehicles can be parked, and any associated costs.Read more about parking in our glossary page.
- Yes
- GARDENA property has access to an outdoor space, which could be private or shared.
- Yes
- ACCESSIBILITYHow a property has been adapted to meet the needs of vulnerable or disabled individuals.Read more about accessibility in our glossary page.
- Ask agent
Dolydd Lane, Cefn Mawr
Add an important place to see how long it'd take to get there from our property listings.
__mins driving to your place
Get an instant, personalised result:
- Show sellers you’re serious
- Secure viewings faster with agents
- No impact on your credit score


Your mortgage
Notes
Staying secure when looking for property
Ensure you're up to date with our latest advice on how to avoid fraud or scams when looking for property online.
Visit our security centre to find out moreDisclaimer - Property reference 34052232. The information displayed about this property comprises a property advertisement. Rightmove.co.uk makes no warranty as to the accuracy or completeness of the advertisement or any linked or associated information, and Rightmove has no control over the content. This property advertisement does not constitute property particulars. The information is provided and maintained by Town & Country Property Services, Oswestry. Please contact the selling agent or developer directly to obtain any information which may be available under the terms of The Energy Performance of Buildings (Certificates and Inspections) (England and Wales) Regulations 2007 or the Home Report if in relation to a residential property in Scotland.
*This is the average speed from the provider with the fastest broadband package available at this postcode. The average speed displayed is based on the download speeds of at least 50% of customers at peak time (8pm to 10pm). Fibre/cable services at the postcode are subject to availability and may differ between properties within a postcode. Speeds can be affected by a range of technical and environmental factors. The speed at the property may be lower than that listed above. You can check the estimated speed and confirm availability to a property prior to purchasing on the broadband provider's website. Providers may increase charges. The information is provided and maintained by Decision Technologies Limited. **This is indicative only and based on a 2-person household with multiple devices and simultaneous usage. Broadband performance is affected by multiple factors including number of occupants and devices, simultaneous usage, router range etc. For more information speak to your broadband provider.
Map data ©OpenStreetMap contributors.





