Park Lane, Carshalton

- PROPERTY TYPE
Semi-Detached
- BEDROOMS
4
- BATHROOMS
1
- SIZE
1,351 sq ft
126 sq m
- TENUREDescribes how you own a property. There are different types of tenure - freehold, leasehold, and commonhold.Read more about tenure in our glossary page.
Freehold
Key features
- MARKETED BY PAUL GRAHAM
- Edwardian Semi-Detached House
- Huge Plot, With Lots Of Potential To Develop STPP
- Planning Permission Granted (DM2024/01322)
- Excellent Condition Throughout
- Carshalton Village Location
- Walking Distance To Carshalton Train Station
- Close to Good Local Schools
- Four Bedrooms
Description
Upstairs provides four well-proportioned bedrooms and a family bathroom, with one of the rear bedrooms benefiting from its own private balcony overlooking the garden. Planning permission has been granted (DM2024/01322) for a double storey side extension, loft conversion and rear extension to create two large three-bedroom flats. Given the scale of the approval, this could equally be amended (STPP) to create a substantial, significantly larger family home. The sizeable plot, particularly the wide side space, offers exceptional scope for development subject to the necessary consents.
Park Lane is perfectly positioned at the Carshalton Village end of the road, placing you just moments from the heart of the village with its charming ponds, independent shops, cafés and restaurants. The property is within walking distance of Carshalton Station, offering convenient links into London, making it ideal for commuters.
The area is well regarded for its strong sense of community and access to highly rated local schools, along with a range of green open spaces nearby. This is a rare opportunity to acquire a character home with significant future potential in one of Carshalton's most desirable locations.
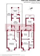
ENTRANCE HALL
RECEPTION ROOM 12' 9" x 11' 11" (3.89m x 3.63m)
KITCHEN 12' 4" x 10' 2" (3.76m x 3.1m)
WC
FAMILY / DINNING ROOM 16' 9" x 9' 11" (5.11m x 3.02m)
UTILITY SPACE 9' 11" x 4' 0" (3.02m x 1.22m)
CONSERVATORY 9' 4" x 9' 2" (2.84m x 2.79m)
GARDEN 76' 8" x 28' 7" (23.37m x 8.71m)
LANDING
BEDROOM 1 14' 9" x 10' 1" (4.5m x 3.07m)
BEDROOM 2 11' 9" x 10' 4" (3.58m x 3.15m)
BEDROOM 3 9' 11" x 9' 7" (3.02m x 2.92m)
BALCONY
BEDROOM 4 8' 1" x 6' 5" (2.46m x 1.96m)
BATHROOM
OFF ROAD PARKING
LARGE PLOT
PLANNING PERMISSION APPROVED
Brochures
4 page Portrait B...- COUNCIL TAXA payment made to your local authority in order to pay for local services like schools, libraries, and refuse collection. The amount you pay depends on the value of the property.Read more about council Tax in our glossary page.
- Band: D
- PARKINGDetails of how and where vehicles can be parked, and any associated costs.Read more about parking in our glossary page.
- Off street
- GARDENA property has access to an outdoor space, which could be private or shared.
- Yes
- ACCESSIBILITYHow a property has been adapted to meet the needs of vulnerable or disabled individuals.Read more about accessibility in our glossary page.
- Ask agent
Park Lane, Carshalton
Add an important place to see how long it'd take to get there from our property listings.
__mins driving to your place
Get an instant, personalised result:
- Show sellers you’re serious
- Secure viewings faster with agents
- No impact on your credit score
Your mortgage
Notes
Staying secure when looking for property
Ensure you're up to date with our latest advice on how to avoid fraud or scams when looking for property online.
Visit our security centre to find out moreDisclaimer - Property reference 100773016567. The information displayed about this property comprises a property advertisement. Rightmove.co.uk makes no warranty as to the accuracy or completeness of the advertisement or any linked or associated information, and Rightmove has no control over the content. This property advertisement does not constitute property particulars. The information is provided and maintained by Paul Graham, Carshalton. Please contact the selling agent or developer directly to obtain any information which may be available under the terms of The Energy Performance of Buildings (Certificates and Inspections) (England and Wales) Regulations 2007 or the Home Report if in relation to a residential property in Scotland.
*This is the average speed from the provider with the fastest broadband package available at this postcode. The average speed displayed is based on the download speeds of at least 50% of customers at peak time (8pm to 10pm). Fibre/cable services at the postcode are subject to availability and may differ between properties within a postcode. Speeds can be affected by a range of technical and environmental factors. The speed at the property may be lower than that listed above. You can check the estimated speed and confirm availability to a property prior to purchasing on the broadband provider's website. Providers may increase charges. The information is provided and maintained by Decision Technologies Limited. **This is indicative only and based on a 2-person household with multiple devices and simultaneous usage. Broadband performance is affected by multiple factors including number of occupants and devices, simultaneous usage, router range etc. For more information speak to your broadband provider.
Map data ©OpenStreetMap contributors.








