
Hangar Drive, Tangmere, PO20

- PROPERTY TYPE
Semi-Detached
- BEDROOMS
3
- BATHROOMS
2
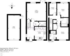
- SIZE
958 sq ft
89 sq m
- TENUREDescribes how you own a property. There are different types of tenure - freehold, leasehold, and commonhold.Read more about tenure in our glossary page.
Freehold
Key features
- South facing sitting room and rear garden
- Contemporary kitchen including integrated appliances
- Wide entrance hall
- Cloakroom
- Principal bedroom en-suite
- Two further bedrooms
- Family bathroom
- Private drive and garage
Description
A superbly presented three-bedroom semi-detached modern home, enjoying an open rear aspect over the former RAF Tangmere airfield, with a south-facing rear garden ideal for all-day sunshine. Built in 2018 by Miller Homes, the property is situated in a popular village location approximately four miles north-east of Chichester.
The accommodation is arranged over two floors and begins with a wide and welcoming entrance hall with cloakroom. To the rear, the south-facing sitting room features French doors opening directly onto the garden, creating a bright and inviting living space.
The fabulous modern kitchen is fitted with an extensive range of white-fronted cupboards and integrated appliances, including an electric oven, gas hob, cooker hood, fridge/freezer and dishwasher.
On the first floor are three bedrooms and a contemporary family bathroom. The principal bedroom benefits from an en-suite shower room, while bedrooms two and three enjoy an open rear aspect over the former airfield.
Outside, the property offers an open-plan front garden and a private driveway running along the side of the house, leading to a single garage at the rear. The south-facing “sun-trap” rear garden is laid mainly to lawn with a patio area, perfect for outdoor dining and relaxation.
Chichester District Council - 25/26 Tax Band D £2,360.15 EPC-B
Directions - From Chichester proceed east on the A27. At the Tangmere/Boxgrove roundabout take the third exit into Meadow Way (signposted Tangmere). Take the forth turning on the left into Hangar Drive, follow the road round to the left, passed the recreational play area and the property is a short distance on the right. What3words - booth.barman.dispenser
EPC Rating: D
Parking - Garage
Parking - Driveway
Brochures
Property Brochure- COUNCIL TAXA payment made to your local authority in order to pay for local services like schools, libraries, and refuse collection. The amount you pay depends on the value of the property.Read more about council Tax in our glossary page.
- Band: C
- PARKINGDetails of how and where vehicles can be parked, and any associated costs.Read more about parking in our glossary page.
- Garage,Driveway
- GARDENA property has access to an outdoor space, which could be private or shared.
- Private garden
- ACCESSIBILITYHow a property has been adapted to meet the needs of vulnerable or disabled individuals.Read more about accessibility in our glossary page.
- Ask agent
Energy performance certificate - ask agent
Hangar Drive, Tangmere, PO20
Add an important place to see how long it'd take to get there from our property listings.
__mins driving to your place
Get an instant, personalised result:
- Show sellers you’re serious
- Secure viewings faster with agents
- No impact on your credit score
Your mortgage
Notes
Staying secure when looking for property
Ensure you're up to date with our latest advice on how to avoid fraud or scams when looking for property online.
Visit our security centre to find out moreDisclaimer - Property reference 2052f864-fcc6-4473-a7ba-859e83767243. The information displayed about this property comprises a property advertisement. Rightmove.co.uk makes no warranty as to the accuracy or completeness of the advertisement or any linked or associated information, and Rightmove has no control over the content. This property advertisement does not constitute property particulars. The information is provided and maintained by Henry Adams, Chichester. Please contact the selling agent or developer directly to obtain any information which may be available under the terms of The Energy Performance of Buildings (Certificates and Inspections) (England and Wales) Regulations 2007 or the Home Report if in relation to a residential property in Scotland.
*This is the average speed from the provider with the fastest broadband package available at this postcode. The average speed displayed is based on the download speeds of at least 50% of customers at peak time (8pm to 10pm). Fibre/cable services at the postcode are subject to availability and may differ between properties within a postcode. Speeds can be affected by a range of technical and environmental factors. The speed at the property may be lower than that listed above. You can check the estimated speed and confirm availability to a property prior to purchasing on the broadband provider's website. Providers may increase charges. The information is provided and maintained by Decision Technologies Limited. **This is indicative only and based on a 2-person household with multiple devices and simultaneous usage. Broadband performance is affected by multiple factors including number of occupants and devices, simultaneous usage, router range etc. For more information speak to your broadband provider.
Map data ©OpenStreetMap contributors.








