
Ridge Road, N8

- PROPERTY TYPE
Maisonette
- BEDROOMS
3
- BATHROOMS
2
- SIZE
Ask agent
Key features
- Spacious and beautifully presented two/three-bedroom duplex maisonette
- Own private entrance, front garden and a designated section of the rear garden
- Reception room, well-appointed kitchen
- Versatile dining room/third bedroom
- Family bathroom and an additional shower room
- Benefits from lower ground cellar/storage rooms offering excellent scope for development, subject to the necessary consents (STPP)
- Short stroll to Harringay railway station
Description
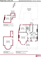
Occupying the ground floors, the accommodation comprises a bright and inviting reception room, well-appointed kitchen, versatile dining room/third bedroom, family bathroom and an additional shower room — providing both flexibility and convenience for modern living.
The property further benefits from lower ground cellar/storage rooms offering excellent scope for development, subject to the necessary consents (STPP), presenting an exciting opportunity to enhance and reconfigure.
Ideally located within easy reach of the vibrant cafés, restaurants and boutiques of Crouch End Broadway, and a short stroll to Harringay railway station, providing excellent transport links into the City and beyond.
Lease 125 years from 15/12/1986 = 85 years unexpired
Current Service/Maintenance Charge: £160 per quarter + share of building insurance each year (approx. £460) 35%
Ground Rent: Not applicable
Brochures
Ridge Road, N8- COUNCIL TAXA payment made to your local authority in order to pay for local services like schools, libraries, and refuse collection. The amount you pay depends on the value of the property.Read more about council Tax in our glossary page.
- Band: F
- PARKINGDetails of how and where vehicles can be parked, and any associated costs.Read more about parking in our glossary page.
- Ask agent
- GARDENA property has access to an outdoor space, which could be private or shared.
- Yes
- ACCESSIBILITYHow a property has been adapted to meet the needs of vulnerable or disabled individuals.Read more about accessibility in our glossary page.
- Ask agent
Ridge Road, N8
Add an important place to see how long it'd take to get there from our property listings.
__mins driving to your place
Get an instant, personalised result:
- Show sellers you’re serious
- Secure viewings faster with agents
- No impact on your credit score


Affordability
Notes
Staying secure when looking for property
Ensure you're up to date with our latest advice on how to avoid fraud or scams when looking for property online.
Visit our security centre to find out moreDisclaimer - Property reference 34484218. The information displayed about this property comprises a property advertisement. Rightmove.co.uk makes no warranty as to the accuracy or completeness of the advertisement or any linked or associated information, and Rightmove has no control over the content. This property advertisement does not constitute property particulars. The information is provided and maintained by Castles Estate Agents, Crouch End. Please contact the selling agent or developer directly to obtain any information which may be available under the terms of The Energy Performance of Buildings (Certificates and Inspections) (England and Wales) Regulations 2007 or the Home Report if in relation to a residential property in Scotland.
*This is the average speed from the provider with the fastest broadband package available at this postcode. The average speed displayed is based on the download speeds of at least 50% of customers at peak time (8pm to 10pm). Fibre/cable services at the postcode are subject to availability and may differ between properties within a postcode. Speeds can be affected by a range of technical and environmental factors. The speed at the property may be lower than that listed above. You can check the estimated speed and confirm availability to a property prior to purchasing on the broadband provider's website. Providers may increase charges. The information is provided and maintained by Decision Technologies Limited. **This is indicative only and based on a 2-person household with multiple devices and simultaneous usage. Broadband performance is affected by multiple factors including number of occupants and devices, simultaneous usage, router range etc. For more information speak to your broadband provider.
Map data ©OpenStreetMap contributors.





