
Spital Bridge,Whitby,YO22 4EF

- PROPERTY TYPE
Town House
- BEDROOMS
3
- BATHROOMS
3
- SIZE
Ask agent
Key features
- Beautiful three bedroom townhouse
- Offering generous and well-balanced accommodation
- Bright and comfortable living room with a feature living flame gas fire
- Spacious principal bedroom, together with a stylish en-suite bathroom
- A small, private development with a strong sense of quality and calm
- Successful holiday letting property through Shoreline Cottages
Description
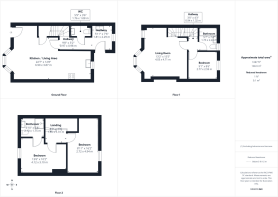
Arranged over three floors, the property offers generous and well-balanced accommodation, combining elegant proportions with practical modern living. The ground floor is centred around a spacious open-plan kitchen and dining area, fitted with quality cabinetry and integrated appliances, creating a welcoming space for both everyday living and entertaining. A convenient cloakroom and utility room completes this level.
The first floor features a bright and comfortable living room with a feature living flame gas fire, enhanced by large windows that allow natural light to flood the space, alongside a well-proportioned bedroom and contemporary bathroom. The upper floor provides two further bedrooms, including a particularly spacious principal bedroom, together with a stylish en-suite bathroom, thoughtfully designed to maximise both comfort and functionality.
Externally, residents enjoy access to well-maintained communal gardens and outdoor seating areas, offering a peaceful setting rarely found so close to the heart of town. The property further benefits from an allocated parking space, and gated seating areas to both the front and the rear adding to the overall charm of this property.
Whitehall Gardens is a small, private development with a strong sense of quality and calm. This property represents an excellent opportunity to acquire a home that combines character, craftsmanship, and contemporary living in an enviable setting. This townhouse is currently run as a successful holiday letting property through Shoreline Cottages and this could continue to the new buyers or equally become a permanent home.
Brochures
Brochure 1- COUNCIL TAXA payment made to your local authority in order to pay for local services like schools, libraries, and refuse collection. The amount you pay depends on the value of the property.Read more about council Tax in our glossary page.
- Ask agent
- PARKINGDetails of how and where vehicles can be parked, and any associated costs.Read more about parking in our glossary page.
- Allocated
- GARDENA property has access to an outdoor space, which could be private or shared.
- Patio,Communal garden
- ACCESSIBILITYHow a property has been adapted to meet the needs of vulnerable or disabled individuals.Read more about accessibility in our glossary page.
- No wheelchair access
Energy performance certificate - ask agent
Spital Bridge,Whitby,YO22 4EF
Add an important place to see how long it'd take to get there from our property listings.
__mins driving to your place
Get an instant, personalised result:
- Show sellers you’re serious
- Secure viewings faster with agents
- No impact on your credit score
Your mortgage
Notes
Staying secure when looking for property
Ensure you're up to date with our latest advice on how to avoid fraud or scams when looking for property online.
Visit our security centre to find out moreDisclaimer - Property reference S1629082. The information displayed about this property comprises a property advertisement. Rightmove.co.uk makes no warranty as to the accuracy or completeness of the advertisement or any linked or associated information, and Rightmove has no control over the content. This property advertisement does not constitute property particulars. The information is provided and maintained by Henderson Property Services, Whitby. Please contact the selling agent or developer directly to obtain any information which may be available under the terms of The Energy Performance of Buildings (Certificates and Inspections) (England and Wales) Regulations 2007 or the Home Report if in relation to a residential property in Scotland.
*This is the average speed from the provider with the fastest broadband package available at this postcode. The average speed displayed is based on the download speeds of at least 50% of customers at peak time (8pm to 10pm). Fibre/cable services at the postcode are subject to availability and may differ between properties within a postcode. Speeds can be affected by a range of technical and environmental factors. The speed at the property may be lower than that listed above. You can check the estimated speed and confirm availability to a property prior to purchasing on the broadband provider's website. Providers may increase charges. The information is provided and maintained by Decision Technologies Limited. **This is indicative only and based on a 2-person household with multiple devices and simultaneous usage. Broadband performance is affected by multiple factors including number of occupants and devices, simultaneous usage, router range etc. For more information speak to your broadband provider.
Map data ©OpenStreetMap contributors.






