Unit 4, Holton Business Park, Holton St Mary
- SIZE AVAILABLE
1,256 sq ft
117 sq m
- SECTOR
Office to lease
Lease details
- Lease available date:
- Ask agent
Description
LOCATION
Holton Business Park is located approximately 1-mile from the A12 Junction 31 Holton St Mary/East Bergholt, providing easy access to Ipswich (9 miles to the north) and Colchester (10 miles to the south). The Business Park is situated off a private drive from the B1070 Hadleigh Road. The Park is well-landscaped and surrounded by farmland. Its close proximity to the A12 trunk road also provides good road communications with the A14, M25, A120 and M11 linking the area with the wider motorway network and making it an excellent strategic location for both local and regional businesses alike.
DESCRIPTION
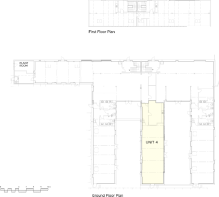
Holton Business Park comprises a high-quality office conversion. The suite is self-contained and arranged over the ground floor extending to approximately 1,256 sq. ft. The accommodation is accessed via a courtyard entrance, adjacent to the main parking area. The office benefits from Kitchen and W/C facilities, ample natural light and air conditioning.
The property benefits from E Class usage.
Key features:
- High quality office conversion in rural environment
- Strategically located 1 mile from the A12 junction
- 2,850 sqft Modern, flexible open-plan layout
- Ample car parking spaces
- Available to let by way of a new effective
- FRI lease at £18,000 pax plus VAT
ACCOMMODATION
Approximate Net Internal Areas:
Ground Floor : 1,256 sqft.
SERVICES
We understand that all main services are available. We recommend that all interested parties check with the relevant statutory authorities as to the existence, adequacy or otherwise of those services for their purposes. We understand that the property has the benefit of fibre optic cabling.
TERMS
The property is available To Let by way of a new Full Repairing and Insuring Lease, at a rent of £18,000 per annum exclusive, terms to be agreed.
OUTGOINGS
As of the 1st of April 2026, the Rateable Value is increasing to £17,750 pax.
Interested parties should make their own enquiries with Babergh District Council Rates Department.
VAT
The property is elected for VAT.
LEGAL COSTS
Each party will be responsible for their own legal costs incurred in the transaction.
SERVICE CHARGE
A service charge is payable to cover maintenance of the landscaped areas, heating etc. Estimated costs are circa £1 per sqft
PARKING NOTES
Ample Parking.
OTHER
Anti Money Laundering Regulations:
In accordance with Anti-Money Laundering Regulations, the agents will require verification of the prospective purchaser´s identity, residence, and source of funds prior to instructing solicitors.
REF: C4221
VIEWING
Strictly by prior appointment with the sole agents Nicholas Percival.
FAO: Max Copeland
Unit 4, Holton Business Park, Holton St Mary
NEAREST STATIONS
Distances are straight line measurements from the centre of the postcode- Manningtree Station3.8 miles
- Mistley Station5.1 miles
Notes
Disclaimer - Property reference 101551004159. The information displayed about this property comprises a property advertisement. Rightmove.co.uk makes no warranty as to the accuracy or completeness of the advertisement or any linked or associated information, and Rightmove has no control over the content. This property advertisement does not constitute property particulars. The information is provided and maintained by Nicholas Percival Commercial, Colchester. Please contact the selling agent or developer directly to obtain any information which may be available under the terms of The Energy Performance of Buildings (Certificates and Inspections) (England and Wales) Regulations 2007 or the Home Report if in relation to a residential property in Scotland.
Map data ©OpenStreetMap contributors.





