Henwood Green Road, Pembury, TN2
- PROPERTY TYPE
Land
- SIZE
11,761 sq ft
1,093 sq m
Key features
- Planning Permission Granted
- Far Reaching Views
- 0.27 Acres
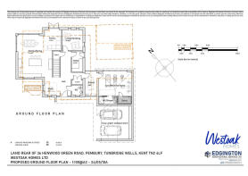
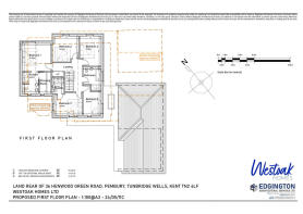
- Total GIA is 2950 sqft.
- Designed With Sustainability In Mind
- Services Installed (subject to final connection)
Description
Pembury offers a range of local amenities, including a primary school, village shops, pubs, and healthcare services, notably the Tunbridge Wells Hospital. The village is well connected by road, situated near the A21, which provides direct access to the M25 and coastal routes. While the village itself does not have a railway station, nearby Tunbridge Wells and Tonbridge stations offer regular train services to London and other destinations.
Planning application Reference : 25/02165/FULL
Terms
Our basic terms of business are as follows unless specifically agreed between the parties prior to exchange of contracts.
On agreeing to purchase land and/or property the Buyer agrees to retain our land departments’ services at a basic fee of 2% plus VAT at the prevailing gross rate of the final acquisition price, subject to a minimum fee of £20,000 plus VAT, billed on exchange, settled immediately upon legal completion. This agreement applies to any associated company or business, including subsidiaries, company mergers or new company formations (SPV's).
In addition, the above will apply for any contract or option agreements assigned to a third party. All related resales of residential property units, following an acquisition of a plot of land or property purchased from Stephen James Residential, be given to our New Homes team on a sole selling rights basis for a period of at least 24 weeks. New homes commission fees will be at a rate of 2% plus VAT, unless agreed prior. Fees will be billed upon exchange and immediately settled upon completion.
The basic fee is calculated on the basis that we are instructed by the buyer to act on resale of residential property units that are built on the land during the resales Agency Period.
If within two years of completion the acquired land and/or property is “sold on” to another company, sister company or internally transferred prior to any resales Agency Period, then the buyer will be responsible for the payment of an additional land fee set by the lands’ resale/purchase price that will be calculated at a rate of 2% plus VAT of the resale/purchase price agreed - subject to our minimum fee as above.
If a site is purchased where the buyer will not be developing to sell the new build units, then SJR will be entitled to a fee of 3% plus VAT, subject to a minimum fee of £30,000. This fee however, does not apply to an end user self build project.
Fees are subject to VAT only where applicable. The underlying agency fee is due in all instances, irrespective of the VAT status of the invoicing entity. By purchasing this land and/or property you are agreeing to our terms of business.
These particulars created by Stephen James Residential Ltd are for guidance only and do not constitute part of any offer or contract. All measurements, descriptions and distances are approximate and should not be relied upon; prospective purchasers must satisfy themselves of their accuracy.
Henwood Green Road, Pembury, TN2
NEAREST STATIONS
Distances are straight line measurements from the centre of the postcode- High Brooms Station2.4 miles
- Tunbridge Wells Station3.0 miles
- Frant Station3.1 miles
Notes
Disclaimer - Property reference RX743521. The information displayed about this property comprises a property advertisement. Rightmove.co.uk makes no warranty as to the accuracy or completeness of the advertisement or any linked or associated information, and Rightmove has no control over the content. This property advertisement does not constitute property particulars. The information is provided and maintained by Stephen James Residential Ltd, Covering Kent & East Sussex. Please contact the selling agent or developer directly to obtain any information which may be available under the terms of The Energy Performance of Buildings (Certificates and Inspections) (England and Wales) Regulations 2007 or the Home Report if in relation to a residential property in Scotland.
Map data ©OpenStreetMap contributors.






