Plot 51, The Meadows, High Leven, TS15

- PROPERTY TYPE
Detached
- BEDROOMS
5
- BATHROOMS
4
- SIZE
Ask agent
- TENUREDescribes how you own a property. There are different types of tenure - freehold, leasehold, and commonhold.Read more about tenure in our glossary page.
Freehold
Description
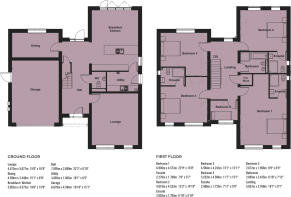
Plot 51 - South Facing Gardens
The Hilton is a beautiful 5 bedroom Detached home which offers generous living and communal family space, along with a separate study, ideal for home working, cloakroom and utility.
The upper floor comprises five spacious bedrooms, three of which are en-suite
The Meadows nestles alongside Maltby Cricket Club on the A1044 and is little more than a well-timed cover drive from the centre of Yarm and its Georgian high street, brimming with quaint independent shops, bars and restaurants. Even closer to home, a Co-Op caters for all those everyday essentials.
Head north for less than two miles and you will find the bustling town of Ingleby Barwick with a full range of amenities including several primary schools, shops, a supermarket, doctors, dentists, an excellent library and a choice of pubs.
For fitness fanatics IB Leisure boasts two swimming pools, a modern gym and three purpose built fitness class studios. Meanwhile Ingleby Barwick Golf Academy is a nine hole golf course and two tier driving range, perfect for getting your game into shape. Junior footballers can kick off their careers at Thornaby and Ingleby Barwick Football Club (TIBS FC) which runs 20 teams for children aged 6 to 17 and if that doesn’t tire the youngest ones out then the play area at Romano Park may well do the trick.
If you are a walker or a cyclist there is an abundance of open countryside and riverside tracks waiting to be explored.
Travelling and commuting is another major advantage for residents of The Meadows. The A19 is within easy reach and Yarm train station with direct services to York, Leeds and Northallerton is a little over two miles away. Teesside International Airport which operates flights to a number of UK and European destinations is just eight miles to the west.
The Cleveland Hills provide a fitting backdrop to The Meadows and the proximity to the River Tees only serves to enhance the development’s appeal.
IMPORTANT NOTE TO POTENTIAL PURCHASERS & TENANTS:
We endeavour to make our particulars accurate and reliable, however, they do not constitute or form part of an offer or any contract and none is to be relied upon as statements of representation or fact. The services, systems and appliances listed in this specification have not been tested by us and no guarantee as to their operating ability or efficiency is given. All photographs and measurements have been taken as a guide only and are not precise. Floor plans where included are not to scale and accuracy is not guaranteed. If you require clarification or further information on any points, please contact us, especially if you are traveling some distance to view. POTENTIAL PURCHASERS: Fixtures and fittings other than those mentioned are to be agreed with the seller. POTENTIAL TENANTS: All properties are available for a minimum length of time, with the exception of short term accommodation. Please contact the branch for details. A security deposit of at least one month’s rent is required. Rent is to be paid one month in advance. It is the tenant’s responsibility to insure any personal possessions. Payment of all utilities including water rates or metered supply and Council Tax is the responsibility of the tenant in most cases.
NHO260042/2
- COUNCIL TAXA payment made to your local authority in order to pay for local services like schools, libraries, and refuse collection. The amount you pay depends on the value of the property.Read more about council Tax in our glossary page.
- Band: TBC
- PARKINGDetails of how and where vehicles can be parked, and any associated costs.Read more about parking in our glossary page.
- Yes
- GARDENA property has access to an outdoor space, which could be private or shared.
- Yes
- ACCESSIBILITYHow a property has been adapted to meet the needs of vulnerable or disabled individuals.Read more about accessibility in our glossary page.
- Ask agent
Energy performance certificate - ask agent
Plot 51, The Meadows, High Leven, TS15
Add an important place to see how long it'd take to get there from our property listings.
__mins driving to your place
Get an instant, personalised result:
- Show sellers you’re serious
- Secure viewings faster with agents
- No impact on your credit score
Your mortgage
Notes
Staying secure when looking for property
Ensure you're up to date with our latest advice on how to avoid fraud or scams when looking for property online.
Visit our security centre to find out moreDisclaimer - Property reference NHO260042. The information displayed about this property comprises a property advertisement. Rightmove.co.uk makes no warranty as to the accuracy or completeness of the advertisement or any linked or associated information, and Rightmove has no control over the content. This property advertisement does not constitute property particulars. The information is provided and maintained by LSL Land & New Homes, New Homes North. Please contact the selling agent or developer directly to obtain any information which may be available under the terms of The Energy Performance of Buildings (Certificates and Inspections) (England and Wales) Regulations 2007 or the Home Report if in relation to a residential property in Scotland.
*This is the average speed from the provider with the fastest broadband package available at this postcode. The average speed displayed is based on the download speeds of at least 50% of customers at peak time (8pm to 10pm). Fibre/cable services at the postcode are subject to availability and may differ between properties within a postcode. Speeds can be affected by a range of technical and environmental factors. The speed at the property may be lower than that listed above. You can check the estimated speed and confirm availability to a property prior to purchasing on the broadband provider's website. Providers may increase charges. The information is provided and maintained by Decision Technologies Limited. **This is indicative only and based on a 2-person household with multiple devices and simultaneous usage. Broadband performance is affected by multiple factors including number of occupants and devices, simultaneous usage, router range etc. For more information speak to your broadband provider.
Map data ©OpenStreetMap contributors.




