Bedford Wing, Kingsley Avenue, Fairfield, SG5

- PROPERTY TYPE
Apartment
- BEDROOMS
2
- BATHROOMS
1
- SIZE
Ask agent
Key features
- Immacuately presented throughout - Just move in
- New main bathroom and cloakroom in January 2025
- New integrated washing machine in January 2026
- New hallway flooring in January 2025
- New front door
- Private front door entrance
- Surrounded by acres of beautiful well maintained countryside walks
- Allocated & visitors parking available
- Located within 'Fairfield' is a Tesco's convenience store, Bannatyne's Gym and Spa, along with Fairfield Park Cricket & Bowls Club
- 17ft living / dining room with a bay window
Description
Situated in the prestigious Fairfield Hall, this immaculately presented two double bedroom apartment has been beautifully updated by the current owners. It offers a spacious 17ft living/dining room with an attractive bay window, a newly fitted main bathroom and cloakroom, and benefits from a private entrance door. The property further includes one allocated parking space and is ideally located within walking distance of local amenities, Bannatyne’s Gym and Spa, and scenic countryside walks.
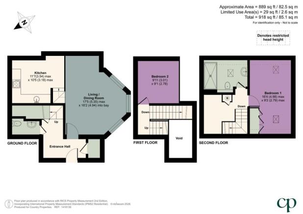
Entrance Hall
New entrance door. Newly fitted Karndean herringbone style flooring. Door into Living room and Cloakroom. Door to storage cupboard. Carpeted stairs rising to first floor with understairs storage cupboard.
Living/ Dining Room
17' 5" max x 16' 2" into bay (5.35m max x 4.94m into bay) Bay windows to side. Fitted carpet. Three radiators. Steps down to Kitchen area enclosed by glass banister.
Kitchen
11' 7" max x 10' 5" max (3.54m max x 3.18m max) A range of wall and base units with worksurfaces over. Inset stainless steel sink with swan neck mixer tap over. Tiled splashbacks. Integrated oven and gas hob with stainless steel extractor fan over. Space for fridge/freezer. Integrated dishwasher. Newly installed integrated washing machine. Tiled flooring. Radiator.
Cloakroom
Newly re-fitted cloakroom with vanity wash hand basin and low level WC. Heated towel rail. Part tiled walls. Karndean herringbone style flooring.
Landing
Door to Bedroom Two. Carpeted stairs rising to second floor.
Bedroom Two
9' 11" x 9' 1" (3.01m x 2.78m) Mezzanine bedroom with fitted carpet. Radiator. Fitted shutters.
Second Floor Landing
Airing cupboard housing a boiler. Door to Bedroom One and Bathroom.
Bedroom One
16' 4" max x 9' 2" max (4.98m max x 2.79m max) Master bedroom with Velux windows to both sides. Build in wardrobes. Fitted carpet. Radiator.
Bathroom
Newly re-fitted bathroom suite comprising vanity wash hand basin, low level WC and fully tiled double shower cubicle. Heated towel rail. Part tiled walls. Tiled flooring. Velux window to side.
Communal gardens and allocated parking space
Outside, the apartment benefits from the extensive communal grounds and is a short walk from the Bannatyne Health Club and Spa and The Orchard Restaurant. The apartment comes with an allocated parking space and there is additional visitor parking available.
Fairfield Hall
Fairfield is situated on the edge of the Hertfordshire and Bedfordshire border, within 100's of acres of stunning parkland. There is excellent access to the A1 and nearby train stations at Letchworth and Arlesey, providing trains to Kings Cross / St Pancras in less than 40 minutes. With a well regarded lower school, a Tesco convenience store, hairdressers, community hall, garden centre, number of playgrounds, many beautiful countryside walks, nearby lagoons, Bannatyne's gym, Cricket and Bowls Club, Fairfield offers something for everyone. There is a thriving community within Fairfield with many local community events and gatherings to enjoy.
Agents Note
Length of lease: 999 years from 1 January 2003
The vendor informs us that the current Ground rent is £150 p.a.
Annual service charge is £238 p.m.
We advise any buyer to check this information with their legal representative prior to exchange of contracts.
Brochures
Brochure 1Brochure 2- COUNCIL TAXA payment made to your local authority in order to pay for local services like schools, libraries, and refuse collection. The amount you pay depends on the value of the property.Read more about council Tax in our glossary page.
- Band: C
- PARKINGDetails of how and where vehicles can be parked, and any associated costs.Read more about parking in our glossary page.
- Yes
- GARDENA property has access to an outdoor space, which could be private or shared.
- Yes
- ACCESSIBILITYHow a property has been adapted to meet the needs of vulnerable or disabled individuals.Read more about accessibility in our glossary page.
- Ask agent
Energy performance certificate - ask agent
Bedford Wing, Kingsley Avenue, Fairfield, SG5
Add an important place to see how long it'd take to get there from our property listings.
__mins driving to your place
Get an instant, personalised result:
- Show sellers you’re serious
- Secure viewings faster with agents
- No impact on your credit score
Your mortgage
Notes
Staying secure when looking for property
Ensure you're up to date with our latest advice on how to avoid fraud or scams when looking for property online.
Visit our security centre to find out moreDisclaimer - Property reference 30004459. The information displayed about this property comprises a property advertisement. Rightmove.co.uk makes no warranty as to the accuracy or completeness of the advertisement or any linked or associated information, and Rightmove has no control over the content. This property advertisement does not constitute property particulars. The information is provided and maintained by Country Properties, Stotfold. Please contact the selling agent or developer directly to obtain any information which may be available under the terms of The Energy Performance of Buildings (Certificates and Inspections) (England and Wales) Regulations 2007 or the Home Report if in relation to a residential property in Scotland.
*This is the average speed from the provider with the fastest broadband package available at this postcode. The average speed displayed is based on the download speeds of at least 50% of customers at peak time (8pm to 10pm). Fibre/cable services at the postcode are subject to availability and may differ between properties within a postcode. Speeds can be affected by a range of technical and environmental factors. The speed at the property may be lower than that listed above. You can check the estimated speed and confirm availability to a property prior to purchasing on the broadband provider's website. Providers may increase charges. The information is provided and maintained by Decision Technologies Limited. **This is indicative only and based on a 2-person household with multiple devices and simultaneous usage. Broadband performance is affected by multiple factors including number of occupants and devices, simultaneous usage, router range etc. For more information speak to your broadband provider.
Map data ©OpenStreetMap contributors.





