Newhaven Road, South Norwood, LONDON
- PROPERTY TYPE
Land
- SIZE
Ask agent
Key features
- AUCTION SALE
- 10 March 2026
- EPC Rating - n/a
- No viewings.
Description
SUMMARY
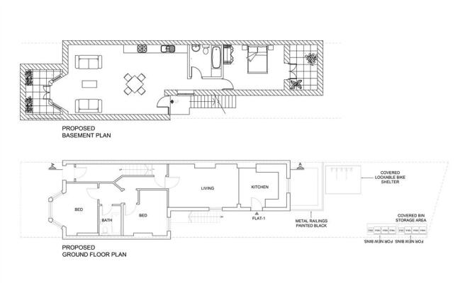
AUCTION SALE 10 March 2026 - Long leasehold basement beneath existing terraced house
Planning permission to create a one bedroom self-contained flat
TO SELL YOUR PROPERTY IN OUR NEXT AUCTION CALL US NOW
DESCRIPTION
Long leasehold basement beneath existing terraced house
Planning permission to create a one bedroom self-contained flat
Location:
The property is situated on Newhaven Road. Public transport links include Selhurst mainline rail station together with a network of local bus services serving the surrounding vicinity. Road links include the A213 and A214 which serve the wider South Norwood area. Shopping amenities can be found locally within South Norwood High Street with an extensive range of shops, bars and restaurants being found in Central Croydon. Recreational pursuits can be found locally at the open spaces of Heavers Meadow and South Norwood Country Park.
Description:
A long leasehold basement under existing terraced house which has planning in place to create a new one bedroom self-contained lower ground floor flat beneath existing mid terrace house.
Proposed accommodation:
One bedroom, open plan living room/kitchen, bathroom/WC
Lease:
Held on a long lease for a term of 125 years from 30th July 2015 (Thus having approximately 114 years remaining).
Planning:
Planning permission was granted by Croydon Council on 3rd October 2025 under planning application reference 25/02197/FUL for excavation under existing dwelling to provide one bedroom flat at basement level and construction of lightwells.
Important Notice:
For each Lot, a contract documentation fee of £1,800 (inclusive of VAT) is payable to Barnard Marcus Auctions by the buyer. The seller may charge additional fees payable upon completion. If applicable, such fees are detailed within the Special Conditions of Sale. Buyers are deemed to bid in full knowledge of this.
The Guide Price quoted must not be relied upon by prospective purchasers as a valuation or assessment of value of the property. It is intended to provide purchasers with an indication of the region at which the reserve may be set at the time of going to press. The guide price may be subject to variation and interested parties are advised to make regular checks for variations and should be aware that the reserve price may be either below or above the quoted guide price.
Prospective purchasers should also be aware that the eventual sale price may be above or below the guide level dependent upon competition, and should therefore not presume the guide to be indicative of the final expected sale price or the price the property is available at.
When setting the guide price, the auctioneers have given consideration to the seller’s instructions in respect of their indicated reserve price at the time of instruction. The reserve price, (the level below which the property will not be sold), remains confidential between the seller and the auctioneer. The guide price therefore, is intended to indicate the region at which the reserve price is intended to be set. The seller will confirm their final reserve price close to the auction date and if appropriate the auctioneers may adjust the guide price to reflect this.
Whilst Barnard Marcus make every effort to ensure the safety and security of viewers at properties, we have not carried out a detailed Health & Safety inspection of properties in our auctions and cannot therefore guarantee the safety and security of viewers.
Prospective purchasers and bidders attend properties entirely at their own risk. Particular care should be taken when accessing cellars, attics, exterior areas and outbuildings and boundaries. All non-conducted inspections of vacant sites should be made in daylight hours only and entry into such sites is entirely at the viewers risk.
1. MONEY LAUNDERING REGULATIONS: Intending purchasers will be asked to produce identification documentation at a later stage and we would ask for your co-operation in order that there will be no delay in agreeing the sale.
2. General: While we endeavour to make our sales particulars fair, accurate and reliable, they are only a general guide to the property and, accordingly, if there is any point which is of particular importance to you, please contact the office and we will be pleased to check the position for you, especially if you are contemplating travelling some distance to view the property.
3. Photographs and Measurements: Some images may have been taken by a wide angled lens camera. These approximate room sizes are only intended as general guidance. You must verify the dimensions carefully before ordering carpets or any built-in furniture.
4. Services: Please note we have not tested the services or any of the equipment or appliances in this property, accordingly we strongly advise prospective buyers to commission their own survey or service reports before finalising their offer to purchase.
5. THESE PARTICULARS ARE ISSUED IN GOOD FAITH BUT DO NOT CONSTITUTE REPRESENTATIONS OF FACT OR FORM PART OF ANY OFFER OR CONTRACT. THE MATTERS REFERRED TO IN THESE PARTICULARS SHOULD BE INDEPENDENTLY VERIFIED BY PROSPECTIVE BUYERS OR TENANTS. NEITHER SEQUENCE (UK) LIMITED NOR ANY OF ITS EMPLOYEES OR AGENTS HAS ANY AUTHORITY TO MAKE OR GIVE ANY REPRESENTATION OR WARRANTY WHATEVER IN RELATION TO THIS PROPERTY.
1. MONEY LAUNDERING REGULATIONS: Intending purchasers will be asked to produce identification documentation at a later stage and we would ask for your co-operation in order that there will be no delay in agreeing the sale.
2. General: While we endeavour to make our sales particulars fair, accurate and reliable, they are only a general guide to the property and, accordingly, if there is any point which is of particular importance to you, please contact the office and we will be pleased to check the position for you, especially if you are contemplating travelling some distance to view the property.
3. Photographs and Measurements: Some images may have been taken by a wide angled lens camera. These approximate room sizes are only intended as general guidance. You must verify the dimensions carefully before ordering carpets or any built-in furniture.
4. Services: Please note we have not tested the services or any of the equipment or appliances in this property, accordingly we strongly advise prospective buyers to commission their own survey or service reports before finalising their offer to purchase.
5. THESE PARTICULARS ARE ISSUED IN GOOD FAITH BUT DO NOT CONSTITUTE REPRESENTATIONS OF FACT OR FORM PART OF ANY OFFER OR CONTRACT. THE MATTERS REFERRED TO IN THESE PARTICULARS SHOULD BE INDEPENDENTLY VERIFIED BY PROSPECTIVE BUYERS OR TENANTS. NEITHER SEQUENCE (UK) LIMITED NOR ANY OF ITS EMPLOYEES OR AGENTS HAS ANY AUTHORITY TO MAKE OR GIVE ANY REPRESENTATION OR WARRANTY WHATEVER IN RELATION TO THIS PROPERTY.
Brochures
Full DetailsNewhaven Road, South Norwood, LONDON
NEAREST STATIONS
Distances are straight line measurements from the centre of the postcode- Selhurst Station0.1 miles
- Thornton Heath Station0.6 miles
- Norwood Junction Station0.7 miles
About Barnard Marcus, Hammersmith Auctions
Sovereign House, 361 King Street Hammersmith London W6 9NA



Notes
Disclaimer - Property reference AUC0050707. The information displayed about this property comprises a property advertisement. Rightmove.co.uk makes no warranty as to the accuracy or completeness of the advertisement or any linked or associated information, and Rightmove has no control over the content. This property advertisement does not constitute property particulars. The information is provided and maintained by Barnard Marcus, Hammersmith Auctions. Please contact the selling agent or developer directly to obtain any information which may be available under the terms of The Energy Performance of Buildings (Certificates and Inspections) (England and Wales) Regulations 2007 or the Home Report if in relation to a residential property in Scotland.
Auction Fees: The purchase of this property may include associated fees not listed here, as it is to be sold via auction. To find out more about the fees associated with this property please call Barnard Marcus, Hammersmith Auctions on 020 3866 9305.
*Guide Price: An indication of a seller's minimum expectation at auction and given as a Guide Price or a range of Guide Prices. This is not necessarily the figure a property will sell for and is subject to change prior to the auction.
Reserve Price: Each auction property will be subject to a Reserve Price below which the property cannot be sold at auction. Normally the Reserve Price will be set within the range of Guide Prices or no more than 10% above a single Guide Price.
Map data ©OpenStreetMap contributors.



