Midland Road, Stonehouse

- PROPERTY TYPE
Semi-Detached
- BEDROOMS
2
- BATHROOMS
1
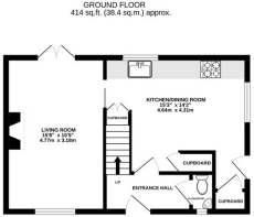
- SIZE
834 sq ft
77 sq m
- TENUREDescribes how you own a property. There are different types of tenure - freehold, leasehold, and commonhold.Read more about tenure in our glossary page.
Freehold
Key features
- Semi-detached house
- Two double bedrooms with storage space
- Kitchen/diner with larder cupboard
- Well-presented throughout
- Driveway parking for one vehicle and front garden
- Enclosed South facing and generous rear garden
- Close to local amenities and train station
- Freehold
- Council tax band A (£1,614.42)
- EPC rating TBC
Description
Entrance Hall - uPVC double-glazed door to entrance hall. Access to kitchen/diner, cloakroom and stairs rising to the first floor. Radiator.
Living Room - uPVC double-glazed window to front elevation and uPVC double-glazed French doors to rear garden. Feature fireplace. Radiator.
Kitchen/Diner - uPVC double-glazed window to rear elevation, uPVC double-glazed window to side elevation and uPVC double-glazed door to side elevation. Range of wall and base units with appliances to include one and a half bowl Belfast sink and freestanding cooker with four ring gas hob. Space for washing machine, tumble dryer and fridge/freezer. Under-stairs storage cupboard, larder cupboard and additional storage cupboard. Radiator.
Cloakroom - uPVC double-glazed window to front elevation. Low-level WC and corner wash hand basin.
Bedroom One - Dual aspect uPVC double-glazed windows to front and rear elevation. Mirrored wardrobes and over-stairs storage cupboard. Radiator.
Bedroom Two - Dual aspect uPVC double-glazed windows to front and side elevation. Over-stairs storage cupboard. Radiator.
Shower Room - uPVC double-glazed window to side elevation. Low-level WC, wash hand basin and corner shower cubicle. Heated towel rail.
Outside - The front of the property has a driveway for one vehicle, the remainder of the front is mostly laid to gravel with some feature greenery. The rear garden is generous in size and South facing. It is mostly laid to lawn and has been well cared for throughout. Towards the front is a patio space, ideal for alfresco dining, and to the rear is a further barked seating area with a storage shed. There is an array of plants and shrubs creating a mature feel and great for the keen gardener.
Location - The property is located just on the edge of Stonehouse town. Local facilities include a Co-op with a Post Office, restaurants, primary and secondary schools. The property is approximately four miles to Junction 12 of the M5 motorway providing access to Gloucester, Cheltenham and Bristol. Stonehouse railway station has a regular train service to London and Cheltenham. The town is situated approximately three miles west of Stroud and twelve miles south of Gloucester.
Material Information - Tenure: Freehold.
Council tax band: A.
Local authority and rates: Stroud District Council - £1,614.42 (2025/26).
Electricity supply: mains.
Water supply: mains.
Sewerage: mains.
Heating: gas central heating.
Broadband speed: 14 Mbps (basic), 76 Mbps (superfast) and 2,000 Mbps (ultrafast).
Mobile phone coverage: EE, Three, O2 and Vodafone.
Brochures
Midland Road, Stonehouse- COUNCIL TAXA payment made to your local authority in order to pay for local services like schools, libraries, and refuse collection. The amount you pay depends on the value of the property.Read more about council Tax in our glossary page.
- Band: A
- PARKINGDetails of how and where vehicles can be parked, and any associated costs.Read more about parking in our glossary page.
- Driveway
- GARDENA property has access to an outdoor space, which could be private or shared.
- Yes
- ACCESSIBILITYHow a property has been adapted to meet the needs of vulnerable or disabled individuals.Read more about accessibility in our glossary page.
- Ask agent
Energy performance certificate - ask agent
Midland Road, Stonehouse
Add an important place to see how long it'd take to get there from our property listings.
__mins driving to your place
Get an instant, personalised result:
- Show sellers you’re serious
- Secure viewings faster with agents
- No impact on your credit score
Your mortgage
Notes
Staying secure when looking for property
Ensure you're up to date with our latest advice on how to avoid fraud or scams when looking for property online.
Visit our security centre to find out moreDisclaimer - Property reference 34487354. The information displayed about this property comprises a property advertisement. Rightmove.co.uk makes no warranty as to the accuracy or completeness of the advertisement or any linked or associated information, and Rightmove has no control over the content. This property advertisement does not constitute property particulars. The information is provided and maintained by Naylor Powell, Stonehouse. Please contact the selling agent or developer directly to obtain any information which may be available under the terms of The Energy Performance of Buildings (Certificates and Inspections) (England and Wales) Regulations 2007 or the Home Report if in relation to a residential property in Scotland.
*This is the average speed from the provider with the fastest broadband package available at this postcode. The average speed displayed is based on the download speeds of at least 50% of customers at peak time (8pm to 10pm). Fibre/cable services at the postcode are subject to availability and may differ between properties within a postcode. Speeds can be affected by a range of technical and environmental factors. The speed at the property may be lower than that listed above. You can check the estimated speed and confirm availability to a property prior to purchasing on the broadband provider's website. Providers may increase charges. The information is provided and maintained by Decision Technologies Limited. **This is indicative only and based on a 2-person household with multiple devices and simultaneous usage. Broadband performance is affected by multiple factors including number of occupants and devices, simultaneous usage, router range etc. For more information speak to your broadband provider.
Map data ©OpenStreetMap contributors.








